Для корректной работы сайта выключите VPN

Описание

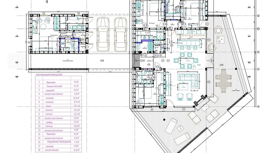
Продаётся великолепный дом в коттеджном поселке Villa Links, находящийся на территории гольф-курорта Links National Golf Club, расположенного в 60 км от МКАД по Рогачевскому шоссе. Общая площадь дома -325 м2 (с террасой и навесом под гараж на 2 машиноместа, площадь составляет 325,6 м2). Площадь участка –31 сотка. В доме 3 светлых мастер-спальни со своими санузлами и гардеробным, а также имеется еще 1 мастер-спальня в гостевом доме. Гостиная очень просторная, с выходом на террасу, соединенная с кухней-столовой. Большая терраса, с зоной барбекю, располагает к полноценному отдыху. Также имеется комната, предусмотренная под постирочную. Панорамное остекление дает возможность любоваться прекрасными видами коттеджного поселка, выполненного в едином стиле. Дом меблирован, на кухне встроена качественная бытовая техника мировых производителей. Коммуникации централизованные. Канализация и водопровод заведены в дом и функционируют. Газ по границе с возможностью подключения. При строительстве и отделке использовались высококачественные, дорогие и проверенные материалы.

Количество спален: 4

Санузел: раздельный

Тип дома: деревянный

Готовность: Готов полностью

Категория земли: Земли сельхоз. назначения, дачное строительство

Под ключ: Да

Есть вопросы по объекту? Звоните

Коммуникации

Газ: Нет

Канализация: центральная

Водопровод: центральный

Электричество, кВт: 15

Планировка

Основной дом:
прихожая, с\у гостевой, гардеробная, кухня-столовая, гостиная, 3 мастер-спальни;
Гостевой дом:
мастер-спальня, кладовая, топочная-постирочная;
Терраса с зонами отдыха и барбекю;
Навес на 2 м\м.

Описание поселка

Гольф-курорт мирового класса Links National Golf Resort расположился в 65 километрах от Москвы на территории более 500 гектаров, гармонично вписавшись в уникальный природный ландшафт Дмитровского района. Это один из наиболее экологически благоприятных мест Подмосковья. В окрестностях курорта никогда не было промышленных предприятий, железных дорог и большого количества дачных поселков. Первозданная красота здешних мест, чистота воздуха и звенящая тишина с лёгкостью восстанавливают утраченные горожанами связи с природой. Именно здесь нашел своё воплощение новый современный взгляд на активный отдых и комфортное проживание на природе. Коттеджный поселок Villa Links расположен всего в 65км от Москвы. Добраться до поселка можно как по Дмитровскому шоссе, так и по скоростной трассе М11(Ленинградское шоссе). Взгляд в стиле «гольф». Смысловым и энергетическим центром комплекса стало 18-луночное чемпионское поле с уникальным для России ландшафтом в классическом шотландском стиле линкс. Дизайн гольф- поля отличается холмистым рельефом и перепадами высот, оно завораживает, впечатляет и бросает вызов даже самым искушенным гольфистам. На территории гольф-курорта строится коттеджный комплекс Villa Links, который является логичным продолжением жизни в стиле «гольф». Это место не только для влюблённых в гольф. Это место жизни и отдыха, созданное специально для ценителей европейского уровня комфорта и безопасности, безупречного стиля и экологичности архитектурных решений. Архитектурный проект здания клубного дома по-настоящему уникален и разработан одной из лучших архитектурных мастерских Москвы специально для проекта Links National Golf Club и уже удостоен ряда наград. Выраженный рельеф гольф-поля с крутыми, но не обрывистыми, а мягкими и пологими склонами нашел свое отражение в архитектуре клабхауса, вольготно расположившегося на самой высокой точке курорта. Оригинальность концепции, простор, обилие света и белого цвета в декоре, теплота и экологичность дерева — все это позволяет зданию органично вписаться в окружающий ландшафт, создавая синтез современной архитектуры и природы. Архитектурные решения коттеджей Villa Links продолжают удачно эксплуатировать этот синтез, добавив к нему функциональность и уют дачного дома.

Читать далее

Инфраструктура

На территории поселка:

Гольф поле
Спортивная площадка

Лот: 34970848

70000000

928000

793100

Записаться на просмотр
Предложите свою цену
В сравнение В избранное Скачать

325 м2

31 сотка

4 спальни

Под ключ

60 км от МКАД

в ипотеку

Ваш персональный менеджер

Сагадиев Роман
Специалист по работе
с загородной недвижимостью

7 (499) 110-62-94
Перезвонить мне

Похожие предложения

Сагадиев Роман
Специалист по работе
с загородной недвижимостью

Помогу подобрать Вам дом быстро и по привлекательной цене

Расположение поселка

Выбор поселка по шоссе

Дмитровское шоссе
Новорижское шоссе
Горьковское шоссе
Путилковское шоссе
Рогачевское шоссе
Рублево-Успенское шоссе
Всего лотов: 9 лотов
Всего лотов: 1 лот
Всего лотов: 24 лота
Всего лотов: 1 лот
Всего лотов: 20 лотов
Всего лотов: 8 лотов
Всего лотов: 19 лотов
×
Заявка отправлена