Описание

Вашему вниманию представлен дом по индивидуальному проекту на берегу Волги в новом загородном курорте бизнес-класса Port Emm Zavidovo.

На земельном участке площадью 9.75 соток расположен стильный двухэтажный дом, выполненный с применением современных технологий, общей площадью 399.10 кв.м.

Преимуществами данного дома стали уют и комфорт. На территории дома просторные светлые комнаты с высокими потолками, которые создают атмосферу свободы и легкости. Благодаря высоким потолкам у вас не будет создаваться ощущения, что на вас что то то давит, только спокойствие и уединение. Вы можете оформить интерьер в любом стиле, который вам по душе.

На вашей территории дома будет благоустроенная зеленая территория. Просторный участок, где вы можете насладиться прелестями загородной жизни – ухоженный газон, зоны для отдыха и барбекю, а также возможность организовать свой собственный сад.

Современные технологии: дом построен с использованием современных энергосберегающих технологий, что гарантирует низкие затраты на коммунальные услуги и комфортное пребывание в любой сезон.

Наличие всех центральных коммуникаций обеспечивает высокий уровень комфорта для проживания.

Количество спален: 3

Тип дома: кирпичный

Готовность: Строится

Категория земли: Земли нас. пунктов, ИЖС

Сауна: Да

Охраняемая территория: Да

Есть вопросы по объекту? Звоните

Коммуникации

Газ: Да

Канализация: центральная

Водопровод: центральный

Электричество, кВт: 15

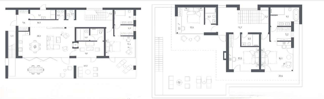
Планировка

Первый этаж: прихожая-гардеробная, гардеробная, кухня-гостиная, хобби-рум, мастер-спальня, душевая, сауна, санузел.

Второй этаж: мастер-спальня со своей ванной и гардеробной, спальня с ванной комнатой, спальня, холл при лестнице, ванная комната, эксплуатируемая кровля.

Описание поселка

Жемчужина загородного отдыха в Завидово. Эксклюзивный загородный курорт бизнес-класса Port Emm, расположенный на первой береговой линии реки Волги, дарит своим жителям и гостям неповторимый отдых, наполненный чувством гармонии с природой.

Port Emm Zavidovo расположен в 128 км от Москвы, 1,5 часа по скоростной трассе М11.

Водная стихия – главная достопримечательность поселка. Скользить под парусом по Волге, наслаждаться рыбалкой и водными лыжами, плавать в бассейне с "бесконечным" обзором – все это станет вашим ежедневным ритуалом здесь. А живописные прогулки по утреннему саду, пробежки в окружении аромата леса – лучший способ зарядиться энергией на весь день.

Эксклюзивная инфраструктура Port Emm предлагает все для незабываемого отдыха: Благоустроенная набережная и пляж, собственный яхт-клуб, подогреваемый инфинити-бассейн, бутик-отель, фитнес-центр, теннисные корты, площадки для игр, современный спа-комплекс, ресторан авторской кухни. Юные жители поселка оценят обустроенные детские зоны и аквапарк.

Воплотите мечту о премиальном загородном жилье в Port Emm Zavidovo. Позвольте себе жить в гармонии с природой, в окружении истинной роскоши.

Читать далее

Инфраструктура

На территории поселка:

Ресторан
Фитнесцентр
Бассейн
Прогулочная набережная
Пляж
Яхт клуб
Салон красоты
Рыбалка
Детские площадки
Теннисный корт
Гольф поле
Спортивная площадка

Лот: 127177201

76063180

1011100

857300

Записаться на просмотр
Предложите свою цену
В сравнение В избранное Скачать

399 м2

9.8 соток

3 спальни

Без отделки

Ленинградское шоссе

в ипотеку

Ваш персональный менеджер

Новоселов Владимир
Специалист по работе
с загородной недвижимостью

+7 (499) 110-42-67
Перезвонить мне

Похожие предложения

Новоселов Владимир
Специалист по работе
с загородной недвижимостью

Помогу подобрать Вам дом быстро и по привлекательной цене

Расположение поселка

Выбор поселка по шоссе

Дмитровское шоссе
Новорижское шоссе
Горьковское шоссе
Путилковское шоссе
Рогачевское шоссе
Рублево-Успенское шоссе
Всего лотов: 9 лотов
Всего лотов: 1 лот
Всего лотов: 24 лота
Всего лотов: 1 лот
Всего лотов: 20 лотов
Всего лотов: 8 лотов
Всего лотов: 19 лотов
×
Заявка отправлена