Для корректной работы сайта выключите VPN

Описание

Откройте для себя новый формат загородной жизни. где комфорт и стиль сочетаются с природой и престижем.
Представляем Вашему вниманию современный дом архитектуры био-тек с панорамным остеклением и впечатляющим видом на гольф-поле в премиальном коттеджном поселке Villa Links, расположенного всего в 65 км от МКАД по Рогачевскому шоссе.

Особенностью дома, является его расположение. Дом построен территории гольф-поля чемпионского класса в стиле Links, созданного известным мировым гольф-архитектором Джоном Флинном. Это ландшафт, который никогда не изменится, его никто не застроит.

Дом общей площадью 330,5 кв.м построен по проекту Берген архитектором Валерий Кельх в 2024 году на земельном участке площадью 13,05 соток.
Фундамент монолитная плита, стены кирпичные с базальтовым утеплением отштукатурены и покрашены.

Планировка дома продумана до мелочей. Панорамное остекление в каждой комнате подчеркивает великолепные виды и обеспечивает естественное освещение. Общее простанство гостиной, кухни и столовой завершается выходом на террасу. С террасы открывается невероятный вид на озеро. В доме имеются три спальни, одна из которых мастер-спальня со своей гардеробной и санузлом. Также в доме расположены гардеробная, гостевой санузел, отдельная постирочная и котельная.
В постирочной и гостевом санузле реализовано решение для попадания дневного света - зенитный фонарь.
Выполнена дизайнерская отделка с использованием дорогих высококачественных материалов.


Внутри поселка просторная территория без заборов и ограждений. По периметру участка установлено освещение.

Все инженерные сети грамотно спроектированы и рассчитаны на простую экономичную эксплуатацию. Установлена система приточной вентиляции на 500 м3/час. Выполнено кондиционирование.
Все коммуникации центральные: газоснабжение, водоснабжение, канализация, электричество 15 кВт. В поселке имеется резервный генератор.
Территория поселка огорожена и охраняется, въезд через КПП по пропускам, круглосуточное патрулирование и видеонаблюдение по периметру. Собственная управляющая компания круглогодичное обслуживает общественную территорию (уборка снега, кошение газонов, мойка дорог).

Количество спален: 3

Тип дома: кирпичный

Готовность: Готов полностью

Категория земли: Земли сельхоз. назначения, дачное строительство

Есть вопросы по объекту? Звоните

Коммуникации

Газ: Да

Канализация: центральная

Водопровод: центральный

Электричество, кВт: 15

Планировка

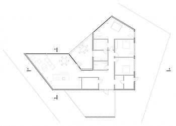
Первый этаж:
Прихожая, кухня-гостиная-столовая с выходом на террасу, гостевой санузел, мастер-спальня с гардеробной и санузлом, гостевая спальня, кабинет, постирочная, гардеробная, котельная.

Описание поселка

Гольф-курорт мирового класса «Links National Golf Resort» расположился в 65 километрах от Москвы на территории более 500 гектар, гармонично вписавшись в уникальный природный ландшафт Дмитровского район — одного из наиболее экологически благоприятных мест Подмосковья. В окрестностях курорта никогда не было промышленных предприятий, железных дорог и большого количества дачных поселков. Первозданная красота здешних мест, чистота воздуха и звенящая тишина с лёгкостью восстанавливают утраченные горожанами связи с природой. Именно здесь нашел своё воплощение новый, современный взгляд на активный отдых и комфортное проживание на природе. Коттеджный поселок Вилла Линкс, расположен всего в 65 км от Москвы. Добраться до поселка можно как по Дмитровскому шоссе, так и по скоростной трассе М11 (Ленинградское шоссе). Взгляд в стиле «гольф». Смысловым и энергетическим центром комплекса стало 18-луночное чемпионское поле с уникальным для России ландшафтом в классическом шотландском стиле Links. Дизайн гольф- поля отличается холмистым рельефом и перепадами высот, оно завораживает, впечатляет и бросает вызов даже самым искушенным гольфистам. На территории гольф-курорта строится коттеджный комплекс «Villa Links», который является логичным продолжением жизни в стиле «гольф». Это место не только для влюблённых в гольф. Это место жизни и отдыха, созданное специально для ценителей европейского уровня комфорта и безопасности, безупречного стиля и экологичности архитектурных решений. Архитектурный проект здания клубного дома по-настоящему уникален и разработан одной из лучших архитектурных мастерских Москвы специально для проекта «Links National Golf Club» и уже удостоен ряда наград. Выраженный рельеф гольф-поля с крутыми, но не обрывистыми, а мягкими и пологими склонами нашел свое отражение в архитектуре клабхауса, вольготно расположившегося на самой высокой точке курорта. Оригинальность концепции, простор, обилие света и белого цвета в декоре, теплота и экологичность дерева — все это позволяет зданию органично вписаться в окружающий ландшафт, создавая синтез современной архитектуры и природы. Архитектурные решения коттеджей «Villa Links» продолжают удачно эксплуатировать этот синтез, добавив к нему функциональность и уют дачного дома.
В пешей доступности пляж и лодочная станция. В 30 минутах езды лучшии горнолыжныи комплекс ЦФО по версии Ski Business Awards 2024 "Сорочаны".

Читать далее

Инфраструктура

На территории поселка:

Гольф поле
Спортивная площадка

Лот: 111527905

68000000

939900

808900

Записаться на просмотр
Предложите свою цену
В сравнение В избранное Скачать

330 м2

13.1 соток

3 спальни

Под ключ

Рогачёвское шоссе

65 км от МКАД

в ипотеку

Ваш персональный менеджер

Калямова Валерия
Специалист по работе
с загородной недвижимостью

+7 (499) 288-04-12
Перезвонить мне

Похожие предложения

Калямова Валерия
Специалист по работе
с загородной недвижимостью

Помогу подобрать Вам дом быстро и по привлекательной цене

Расположение поселка

Выбор поселка по шоссе

Дмитровское шоссе
Новорижское шоссе
Горьковское шоссе
Путилковское шоссе
Рогачевское шоссе
Рублево-Успенское шоссе
Всего лотов: 9 лотов
Всего лотов: 1 лот
Всего лотов: 24 лота
Всего лотов: 1 лот
Всего лотов: 20 лотов
Всего лотов: 8 лотов
Всего лотов: 19 лотов
×
Заявка отправлена