Для корректной работы сайта выключите VPN

Описание

Представляем вашему вниманию резиденцию площадью 750 кв.м на прилесном участке в деревне Николо-Урюпино, расположенной всего в 9 км от МКАД по Новорижскому шоссе.
Архитектурный проект дома выполнен в стиле Райта. Дом строился по индивидуальному проекту. В спальнях установлены широкоформатные пластиковые стеклопакеты, в гостиной на первом этаже – панорамные. Дом облицован клинкерным кирпичом. Внутренняя отделка – WhiteBox, в общих зонах покрашен потолок, установлены трековые светильники. В зоне барбекю на террасе построена чаша для уличного бассейна. Планировка дома хорошо продумана, общие зоны отделены от основной жилой части.

Участок, площадью 40 соток, прилесной, тихий, находится в тупиковой части деревни. По периметру высажены туи. Есть собственный выход в лес.

Количество спален: 6

Тип дома: кирпичный

Готовность: Под отделку

Категория земли: Земли нас. пунктов, ИЖС

Бассейн: Да

Сауна: Да

Есть вопросы по объекту? Звоните

Коммуникации

Газ: Да

Канализация: центральная

Водопровод: центральный

Электричество, кВт: 20

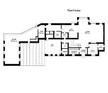
Планировка

Цокольный этаж: свободная планировка;
Первый этаж: прихожая, гардеробная, гараж, санузел, котельная, кухня с кладовым помещением, гостиная с выходом на задний двор с бассейном, спальня с ванной комнатой, спа-зона с бассейном;
Второй этаж: холл, мастер-спальня, четыре спальни с индивидуальными санузлами и гардеробными, прачечная.

Описание поселка

Село Николо-Урюпино знаменито своей престижностью, солидным окружением и развитой инфраструктурой, расположено в 9 км от МКАД по Новорижскому шоссе и подходит для круглогодичного проживания всей семьи.
Коммерческая и социальная инфраструктура хорошо развита. В селе Николо-Урюпино расположена общеобразовательная школа, продуктовые магазины, Никольская церковь, ресторан Swiss Yard, а в СПА-комплексе Grand Wellness можно насладиться лучшими банями, и поплавать в морской воде Средиземного и Мертвого моря.
В соседней деревне Поздняково есть конно-спортивный комплекс «Новый век», в котором есть все для комфортного пребывания лошадей – левады и плацы, конюшни и солярии, манежи для тренировок.
Кроме того, съезжая с Новорижского шоссе в сторону села Николо-Урюпино, расположен торговый центр «Петровский продуктовый базар», «Твой дом», ледовая арена в БЦ RigaLand, а также ТЦ РИГАМОЛЛ и ЦУМ Outlet.
Добраться до места можно по Новорижскому шоссе. Время в пути до Москвы составит не более 15 минут, до Москва-Сити – 30-40 минут. Также в 4 км от села расположена станция МЦД-2 «Нахабино-Подольск». Благодаря данной линии ж/д сообщения время в пути от станции «Аникеевка» до ст.м. «Тушинская» займет не более 25 минут.

Читать далее

Инфраструктура

На территории поселка:

Детский сад
Школа
Ресторан
Фитнесцентр
Детские площадки
Спортивная площадка

Лот: 110213611

300000000

4037900

3388000

Записаться на просмотр
Предложите свою цену
В сравнение В избранное Скачать

650 м2

40 соток

6 спален

Без отделки

Новорижское шоссе

9 км от МКАД

Ваш персональный менеджер

Сайфутдинов Тимур
Руководитель отдела
продаж Новая Рига

+7 (499) 117-03-67
Перезвонить мне

Похожие предложения

Сайфутдинов Тимур
Руководитель отдела
продаж Новая Рига

Помогу подобрать Вам дом быстро и по привлекательной цене

Расположение поселка

Выбор поселка по шоссе

Дмитровское шоссе
Новорижское шоссе
Горьковское шоссе
Путилковское шоссе
Рогачевское шоссе
Рублево-Успенское шоссе
Всего лотов: 9 лотов
Всего лотов: 1 лот
Всего лотов: 24 лота
Всего лотов: 1 лот
Всего лотов: 20 лотов
Всего лотов: 8 лотов
Всего лотов: 19 лотов
×
Заявка отправлена