Описание

Вашему вниманию представляется дом "под ключ" в коттеджном поселке Яхт и Гольф-клуб Пестово расположенный в 22 км от МКАД по Дмитровскому шоссе .
Дом построен по индивидуальному проекту из канадского кедра Lindal. Дом полностью готов для комфортного проживания, в доме выполнена качественная отделка, установлена вся необходимая мебель и бытовая техника европейских производителей. Центром притяжения является гостиная с камином и панорамным остеклением с видом на лес, со вторым светом и выходом на открытую террасу. В доме установлено котельное оборудования Buderus Logano (два котла, основной и резервный), система очистки воды Гидровел, центральная система кондиционирования «Daikin» ,так же дом оборудован охранно-пожарной сигнализацией. Особую приватность участка придает примыкание к лесу, на участке выполнен ландшафтный дизайн с экспозицией горного ручья и липовой аллеей, дренаж, установлен автополив и вечернее освещение. Так же на территории расположены гостевой дом со СПА зоной и бассейном, крытая беседка с зоной барбекю.

Количество спален: 5

Тип балкона: терраса

Санузел: 4

Жилая площадь: 613

Тип дома: деревянный

Готовность: Готов полностью

Категория земли: Земли нас. пунктов, ИЖС

Бассейн: Да

Сауна: Да

Лесной участок: Да

Под ключ: Да

Баня на участке: Да

Охраняемая территория: Да

Есть вопросы по объекту? Звоните

Коммуникации

Газ: Да

Канализация: центральная

Водопровод: центральный

Электричество, кВт: 50

Планировка

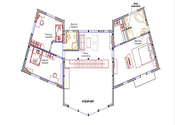
Основной дом: Первый этаж: прихожая с гардеробом, гостевой санузел, гостиная (39.4 кв. м) с камином и панорамным остеклением с видом на лес, со вторым светом и выходом на открытую террасу, гостевая спальня (28.4 кв.м.) со своим санузлом и гардеробом, кухня - столовая (56.9 кв.м.) с выходом на крытую террасу, кладовая комната, постирочная, гараж на две машины, котельная, техническое помещение, проход на второй этаж где располагается зона кабинета. Второй этаж: хозяйская спальня (30.8 кв.м.) со своим санузлом и гардеробом, спальня (20.4 кв.м.), детская (17.9 кв.м.), санузел, холл.
Спа комплекс : Первый этаж : прихожая с гардеробом, кухня, комната отдыха с камином, санузел, душевая с купелью и гидромассажем, сауна с электрической и дровяной печами, бассейн 6,5 Х 3,5 м. с противотоком, c выходом на крытую террасу (25 кв.м.).Второй этаж : бильярдная, бар, домашний кинотеатр.

Описание поселка

Гольф- и яхт-клуб «Пестово» — абсолютно новый для России загородный комплекс, сочетающий в себе традиции английского
загородного клуба: гольф-поле чемпионского класса, элитную недвижимость с видом на поле клабхаус и современный яхт-клуб.
Весь комплекс подчинен одной идее —сделать пребывание членов клуба и их гостей максимально комфортным и приятным.
Общая площадь комплекса составляет 200 га, его основной составляющей является великолепное 18-луночное гольф-поле чемпионского класса, спроектированное знаменитыми английскими архитекторами Полом Томасом и Дейвом Томасом. Здание клабхауса построено в традициях английской архитектуры, его интерьеры создают неповторимую атмосферу гостеприимства.
Здесь вы найдете великолепный ресторан итальянской кухни, бар, каминный зал, сигарный салон, бильярдную, караоке-зал, спа-салон и гольф-магазин. Яхт-клуб является важной составляющей комплекса гольф и яхт-клуба «Пестово». Он расположен на берегу Пестовского водохранилища, которое входит в бассейн канала имени Москвы. Здесь возведена современная пристань, рассчитанная на швартовку до 100 судов длиной до 30 м. При конструировании использовались новейшие финские технологии строительства из модульных понтонов, что позволило создать объект, удовлетворяющий всем современным техническим требованиям. На дебаркадере спроектированный командой архитекторов в современном «эко-тек» стиле располагается открытый бассейн с зоной отдыха, организованна услуга по сдаче в аренду парусных яхт Tenzor Sailing Club -где проходят еженедельные парусные соревнования. В интерьерах применены только натуральные материалы. Спокойные геометрические формы, естественные цвета, сочетание металла, стекла и тикового дерева — все это идеально вписывает архитектуру здания яхт-клуба в окружающую среду и располагает к приятному отдыху.
На территории поселка расположен фитнес клуб с бассейном, спортивная площадка с теннисным кортом, детская площадка. Два КПП, охрана, все коммуникации центральные, интернет.

Читать далее

Инфраструктура

На территории поселка:

Детский сад
Школа
Супермаркет
Прогулочная набережная
Яхт клуб
Детские площадки
Спортивная площадка

Лот: 110485529

280000000

3637700

3110700

Записаться на просмотр
Предложите свою цену
В сравнение В избранное Скачать

613 м2

43.5 сотки

5 спален

Под ключ

Лесной участок

Дмитровское шоссе

22 км от МКАД

в ипотеку

Ваш персональный менеджер

Глухов Макар
Ведущий специалист по работе
с загородной недвижимостью

+7 (499) 288-19-81
Перезвонить мне

Похожие предложения

Глухов Макар
Ведущий специалист по работе
с загородной недвижимостью

Помогу подобрать Вам дом быстро и по привлекательной цене

Расположение поселка

Выбор поселка по шоссе

Дмитровское шоссе
Новорижское шоссе
Горьковское шоссе
Путилковское шоссе
Рогачевское шоссе
Рублево-Успенское шоссе
Всего лотов: 9 лотов
Всего лотов: 1 лот
Всего лотов: 24 лота
Всего лотов: 1 лот
Всего лотов: 20 лотов
Всего лотов: 8 лотов
Всего лотов: 19 лотов
×
Заявка отправлена