Для корректной работы сайта выключите VPN

Видео

Описание

Акция кэшбэк покупателю 20% от вознаграждения агента! Представляем вашему вниманию НОВЫЙ дом в стиле Райта, площадью 270 кв. м. с лесным участком в коттеджном поселке Первый Лесной, расположенном всего в 13 км от МКАД по Ленинградскому шоссе.

В архитектурном проекте данного дома продумано все до мельчайшей детали. Строили, как для себя. В основании – монолитная плита на сваях с ростверком, стены построены из керамического кирпича Porotherm 38 Thermo, перекрытия монолитные. Кровля – фальцевая ручной работы из кровельного металла Pure Tech Mat zn 275 с гарантией 35 лет, утеплена минеральной ватой 200 мм. Водосточная система аквасистем. В доме установлены пластиковые стеклопакеты Veko Premium, входная дверь – Deft. Первый этаж дома облицован керамическим кирпичом Konigstein (250х85х65), второй – декоративной штукатуркой. Благодаря такому приему, дом будет выглядеть стильно и современно долгие годы.
Особенностью дома является наличие широкоформатного остекления, что подарит будущему хозяину ощущение простора, дополнительное естественное освещение всего дома и потрясающий вид на сосновый бор. Есть навес на два автомобиля, из которого можно сделать теплый гараж и шикарная терраса.

Участок, площадью 5,2 сот прямоугольной формы. Выполнено благоустройство под ключ: огорожен забором в едином для поселка стиле, установлены въездные ворота. Выполнен дренаж, дорожки и отмостка выложены брусчаткой, высажен газон.
Возможно приобретение по семейной ипотеке.

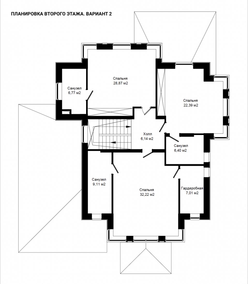
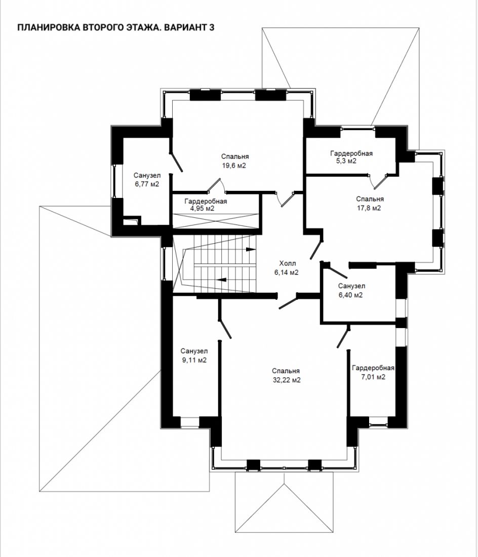
Количество спален: 4

Тип дома: кирпичный

Готовность: Готов полностью

Категория земли: ДНП

Охраняемая территория: Да

Есть вопросы по объекту? Звоните

Коммуникации

Газ: Да

Канализация: центральная

Водопровод: центральный

Электричество, кВт: 10

Планировка

Первый этаж: прихожая, гардеробная, кабинет, гостиная, терраса, кухня-столовая, котельная, кладовая, санузел;
Второй этаж: мастер-спальня с собственным санузлом и гардеробной, две спальни с индивидуальными санузлами.

Описание поселка

Новый коттеджный поселок премиального класса "Первый Лесной", расположенный всего в 13 км от МКАД по Ленинградскому шоссе.
Первый Лесной обеспечен превосходной локацией, на всех участках реликтовые сосны, а в окружении солидные соседи. Поселок подходит для круглогодичного проживания всей семьи.
Общее количество участков в коттеджном поселке – 55. За счет своей своеобразной формы, поселок обеспечит каждому будущему жильцу абсолютное уединение и тишину. К участкам подведены все центральные коммуникации. Идеальное решение для ценителей природы, тишины и городского комфорта.
Инфраструктура, необходимая для ежедневной жизни: магазины, поликлиники, детские сады, школы – расположена всего в 2,5 км в микрорайоне Сходня. В шаговой же доступности находится Wellness & Sport центр с крытым и открытым бассейном, тренажерным залом и СПА-комплексом премиального класса.
Коттеджный поселок утопает в сосновом бору. На каждом участке растут вековые сосны и ели.

До центра Москвы можно добраться всегда. Время в пути до центра займет не больше часа, в том числе в часы пик. В 10 минутах от коттеджного поселка Первый Лесной расположена станция МЦД-D3 «Сходня», благодаря которой до станции «Лихоборы» (пересадочный узел) в Москве можно доехать всего за 25 минут. Удачное расположение поселка позволяет быстро добраться до международного аэропорта «Шереметьево».

Читать далее

Инфраструктура

На территории поселка:

Детский сад
Школа
Супермаркет
Фитнесцентр
Парк
Детские площадки
Спортивная площадка

Лот: 132832870

51785000

697100

584900

Записаться на просмотр
Предложите свою цену
В сравнение В избранное Скачать

270 м2

5.2 соток

4 спальни

Без отделки

Ленинградское шоссе

13 км от МКАД

в ипотеку

Ваш персональный менеджер

Коваленко Иван
Специалист по работе
с загородной недвижимостью

+7 (499) 110-46-13
Перезвонить мне

Похожие предложения

Коваленко Иван
Специалист по работе
с загородной недвижимостью

Помогу подобрать Вам дом быстро и по привлекательной цене

Расположение поселка

Выбор поселка по шоссе

Дмитровское шоссе
Новорижское шоссе
Горьковское шоссе
Путилковское шоссе
Рогачевское шоссе
Рублево-Успенское шоссе
Всего лотов: 9 лотов
Всего лотов: 1 лот
Всего лотов: 24 лота
Всего лотов: 1 лот
Всего лотов: 20 лотов
Всего лотов: 8 лотов
Всего лотов: 19 лотов
×
Заявка отправлена