Для корректной работы сайта выключите VPN

Описание

Вашему вниманию представляется дом 160 кв.м. в лесу в новом коттеджном поселке в Сходне.

В архитектурном проекте данного дома продумано все до мельчайшей детали. Применение планкен из лиственницы и светлого облицовочного камня в экстерьере напоминает о природном анклаве, в котором расположен дом. Находясь в данном доме, ощущается особенная умиротворенность. Дом подходит для круглогодичного проживания всей семьи.

Дом построен из газоблока 400 мм, межэтажные перекрытия железобетонные 200 мм. Дом выполнен в современном стиле. Дом представлен без отделки. Заведены все центральные коммуникации – газ, водоснабжение, электричество, канализация.

Участок, на котором расположен дом, правильной прямоугольной формы, общей площадью 4 сот. Объект находится на возвышенности, что исключает подтопление участка, открывает изумительные виды на крону сосен.

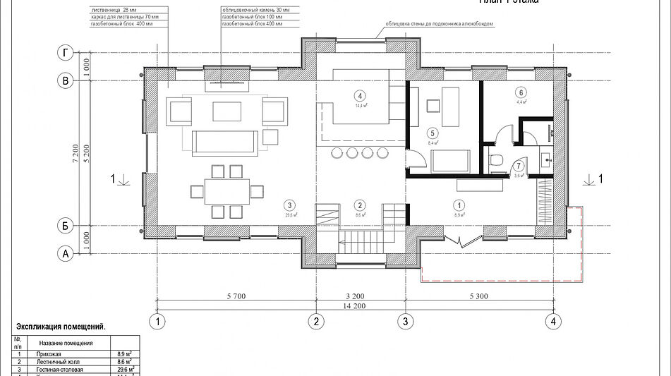
Отдельного акцента заслуживает планировка дома. Дом 2х-этажный. Все пространство эргономично спланировано. Есть большая кухня-гостиная, мастер-спальня, кабинет, отдельное помещение бойлерной.

Количество спален: 4

Тип дома: Блоки

Готовность: Готов полностью

Высота потолков: 3

Категория земли: ДНП

Лесной участок: Да

Охраняемая территория: Да

Есть вопросы по объекту? Звоните

Коммуникации

Газ: Да

Канализация: центральная

Водопровод: центральный

Электричество, кВт: 10

Планировка

Планировка:
Первый этаж - большая кухня-гостиная, гостевая спальня, гостевой санузел, бойлерная.
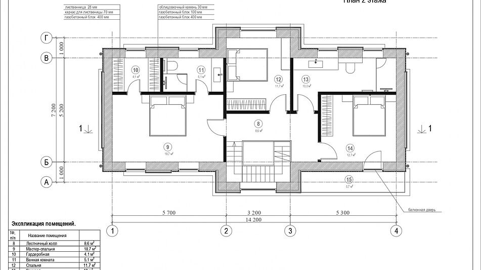
Второй этаж - мастер-спальня, две спальни, санузел.

Описание поселка

Коттеджный поселок обеспечен превосходной локацией, на всех участках реликтовые сосны, а в окружении солидные соседи. Поселок подходит для круглогодичного проживания всей семьи.

Общее количество участков в коттеджном поселке – 55. За счет своей своеобразной формы, поселок обеспечит каждому будущему жильцу абсолютное уединение и тишину. К участкам подведены все центральные коммуникации. Идеальное решение для ценителей природы, тишины и городского комфорта.

Инфраструктура, необходимая для ежедневной жизни: магазины, поликлиники, детские сады, школы – расположена всего в 2,5 км в микрорайоне Сходня. В шаговой же доступности находится Wellness & Sport центр с крытым и открытым бассейном, тренажерным залом и СПА-комплексом премиального класса.

Коттеджный поселок утопает в сосновом бору. На каждом участке растут вековые сосны.

До центра Москвы можно добраться всегда. Время в пути до центра займет не больше часа, в том числе в часы пик. В 10 минутах от коттеджного поселка Первый Лесной расположена станция МЦД-D3 «Сходня», благодаря которой до станции «Лихоборы» (пересадочный узел) в Москве можно доехать всего за 25 минут. Удачное расположение поселка позволяет быстро добраться до международного аэропорта «Шереметьево».

Читать далее

Инфраструктура

На территории поселка:

Детский сад
Школа
Супермаркет
Фитнесцентр
Парк
Детские площадки
Спортивная площадка

Лот: 92026119

28950000

386100

329100

Записаться на просмотр
Предложите свою цену
В сравнение В избранное Скачать

160 м2

4 сотки

4 спальни

Без отделки

Лесной участок

Ленинградское шоссе

13 км от МКАД

в ипотеку

Ваш персональный менеджер

Коваленко Иван
Специалист по работе
с загородной недвижимостью

+7 (499) 110-46-13
Перезвонить мне

Похожие предложения

Коваленко Иван
Специалист по работе
с загородной недвижимостью

Помогу подобрать Вам дом быстро и по привлекательной цене

Расположение поселка

Выбор поселка по шоссе

Дмитровское шоссе
Новорижское шоссе
Горьковское шоссе
Путилковское шоссе
Рогачевское шоссе
Рублево-Успенское шоссе
Всего лотов: 9 лотов
Всего лотов: 1 лот
Всего лотов: 24 лота
Всего лотов: 1 лот
Всего лотов: 20 лотов
Всего лотов: 8 лотов
Всего лотов: 19 лотов
×
Заявка отправлена