Для корректной работы сайта выключите VPN

Описание

Вашему вниманию представляется одноэтажный дом в стиле райт от 105 до 198 м² на участке от 8 до 50 соток в коттеджном поселке Зиккурат, расположенном в 115 км от МКАД по Новорижскому шоссе.
Органично вписываясь в ландшафт, дом становится естественным продолжением пейзажа. Архитектура, при всей кажущейся простоте, притягивает взгляд, подчеркивая статус владельца и его безупречный вкус.
Стиль выражен через четкие горизонтальные линии, выходящие за пределы конструкции, и 4-скатную крышу с низким коньком и широкими свесами. Это создает эффект почти плоской поверхности, усиливая гармонию с природой.
Натуральные материалы, вытянутые формы и продуманные линии формируют ощущение единения с окружающим пространством. Такой дом не просто жилье — это воплощение стиля, баланса и утонченности.

Количество спален: 3

Тип дома: кирпичный

Готовность: Строится

Категория земли: Земли нас. пунктов, ИЖС

Есть вопросы по объекту? Звоните

Коммуникации

Газ: Да

Канализация: центральная

Водопровод: центральный

Электричество, кВт: 15

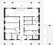
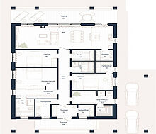
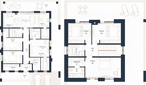
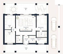
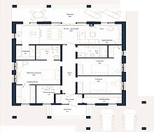
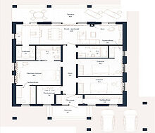
Планировка

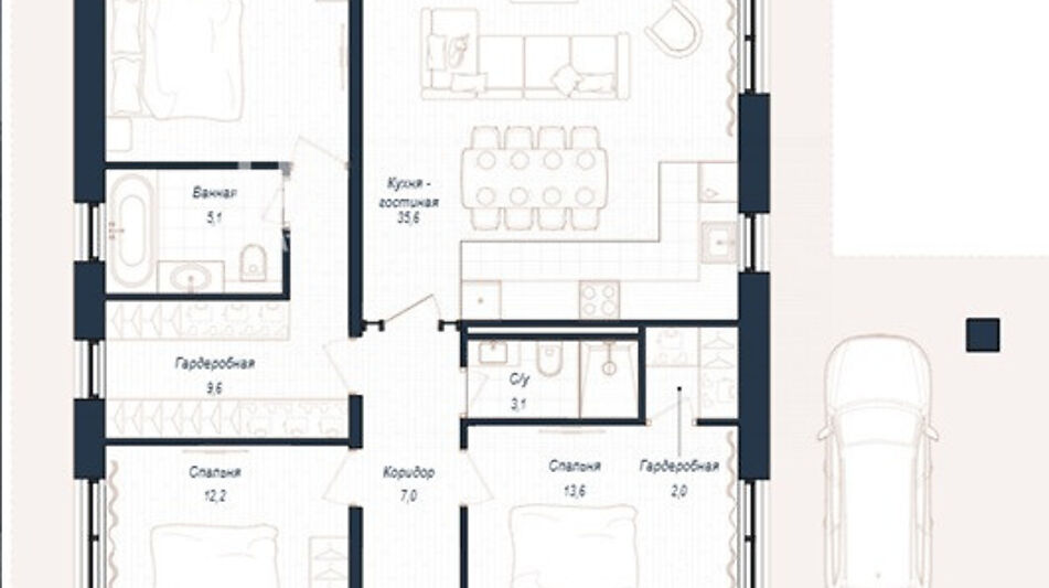
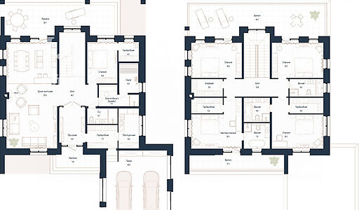
Первый этаж: прихожая, холл, кухня-гостиная, три спальни, одна или три гардеробные, два-три санузла, постирочная, одна или две кладовые, зона отдыха с душевой, парная, терраса, крыльцо.

Описание поселка

ZIGGURAT Resort & Club – премиальный загородный коттеджный поселок на берегу реки Руза, расположенный в 115 км от МКАД по Новорижскому шоссе – идеальное место для тех, кто ценит гармонию современной загородной жизни и первозданной природы.
Уникальное сочетание природы, роскоши и комфорта.
Архитекторы постарались соблюсти тонкий баланс первозданной природы и жилого пространства, заключив все в единую визуальную концепцию.

Простор и экология: 60 Га благоустроенной территории, 140 Га нетронутой природы, 4 км живописной прибрежной зоны, 10 км пешеходных маршрутов, ТОП-5 самых экологически чистых районов Подмосковья.
Инфраструктура мирового уровня.
Более 50 объектов для отдыха, спорта и развлечений: конный клуб *Horse Gallery Club* с полем для поло и левадами, спортивный кластер и горнолыжный склон *Sky Rock*, яхт-клуб с пристанью и благоустроенный пляж, амфитеатр и зоны для BBQ, детский клуб и активити-парк, прогулочные бульвары, каскадные водопады, живописные пруды.
Эксклюзивные резиденции: 300 домовладений в едином архитектурном стиле, уютные резиденции для семей, пар и ценителей уединения, мощеные мостовые, извилистые каналы, зоны отдыха.

Резиденции в стиле Шале, Райт и Хай-Тек органично вписываются в окружающий ландшафт, а просторные террасы и панорамное остекление усиливают связь с естественной средой.
Архитекторы отразили тонкий баланс первозданной природы и жилого пространства, заключив все это в единую визуальную концепцию.
ZIGGURAT Resort & Club – ваш идеальный баланс спокойствия и современной жизни.

Читать далее

Инфраструктура

На территории поселка:

Супермаркет
Ресторан
Фитнесцентр
Прогулочная набережная
Пляж
Яхт клуб
Салон красоты
Горные лыжи
Теннисный корт

Лот: 111722895

от

60000000

802200

676900

Записаться на просмотр
Предложите свою цену
В сравнение В избранное Скачать

105 м2

6 соток

3 спальни

Под ключ

Новорижское шоссе

115 км от МКАД

в ипотеку

Ваш персональный менеджер

Видецких Олег
Специалист по работе
с загородной недвижимостью

+7 (499) 110-57-98
Перезвонить мне

Похожие предложения

Видецких Олег
Специалист по работе
с загородной недвижимостью

Помогу подобрать Вам дом быстро и по привлекательной цене

Расположение поселка

Выбор поселка по шоссе

Дмитровское шоссе
Новорижское шоссе
Горьковское шоссе
Путилковское шоссе
Рогачевское шоссе
Рублево-Успенское шоссе
Всего лотов: 9 лотов
Всего лотов: 1 лот
Всего лотов: 24 лота
Всего лотов: 1 лот
Всего лотов: 20 лотов
Всего лотов: 8 лотов
Всего лотов: 19 лотов
×
Заявка отправлена