Для корректной работы сайта выключите VPN

Описание

Вашему вниманию представляется великолепная загородная усадьба в Троицком с вековыми соснами на территории участка. На участке 38 соток расположены следующие строения: основной четырёхуровневый кирпичный дом площадью 950 кв. м., двухэтажный дом 156 кв.м. с летней кухней и квартирой для персонала, гостевой дом из сруба 108 кв.м., а также отдельностоящий гараж площадью 105 кв.м на 3 машиноместа с хозяйственным блоком. Участок правильной формы, огорожен высоким кирпичным забором и не просматривается с соседних домов. Дома выполнены из высококачественных строительных материалов. Подключены все центральные коммуникации: электричество 50 кВт, магистральный газ, центральная канализация и водопровод. В основном доме установлена вся необходимая бытовая техника ведущих мировых производителей, на кухне и в санузлах полы с подогревом, оборудована водоочистная система, приточно-вытяжная вентиляция, охранная сигнализация, установлены защитные электро роллеты на террасе и на вход в дом, отопление газовое. Сердцем основного дома является просторная и светлая гостиная-столовая с камином и выходом на террасу, а также SPA-зона с джакузи, сауной и спортзалом на цокольном этаже. На третьем этаже расположена просторная хобби-комната, где можно с комфортом разместить рабочий или творческий уголок. На первом этаже расположен гараж на 3 машиноместа с организованным водостоком.
Также на участке расположены: небольшой гостевой дом, двухэтажный дом с террасой и квартирой для персонала на втором этаже, а также отдельностоящий гараж на 3 машиноместа с хоз блоком для хранения инвентаря и техники. Оба дома укомплектованы всей необходимой мебелью и техникой для комфортного проживания. Отопление домов осуществляется конвекторами Nobo с термостатом. На придомовой территории оборудована площадка для парковки 8-10 автомобилей. Дополнительно установлены резервные ворота для заезда на участок.

Количество спален: 8

Санузел: 5

Тип дома: кирпичный

Готовность: Готов полностью

Категория земли: Земли нас. пунктов, ИЖС

Сауна: Да

Лесной участок: Да

Под ключ: Да

Есть вопросы по объекту? Звоните

Коммуникации

Газ: Да

Канализация: центральная

Водопровод: центральный

Электричество, кВт: 50

Планировка

Планировка основного дома 950 м2:
Цокольный этаж: холл, постирочная, помещение свободного назначения, спортзал, сауна, джакузи, душевая, комната отдыха с санузлом, кладовая.
Первый этаж: холл, гардеробная, санузел, технический санузел, спальня, кухня с санузлом и кладовой, столовая-гостиная с выходом на террасу, гараж на 3 машиноместа, кладовая, щитовая, котельная, санузел.
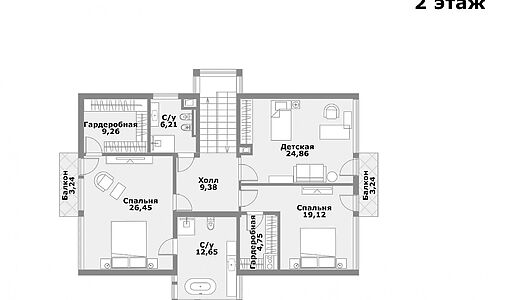
Второй этаж: холл с санузлом, мастер-спальня с гардеробом и санузлом, терраса, кабинет, спальня с санузлом, детская.
Третий этаж: хобби-комната, 2 спальни, 2 санузла, гардеробная, комната общего назначения, детская игровая зона, лестница с выходом на чердачное помещение.

Планировка гостевого дома 108 кв.м.:
Первый этаж: прихожая, гардероб, санузел, спальня.
Второй этаж: холл, 3 спальни.

Планировка дома с квартирой для персонала 156 кв.м:
Первый этаж: кухня-столовая с выходом на террасу, санузел, сбоку пристроено 2 технических помещения. Одно под котельную, во втором расположены кухня и санузел.
Второй этаж: терраса с входом в квартиру, прихожая, кухня-столовая, 2 спальни, санузел, кладовая.

Описание поселка

Поселок Троицкое расположен всего в 10 км от Москвы на самом берегу Клязьминского водохранилища. В поселке Троицкое есть все необходимое для постоянного и комфортного проживания: центральные коммуникации, магазины, школы и детские сады, несколько яхт-клубов, оборудованные территории для отдыха у воды с пляжами и ресторанами, живописныйлес. Поселок Троицкое находится в ближайшем Подмосковье, и добраться до него из Москвы можно всего за 20 минут по Дмитровскому или Осташковскому шоссе, что делает его идеальным местом как для отдыха так и для постоянного проживания. Если Вы хотите купить дом с отделкой у воды на Дмитровском или Осташковском шоссе, то поселок Троицкое - это именно то, что Вы искали.

Читать далее

Инфраструктура

На территории поселка:

Лот: 34970735

149000000

2037600

1749200

Записаться на просмотр
Предложите свою цену
В сравнение В избранное Скачать

950 м2

38 соток

8 спален

Под ключ

Лесной участок

Дмитровское шоссе

10 км от МКАД

в ипотеку

Ваш персональный менеджер

Руденко Мария
Специалист по работе
с загородной недвижимостью

+7 (499) 288-14-35
Перезвонить мне

Похожие предложения

Руденко Мария
Специалист по работе
с загородной недвижимостью

Помогу подобрать Вам дом быстро и по привлекательной цене

Расположение поселка

Выбор поселка по шоссе

Дмитровское шоссе
Новорижское шоссе
Горьковское шоссе
Путилковское шоссе
Рогачевское шоссе
Рублево-Успенское шоссе
Всего лотов: 9 лотов
Всего лотов: 1 лот
Всего лотов: 24 лота
Всего лотов: 1 лот
Всего лотов: 20 лотов
Всего лотов: 8 лотов
Всего лотов: 19 лотов
×
Заявка отправлена