Для корректной работы сайта выключите VPN

Описание

Вашему вниманию представляется двухэтажный дом в деревне Троице-Сельцо. Дом общей площадью 220.4 кв.м. расположен на участке 7.5 соток. Помимо основного дома на участке расположен просторный гараж-мастерская. Участок правильной формы, со всех сторон огорожен забором. Въездную группу украшают кованные ворота, сделанные на заказ. Дом построен по индивидуальному архитектурному проекту. Материал стен - пескобетонные блоки, фундамент монолитный, кровля - металлочерепица.
Внутренняя отделка дома выполнена на 80% и частично требует косметического ремонта. Дизайн интерьера выполнен классическом стиле и светлых тонах с использованием элементов декора из гипса, фактуры и ковки. Дом укомплектован всей необходимой мебелью для проживания. В котельной установлена система водоподготовки, смонтирован теплый пол по всему первому этажу. Дом отапливается электрокотлом.
Коммуникации на участке: электричество 15 кВт, канализация - септик из бетонных колец с переливом, вода - скважина 120 м.

Количество спален: 6

Санузел: 2

Тип дома: Блоки

Готовность: Готов полностью

Категория земли: Земли сельхоз. назначения, ЛПХ

Есть вопросы по объекту? Звоните

Коммуникации

Газ: Нет

Канализация: Септик

Водопровод: центральный

Электричество, кВт: 15

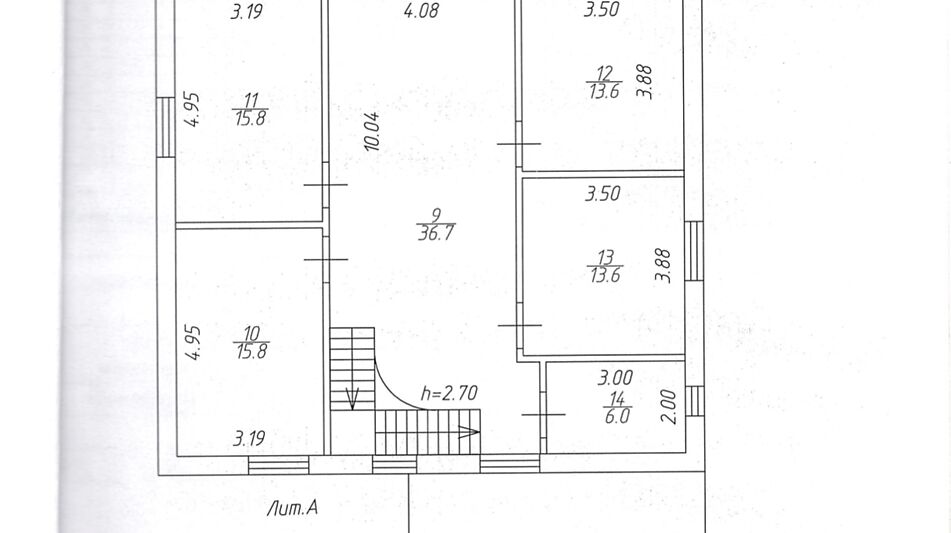
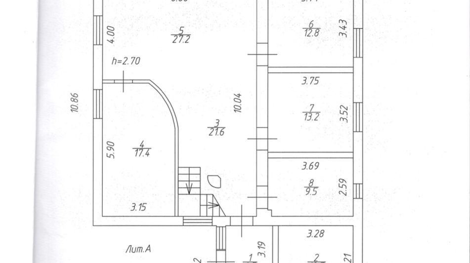
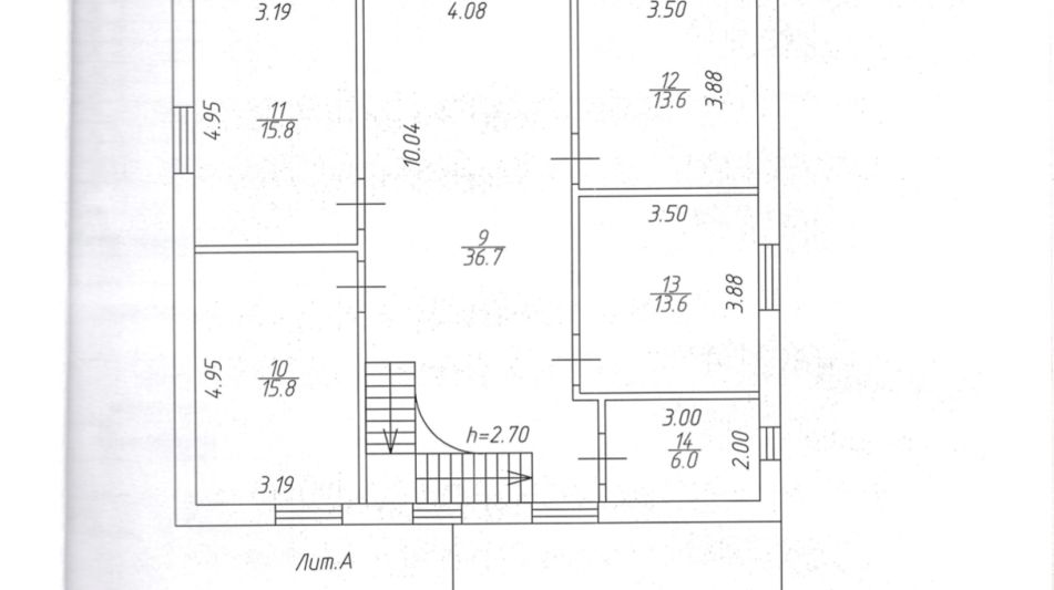
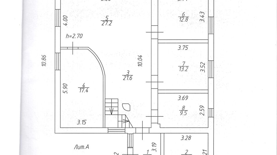
Планировка

Планировка дома

Первый этаж: прихожая, котельная, санузел, 2 спальни, кухня, гостиная-столовая.

Второй этаж: 4 спальни, санузел, балкон.

Мансарда: площадь свободного назначения 60 кв.м. без отделки.

Описание поселка

Деревня Троице-Сельцо расположена всего в 18 км от МКАД по Дмитровскому шоссе. Чистый воздух, великолепная природа, хорошая транспортная доступность, наличие близлежащей инфраструктуры дает Вам возможность купить дом за городом и наслаждаться всеми благами цивилизации.

Читать далее

Инфраструктура

На территории поселка:

Пляж
Яхт клуб
Горные лыжи
Гольф поле

Лот: 34970989

23500000

324900

279600

Записаться на просмотр
Предложите свою цену
В сравнение В избранное Скачать

220 м2

7.5 соток

6 спален

Под ключ

Дмитровское шоссе

18 км от МКАД

Ваш персональный менеджер

Мугинова Айгуль
Специалист по работе
с загородной недвижимостью

+7 (499) 226-28-93
Перезвонить мне

Похожие предложения

Мугинова Айгуль
Специалист по работе
с загородной недвижимостью

Помогу подобрать Вам дом быстро и по привлекательной цене

Расположение поселка

Выбор поселка по шоссе

Дмитровское шоссе
Новорижское шоссе
Горьковское шоссе
Путилковское шоссе
Рогачевское шоссе
Рублево-Успенское шоссе
Всего лотов: 9 лотов
Всего лотов: 1 лот
Всего лотов: 24 лота
Всего лотов: 1 лот
Всего лотов: 20 лотов
Всего лотов: 8 лотов
Всего лотов: 19 лотов
×
Заявка отправлена