Описание

Вашему вниманию представляется новый современный дом в одном уровне 199 кв.м на великолепном лесном участке 8,96 сотки в клубном поселке бизнес-класса "Станция LETO". Поселок находится в 25 км от Москвы по Дмитровскому шоссе, в окружении хвойного леса.

Количество спален: 4

Тип дома: Газобетон

Готовность: Готов полностью

Категория земли: Земли нас. пунктов, ИЖС

Есть вопросы по объекту? Звоните

Коммуникации

Газ: Да

Канализация: Септик

Водопровод: скважина

Электричество, кВт: 15

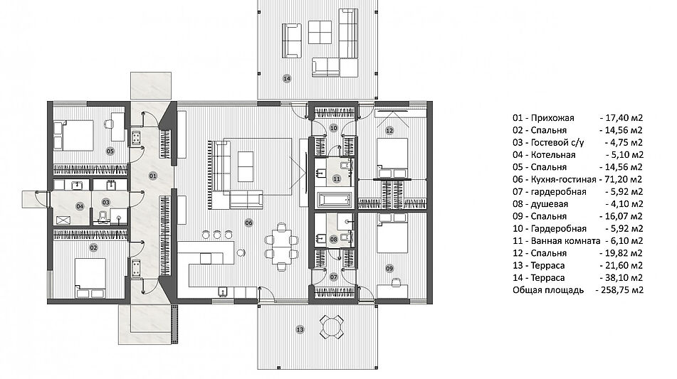
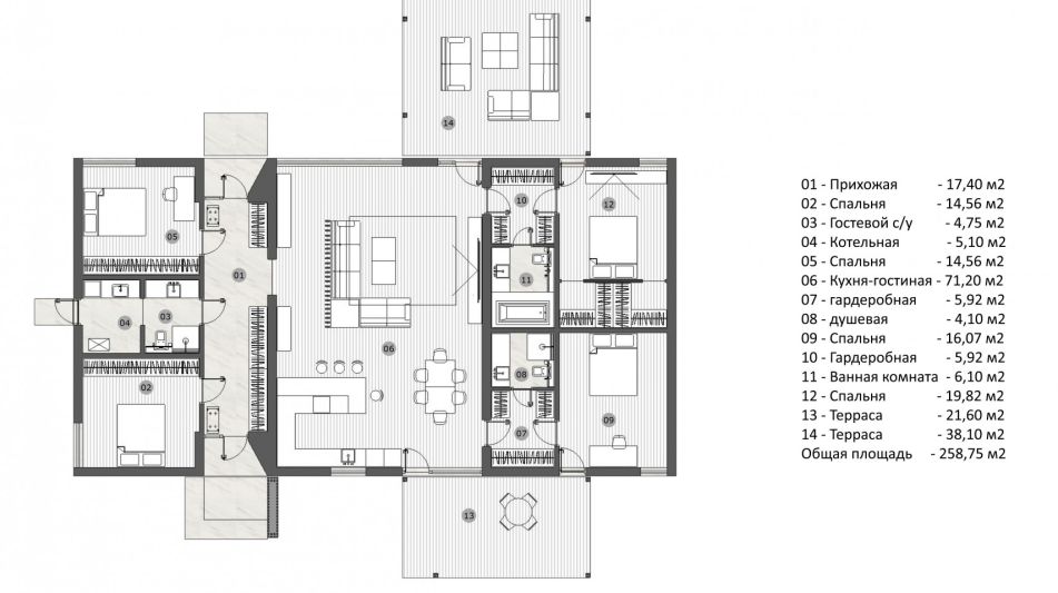
Планировка

Прихожая, две спальни, гостевой санузел, кухня-столовая, объединенная с гостиной с выходом на террасы, две спальни со своими гардеробными и санузлами.

Описание поселка

Посёлок «Станция LETO» это уникальное сочетание дивной природы с современной архитектурой домов.

Вся концепция поселка была разработана создателем и главным архитектором Бюро «Буданов и партнеры» - Павлом Будановым.

Ему удалось очень аккуратно и бережно вписать эти современные дома из бетона и стекла в природную среду, сохранив практически каждое дерево, расположенное на участке.

ВАЖНО!

В клубном поселке "Станция LETO" Вы можете купить земельный участок и реализовать на нем собственный проект, или воспользоваться услугами нашей строительной компании, и получить полностью готовый дом. Решать только Вам!

Поселок "Станция LETO" расположился всего в 25 км от Москвы по Дмитровскому шоссе, в стародачном районе Подмосковья, поселке генералов - Трудовая Южная.

Поселок представляет из себя закрытую территорию всего на восемь домовладений, утопающую в зелени векового хвойного бора.

От въездной группы ведет широкая и освещенная центральная улица, в конце которой расположена небольшая, но очень уютная зона отдыха, с детской площадкой.

Клубный поселок «Станция LETO» получил свое название не просто так.

Одним из главных преимущество поселка является его транспортная доступность.

Он расположен всего в трех минутах ходьбы от железнодорожной станции Трудовая, что дает возможность жителям поселка оказаться

всего за:

-20 минут в г. Лобня

-30 минут в г. Долгопрудный

-40 минут в Лианозово

-59 минут на Савеловском вокзале

Также поблизости есть вся необходимая для комфортной жизни инфраструктура:

· ТРЦ Каштановая роща

· ТРЦ Пять планет

· Ломоносовская школа и детский сад (п. Зеленый Мыс)

· Школа и детский сад Пестово

· Школа Марфино

· Загородный клуб Максима

· Парк-отель Артурс СПА

· Пляжи и яхт-клубы

и многое другое.

Мы уверены, что ценители загородной жизни по достоинству оценят этот прекрасный поселок, просто утопающий в зелени вековых елей.

Читать далее

Инфраструктура

На территории поселка:

Лот: 79700356

29999000

398800

339500

Записаться на просмотр
Предложите свою цену
В сравнение В избранное Скачать

199 м2

9 соток

4 спальни

Без отделки

Дмитровское шоссе

25 км от МКАД

в ипотеку

Ваш персональный менеджер

Кузнецова Елена
Специалист по работе
с загородной недвижимостью

+7 (499) 110-24-95
Перезвонить мне

Похожие предложения

Кузнецова Елена
Специалист по работе
с загородной недвижимостью

Помогу подобрать Вам дом быстро и по привлекательной цене

Расположение поселка

Выбор поселка по шоссе

Дмитровское шоссе
Новорижское шоссе
Горьковское шоссе
Путилковское шоссе
Рогачевское шоссе
Рублево-Успенское шоссе
Всего лотов: 9 лотов
Всего лотов: 1 лот
Всего лотов: 24 лота
Всего лотов: 1 лот
Всего лотов: 20 лотов
Всего лотов: 8 лотов
Всего лотов: 19 лотов
×
Заявка отправлена