Описание

Вашему вниманию представляется великолепный дом Под Ключ в коттеджном поселке Истра Вита!

Дом абсолютно новый.
Внутри выполнена хорошая качественная отделка, на первом этаже установлена вся необходимая мебель и бытовая техника.
Во всех помещениях установлено панорамное остекление, что увеличивает ощущение простора и делает их очень светлыми.

Дом построен по немецкой технологии строительства "фахверк", при это пирог стен усилен гидромембраной и металлическим гофролистом, за счет чего теплопроводность стен становится очень низкая, а издержки на поддержание необходимой температуры минимальными.
Дом построен на монолитной плите. Внутри установлена приточно-вытяжная вентиляция, что обеспечивает приток свежего воздуха во все помещения.
Все полы в доме теплые.
В котельной установлено газовое оборудование Viessmann, а также резервный электрический котел.

На участке выполнена планировка, сделан дренаж, засеян газон, высажены плодовые деревья, а посередине участка растет могучая липа, защищающая жителей дома своей тенью, в жаркий солнечный день.

Количество спален: 4

Жилая площадь: 195

Тип дома: деревянный

Готовность: Готов полностью

Категория земли: ДНП

Под ключ: Да

Охраняемая территория: Да

Наличие мебели: Да

Есть вопросы по объекту? Звоните

Коммуникации

Газ: Да

Канализация: центральная

Водопровод: центральный

Электричество, кВт: 15

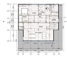
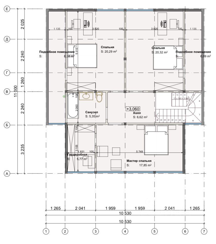
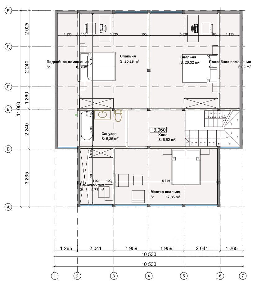
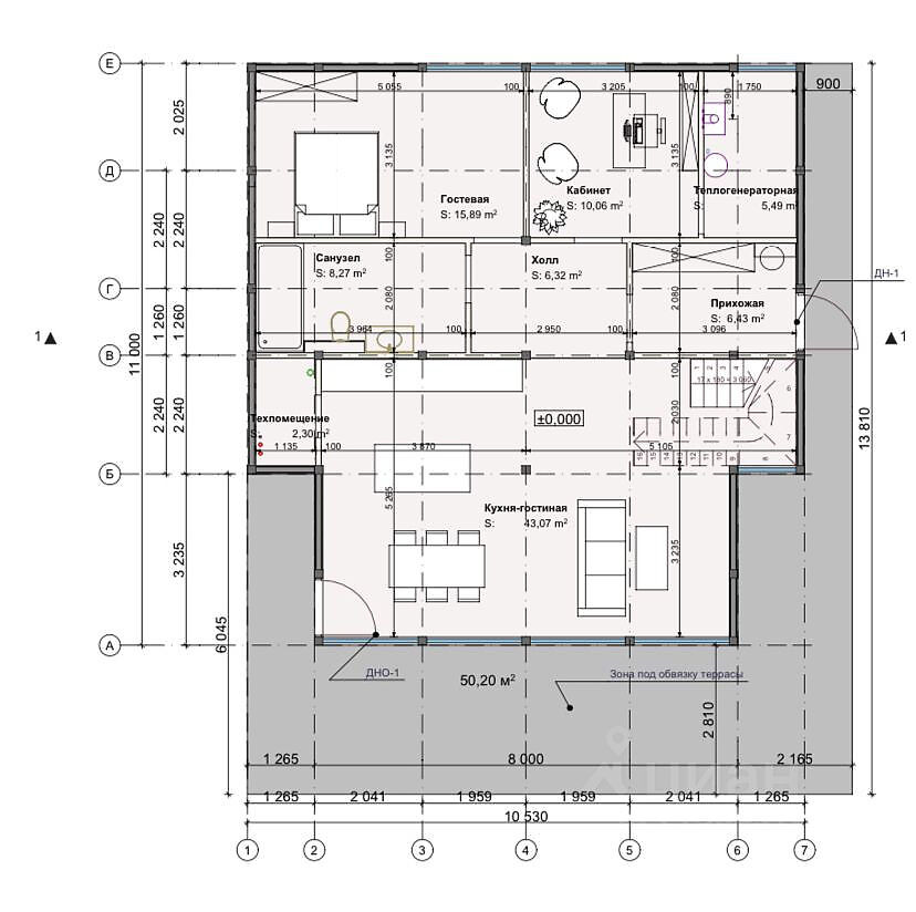
Планировка

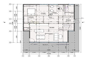
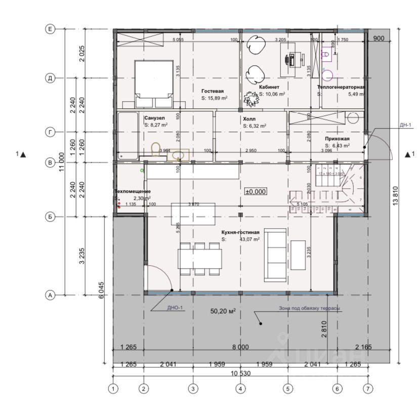
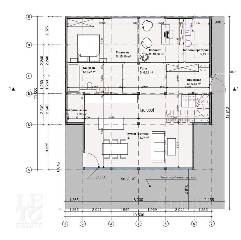
Первый этаж: прихожая, кабинет (гостевая спальня), спальня, санузел с душевой, гостиная-кухня-столовая с выходом на террасу, котельная.
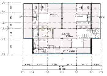
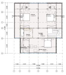
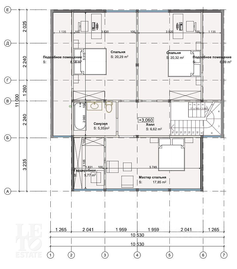
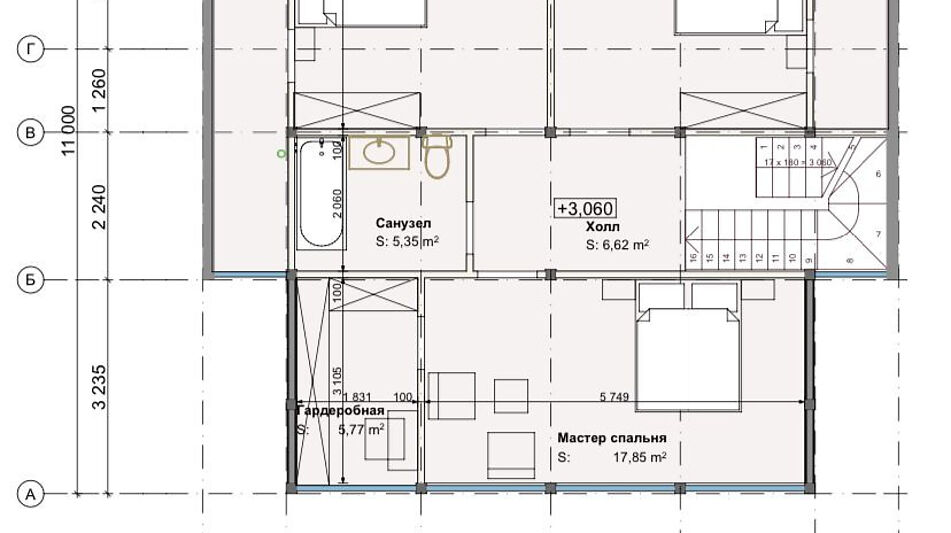
Второй этаж: холл, три спальни, ванная комнат.

Описание поселка

Коттеджный поселок Истра Вита - это небольшой клубный поселок, расположенный в 40км от МКАД по скоростному Новорижскому шоссе.
Поселок имеет благоустроенную и охраняемую территорию, на въезде организован контрольно-пропускной пункт, круглосуточно ведется патрулирование территории службой охраны. Все коммуникации в поселке Истра Вита центральные. (электричество, водопровод, канализация, газ).
Так же на территории поселка есть прогулочная зона с детской площадкой.
В непосредственной близости от поселка Истра Вита есть вся необходимая для комфортной жизни инфраструктура: магазины, рестораны, аптека, школа, спортивный клуб и многое другое.
Всего в 15 минутах от поселка расположен замечательный город Истра, с развитой инфраструктурой а также одной из самых главных Христианских достопримечательностей - Новоиерусалимским монастырем.

Если Вы хотите купить дом с отделкой на Новорижском шоссе, в окружении природы, но с близостью к хорошей инфраструктуре, то поселок Истра Вита, это именно то, что Вам нужно!

Читать далее

Инфраструктура

На территории поселка:

Детские площадки

Лот: 119189809

32800000

431100

366900

Записаться на просмотр
Предложите свою цену
В сравнение В избранное Скачать

195 м2

7.5 соток

4 спальни

Под ключ

Новорижское шоссе

40 км от МКАД

в ипотеку

Ваш персональный менеджер

Коваленко Иван
Специалист по работе
с загородной недвижимостью

+7 (499) 110-46-13
Перезвонить мне

Похожие предложения

Коваленко Иван
Специалист по работе
с загородной недвижимостью

Помогу подобрать Вам дом быстро и по привлекательной цене

Расположение поселка

Выбор поселка по шоссе

Дмитровское шоссе
Новорижское шоссе
Горьковское шоссе
Путилковское шоссе
Рогачевское шоссе
Рублево-Успенское шоссе
Всего лотов: 9 лотов
Всего лотов: 1 лот
Всего лотов: 24 лота
Всего лотов: 1 лот
Всего лотов: 20 лотов
Всего лотов: 8 лотов
Всего лотов: 19 лотов
×
Заявка отправлена