Для корректной работы сайта выключите VPN

Описание

ДОМ У ВОДЫ И ЛЕСА

Вашему вниманию представлен роскошный деревянный дом в КП "Сосновый Берег". Дом построен из финского бруса по проекту "Хонка". Полностью готов к проживанию, есть вся необходимая техника. В доме использованы современные технологии - геотермальное отопление. Это экологический чистый вид отопления, в котором используется энергия окружающей среды. Большие окна и светлые стены добавляют пространства в доме. На первом этаже есть большая терраса, на втором этаже балконы с видом на шикарный участок на котором растут вековые хвойные деревья. Окна сделаны из дерева - сосна. Пол и лестница сделана из лиственницы. Мебель в доме выполнена по индивидуальному заказу - натуральная сосна. В доме есть сауна с зоной отдыха. На участке организовано место под барбекю. Природный ландшафт участка создает картину нетронутой природы. Полное ощущение уединения в лесу позволяется полноценно отдохнуть и насладиться природой. Если вы хотите найти уникальное место не только для отдыха, но и для постоянного проживания - это идеальное место для Вас! Приезжайте всей семьей и Вы захотите остаться надолго в поселке Сосновый Берег!

Количество спален: 4

Тип балкона: 2 балкона

Санузел: 2

Тип дома: Брус

Готовность: Готов полностью

Категория земли: Земли нас. пунктов, ИЖС

Сауна: Да

Охраняемая территория: Да

Есть вопросы по объекту? Звоните

Коммуникации

Газ: Нет

Канализация: Септик

Водопровод: скважина

Электричество, кВт: 35

Планировка

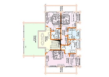
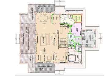
Первый этаж: гостиная, столовая, кухня, спальня с санузлом и душем, сауна с комнатой отдыха (возможно сделать комнату или кабинет) и душ, гостевой санузел, хозяйственный блок с постирочной и котельной
Второй этаж: мастер-спальня и санузел с душем и ванной, спальня с санузлом и душем, спальня с санузлом и душевой

Описание поселка

Клубный эко посёлок Сосновый Бор - это уникальный поселок, расположенный на самом берегу Истринского водохранилища и утопающий в зелени старинного хвойного бора. Он расположен всего в 45 км от МКАД по Пятницкому шоссе и состоит всего из 16 домов. Все дома в поселке выдержаны в едином архитектурном стиле и построены из эксклюзивного финского клееного бруса. Конечно, Сосновый Берег - это больше клуб, для любителей активного отдыха на природе и любителей водных развлечений, таких как яхтинг, аквабайк, кайт, водные лыжи, рыбалка или же просто возможность позагорать и поплавать, подышать чистейшим, насыщенным хвойным воздухом. Но при этом поселок Сосновый Берег - это прекрасное место для постоянного, круглогодичного проживания, ведь в поселке есть все центральные коммуникации, необходимая инфраструктура, а добраться до Москвы можно всего за 40 минут. В поселке Сосновый Берег Вы найдете отдых на любой вкус: благоустроенный пляж, парковка для катеров, клуб в котором расположен банный комплекс, где вы можете провести время с семьей. Основное кафе с камином и великолепным видом на воду; бильярдная; настольный теннис. На территории есть зимний эллинг для хранения яхт и лодок. Граничит поселок с экопарком “Начинание” в котором организованы многочисленные тропинки для долгих прогулок. В непосредственной близости находится Истра Holiday c бассейном, рестораном и дополнительной территорией для отдыха. Большая территория M'Istra’L (5* звездочный отель) предоставит лучший сервис для Вас и ваших гостей. Окружение эко поселка Сосновый Берег насыщено инфраструктурой, но в тоже время территория поселка остается прекрасным местом уединения. Территория поселка Сосновый Берег благоустроена и всегда ухожена. За чистотой и порядком следит служба эксплуатации поселка, которая всегда готова оказать любые услуги жителям поселка. Со всех сторон поселок огорожен забором, установлено видеонаблюдение территории, пропускной режим, а также круглосуточное патрулирование территории. Если Вы хотите не просто приобрести деревянный дом на берегу водохранилища, а стать членом настоящего загородного клуба, то поселок Сосновый Берег - это то, что Вам нужно!

Читать далее

Инфраструктура

На территории поселка:

Бассейн
Прогулочная набережная
Пляж
Яхт клуб
Рыбалка
Детские площадки
Спортивная площадка

Лот: 107982464

142123000

1900000

1603400

Записаться на просмотр
Предложите свою цену
В сравнение В избранное Скачать

400 м2

50 соток

4 спальни

Под ключ

Пятницкое шоссе

45 км от МКАД

Ваш персональный менеджер

Видецких Олег
Специалист по работе
с загородной недвижимостью

+7 (499) 110-57-98
Перезвонить мне

Похожие предложения

Видецких Олег
Специалист по работе
с загородной недвижимостью

Помогу подобрать Вам дом быстро и по привлекательной цене

Расположение поселка

Выбор поселка по шоссе

Дмитровское шоссе
Новорижское шоссе
Горьковское шоссе
Путилковское шоссе
Рогачевское шоссе
Рублево-Успенское шоссе
Всего лотов: 9 лотов
Всего лотов: 1 лот
Всего лотов: 24 лота
Всего лотов: 1 лот
Всего лотов: 20 лотов
Всего лотов: 8 лотов
Всего лотов: 19 лотов
×
Заявка отправлена