Для корректной работы сайта выключите VPN

Описание

Вашему вниманию представлен готовый дом в клубном поселке Санни Хилс, расположенный в 30 км по Рублево-Успенскому шоссе.
Дом построен из керамоблоков, монолитный каркас, свайно-ростверковый фундамент. Полностью готов к проживанию, есть вся необходимая встроенная техника и мебель. Использована система скрытые двери. Балконы оснащены системой подогрева пола. Установлены электрокарнизы.
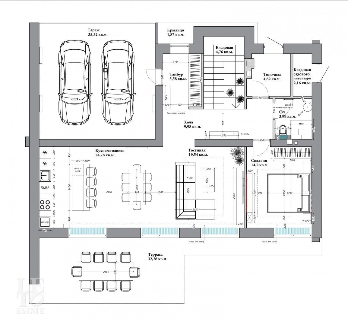
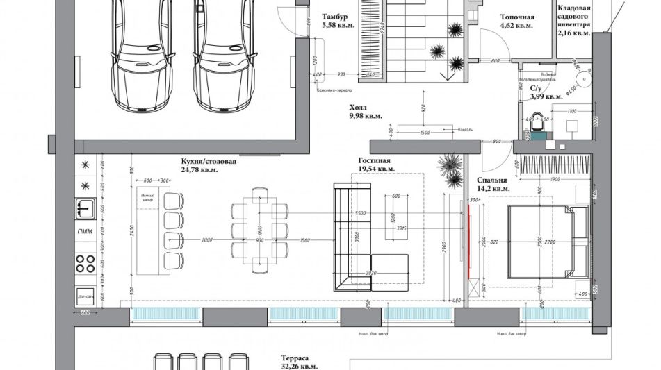
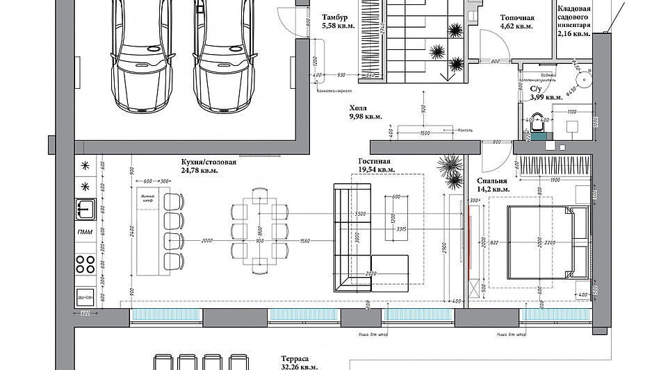
На первом этаже расположена просторная кухня-гостиная, где можно собираться всей семьей и радушно принимать гостей. Простор и свет, а также современная техника делает ваше времяпровождения удобным и приятным.
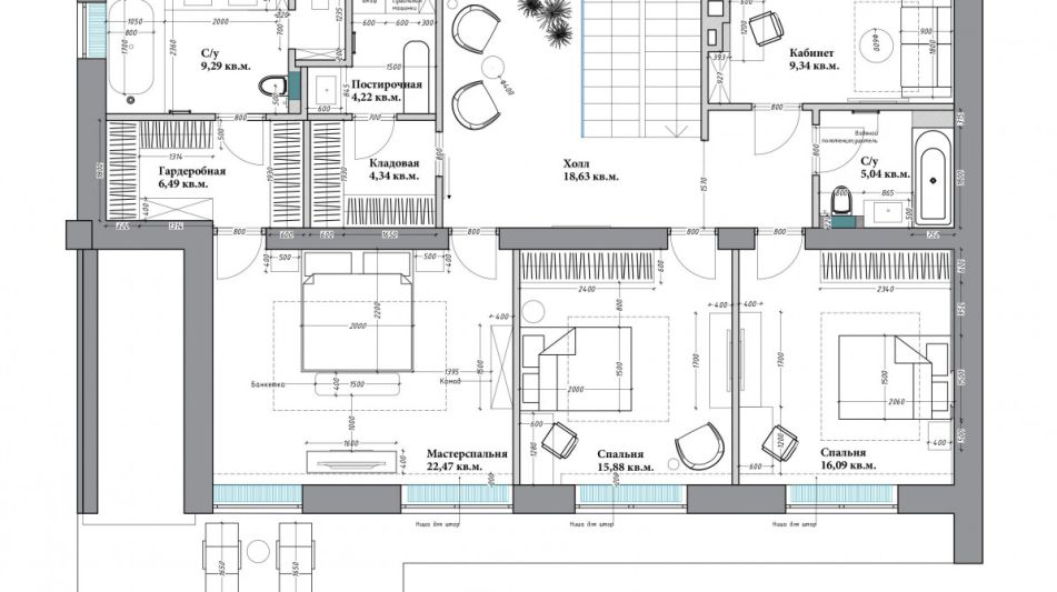
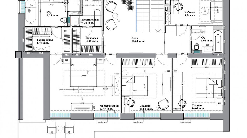
На втором этаже расположены три комнаты, которые можно использовать под спальни, детские или кабинеты. Мастер-спальня с собственным санузлом — это ваше личное пространство для отдыха и релаксации. Отдельные санузлы на каждом этаже обеспечивают максимальный комфорт для вас и ваших гостей.
В доме заведены и разведены все центральные коммуникации: газоснабжение, электричество, водопровод и канализация. Котельная полностью оборудована. Установлено кондиционирование и система "умный дом".
Просторный участок идеально подходят для создания садов, площадок для барбекю или спокойных зон для отдыха на свежем воздухе. На предомовой территории расположена парковка на два автомобиля.

Количество спален: 4

Тип дома: Блоки

Готовность: Готов полностью

Категория земли: Земли нас. пунктов, ИЖС

Есть вопросы по объекту? Звоните

Коммуникации

Газ: Да

Канализация: центральная

Водопровод: центральный

Электричество, кВт: 15

Планировка

Первый этаж: прихожая, выход в гараж, кухня - гостиная - столовая, спальня, санузел с душевой, котельная, гараж
Второй этаж: кабинет, спальня, спальня, постирочная, мастер - спальня с местом под гардероную и санузел с ванной и душевой

Описание поселка

Санни Хилс – новый камерный поселок на 6 домов, расположенный в 30 км по Рублево-Успенскому шоссе.
Поселок находится вдали от трассы, окружён живописной природой, что обеспечивает спокойную и тихую жизнь. Охрана и пропускная система гарантируют безопасность проживающих.

В непосредственной близости от поселка есть вся необходимая инфраструктура: школы, детские сады, академия фигурного катания, конный клуб, рестораны, салоны красоты и магазины.
Поселок расположен на холмистой местности, что делает его идеальным для различных видов активного отдыха: лыжи и сани зимой, велосипедные прогулки и пешие походы летом.

Поселок Sunny Hills идеально подходит для тех, кто ценит спокойствие, безопасность и комфорт загородной жизни, а также желает наслаждаться природными красотами и иметь доступ к необходимой инфраструктуре.

Читать далее

Инфраструктура

На территории поселка:

Прогулочная набережная

Лот: 104248340

121000000

1699300

1465900

Записаться на просмотр
Предложите свою цену
В сравнение В избранное Скачать

347 м2

13.4 соток

4 спальни

Под ключ

Рублёво-Успенское шоссе

30 км от МКАД

в ипотеку

Ваш персональный менеджер

Васильева Анжелика
Специалист по работе
с загородной недвижимостью

+7 (499) 110-60-98
Перезвонить мне

Похожие предложения

Васильева Анжелика
Специалист по работе
с загородной недвижимостью

Помогу подобрать Вам дом быстро и по привлекательной цене

Расположение поселка

Выбор поселка по шоссе

Дмитровское шоссе
Новорижское шоссе
Горьковское шоссе
Путилковское шоссе
Рогачевское шоссе
Рублево-Успенское шоссе
Всего лотов: 9 лотов
Всего лотов: 1 лот
Всего лотов: 24 лота
Всего лотов: 1 лот
Всего лотов: 20 лотов
Всего лотов: 8 лотов
Всего лотов: 19 лотов
×
Заявка отправлена