Для корректной работы сайта выключите VPN

Описание

Вашему вниманию представляется просторный таунхаус площадью 347 кв.м на участке 4 сотки с отделкой под ключ в коттеджном поселке Прозорово, расположенном в 11 км от МКАД по Новорижскому шоссе.
В отделке использованы элитные, натуральные материалы. Всё укомплектовано современным оборудованием и мебелью по авторским эскизам.
Спокойная гамма оттенков в интерьере создает атмосферу тепла и уюта. Внутренняя отделка дома выполнена из качественного и дорого материала. Функциональная и комфортная планировка, пространство и свет - несомненные достоинства дома.

Количество спален: 4

Тип дома: кирпичный

Готовность: Готов полностью

Категория земли: Земли нас. пунктов, ИЖС

Сауна: Да

Под ключ: Да

Охраняемая территория: Да

Есть вопросы по объекту? Звоните

Коммуникации

Газ: Да

Канализация: центральная

Водопровод: центральный

Электричество, кВт: 15

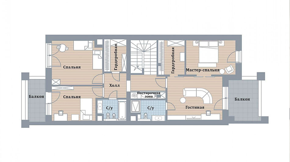
Планировка

Первый этаж: холл, гардеробная, котельная, санузел, кладовая, кухня-гостиная, терраса.
Второй этаж: гостиная с балконом, два санузла, постирочная, две гардеробные, спальня с балконом, две спальни.
Третий этаж: спортзал, кабинет, санузел с сауной.

Описание поселка

Коттеджный поселок «Прозорово» является отличным местом для комфортной жизни.
Поселок камерный, всего 65 домовладений. Этот престижный и экологически чистый район, расположенный всего в 11 км от Москвы, предлагает множество преимуществ для жителей.
Чтобы добраться до «Прозорово», можно воспользоваться несколькими удобно расположенными шоссе: Ильинским, Рублево-Успенским или Новорижским. Эти маршруты обеспечивают быстрое и комфортное движение в столицу. Время в пути до Москва-Сити занимает всего 40 минут.

В окружении поселка достаточно коммерческой инфраструктуры для обеспечения ежедневных потребностей. Магазин Вкусвилл, ресторан Rico Dom, фитнес-центр World Class, предоставляющие жителям широкий выбор вариантов для активного отдыха. В окружении коттеджного поселка Прозорово, всего в 1-5 км, для детей предусмотрены специализированные школы различных направлений, что гарантирует высокое качество образования (начальная школа «Интересная школа» возле поселка таунхаусов Александровский; частная школа «Мир знаний» в КП Петровский;
частная школа «Президент» в дер. Жуковка рядом с коттеджными поселками Парк Вилл, Жуковка-21, Царское Село).
Для шопинга в непосредственной близости находятся такие торговые центры, как "Глобус", "Твой дом", "Рига Молл", "The Outlet" и многие другие магазины, предоставляющие разнообразие товаров и услуг. Это делает жизнь в Коттеджном поселке «Прозорово» не только комфортной, но и насыщенной.

Читать далее

Инфраструктура

На территории поселка:

Детский сад
Школа
Супермаркет
Ресторан
Медцентр
Фитнесцентр
Парк
Салон красоты
Детские площадки
Теннисный корт
Футбольное поле
Спортивная площадка

Лот: 112879950

75000000

995500

849000

Записаться на просмотр
Предложите свою цену
В сравнение В избранное Скачать

347 м2

4 сотки

4 спальни

Под ключ

Новорижское шоссе

11 км от МКАД

в ипотеку

Ваш персональный менеджер

Коваленко Иван
Специалист по работе
с загородной недвижимостью

+7 (499) 110-46-13
Перезвонить мне

Похожие предложения

Коваленко Иван
Специалист по работе
с загородной недвижимостью

Помогу подобрать Вам таунхаус быстро и по привлекательной цене

Расположение поселка

Выбор поселка по шоссе

Дмитровское шоссе
Новорижское шоссе
Горьковское шоссе
Путилковское шоссе
Рогачевское шоссе
Рублево-Успенское шоссе
Всего лотов: 9 лотов
Всего лотов: 1 лот
Всего лотов: 24 лота
Всего лотов: 1 лот
Всего лотов: 20 лотов
Всего лотов: 8 лотов
Всего лотов: 19 лотов
×
Заявка отправлена