Для корректной работы сайта выключите VPN

Описание

Вашему вниманию представляется великолепный двухэтажный дом площадью 365 кв.м., расположенный в коттеджном поселке Президент в 7 км от МКАД по Калужскому шоссе.
Дом построен из кирпича с дополнительным утеплением, что гарантирует превосходную тепло и звукоизоляцию. Престижный Фасад - внешняя отделка выполнена натуральным дагестанским песчаником, что придает строению монументальный, благородный и дорогой внешний вид.

Участок 11 соток с уже выполненным основанием под забор (с облицованными столбами) - готовность к быстрому финишному обустройству ограждения.
Этот дом — идеальная “чистая основа” для реализации вашего эксклюзивного дизайн-проекта, где каждая деталь будет соответствовать только вашим требованиям.

Количество спален: 5

Тип дома: кирпичный

Готовность: Под отделку

Категория земли: Земли нас. пунктов, ИЖС

Охраняемая территория: Да

Есть вопросы по объекту? Звоните

Коммуникации

Газ: Да

Канализация: центральная

Водопровод: центральный

Планировка

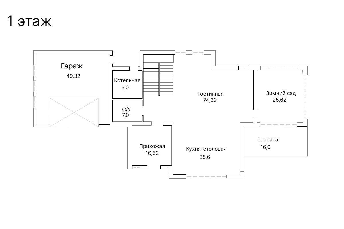
Первый этаж: прихожая, санузел, котельная, кухня-гостиная, зимний сад (спальня), гараж на 2 авто;
Второй этаж: мастер-спальня с гардеробной и санузлом, три спальни, санузел, кладовая-гардеробная.

Описание поселка

Охраняемый коттеджный поселок «Президент» находится в Новой Москве в 7 км от МКАД по Калужскому шоссе. Поселок расположен в живописном месте, окруженном лесом в экологически чистом районе. Поселок «Президент» является клубным поселком на 50 домов с охраняемой огороженной территорией, своим КПП, круглосуточной охраной и видеонаблюдением.

Буквально в десяти минутах езды от поселка на автомобиле находится исчерпывающая городская инфраструктура: уютные кофейни и рестораны, фитнес, спа и велнес-центры, места для отдыха, торговые и развлекательные центры, элитные образовательные учреждения, деловые центры и многое другое.

Прекрасная транспортная доступность: в двух км располагается станция метро Ольховая. Дорога от поселка до МКАД на автомобиле займет не более 15 минут, а до центра Москвы – не более 40 минут.

Читать далее

Инфраструктура

На территории поселка:

Лот: 133818701

79000000

1092000

939700

Записаться на просмотр
Предложите свою цену
В сравнение В избранное Скачать

365 м2

11 соток

5 спален

Без отделки

Калужское шоссе

7 км от МКАД

в ипотеку

Ваш персональный менеджер

Васильева Анжелика
Специалист по работе
с загородной недвижимостью

+7 (499) 110-60-98
Перезвонить мне

Похожие предложения

Васильева Анжелика
Специалист по работе
с загородной недвижимостью

Помогу подобрать Вам дом быстро и по привлекательной цене

Расположение поселка

Выбор поселка по шоссе

Дмитровское шоссе
Новорижское шоссе
Горьковское шоссе
Путилковское шоссе
Рогачевское шоссе
Рублево-Успенское шоссе
Всего лотов: 9 лотов
Всего лотов: 1 лот
Всего лотов: 24 лота
Всего лотов: 1 лот
Всего лотов: 20 лотов
Всего лотов: 8 лотов
Всего лотов: 19 лотов
×
Заявка отправлена