Для корректной работы сайта выключите VPN

Описание

Представляем Вашему вниманию дом 354 кв. м с потрясающим видом на воду на участке площадью 63 сотки в коттеджном поселке Полуостров, расположенном в 54 км от Москвы по Ленинградскому шоссе.
Дом построен по технологии фахверк. Каркас дома выполнен из бруса, а проемы заполнены панорамными трехслойными окнами с напылением (8Х6Х8мм).
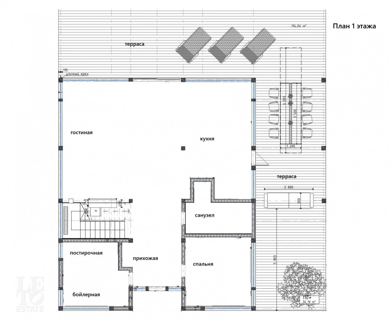
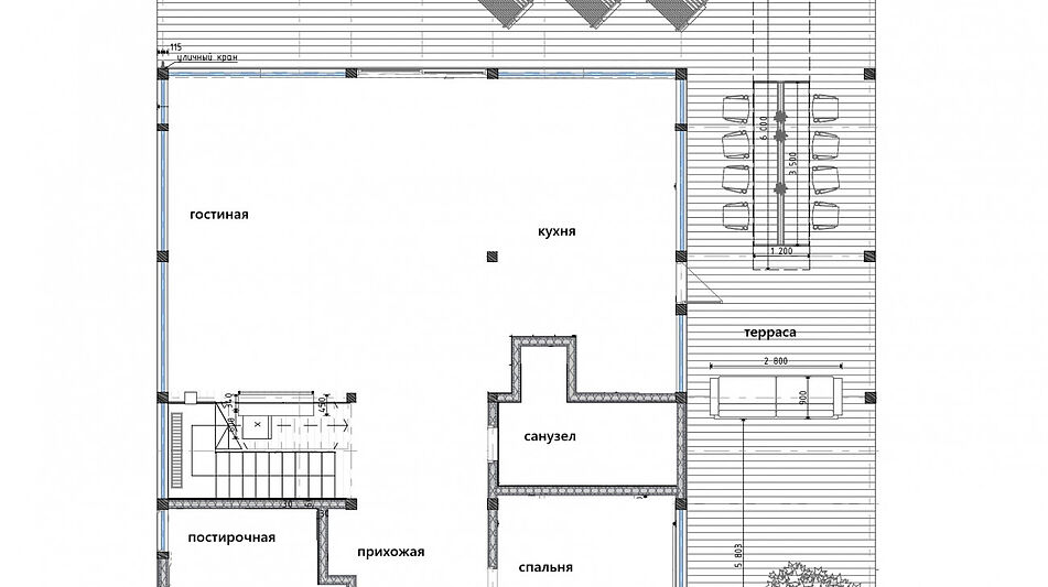
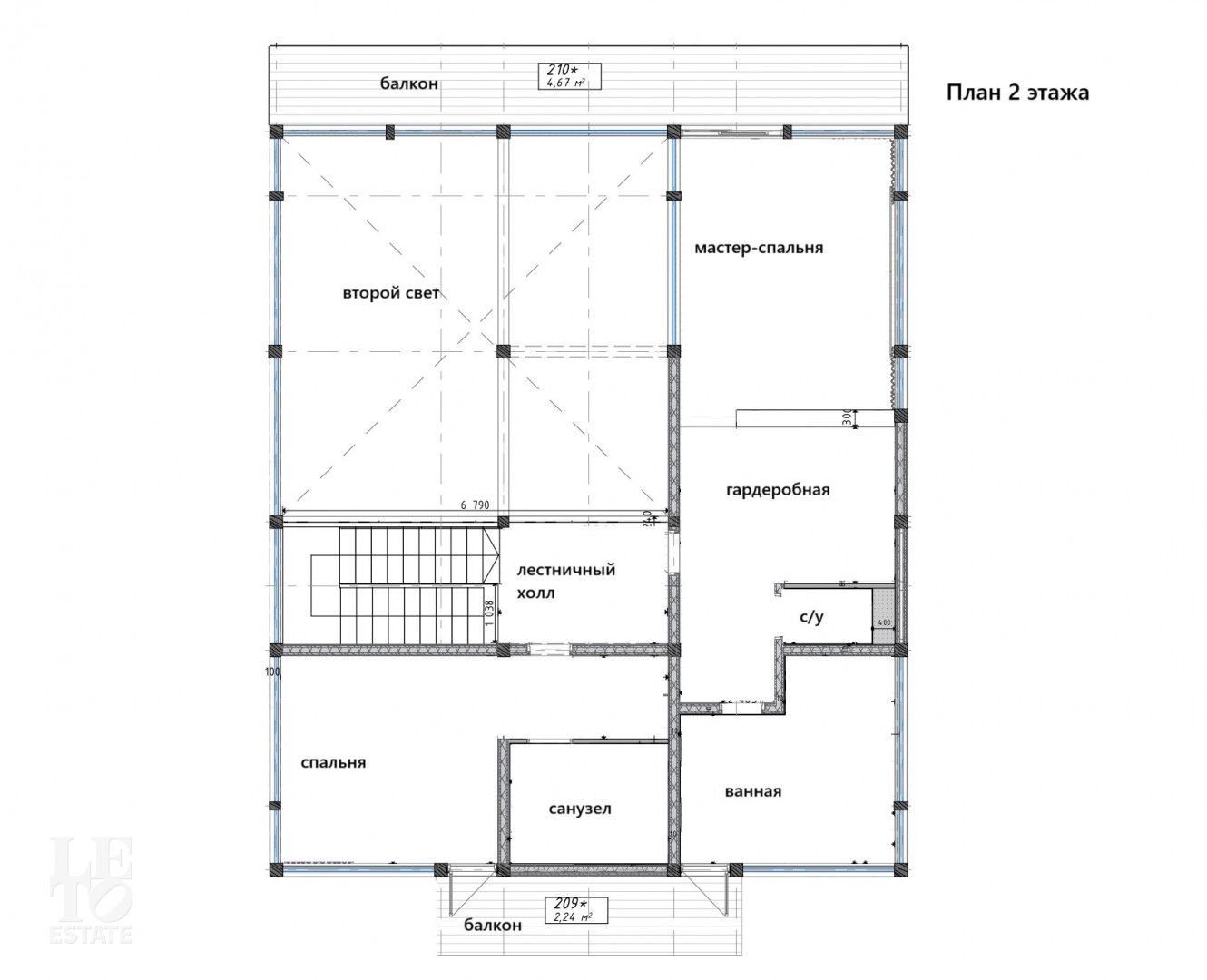
Дом двухэтажный. Полезная площадь дома составляет 240 кв.м. В доме предусмотрены раздвижные окна, обеспечивающие прямой доступ к террасе 114 кв.м. В гостиной установлен подвесной дровяной камин. Дом продается с отделкой «под ключ». В настоящий момент ведутся внутренние работы. Особенностью дома является наличие второго света и панорамное остекление, что подарит будущему хозяину ощущение простора, дополнительное естественное освещение всего дома.

Участок, общей площадью 63 сотки, полностью благоустроен, на берегу реки организована лаундж-зона с кострищем, на безопасном расстоянии от дома расположена BBQ-зона.

Количество спален: 4

Тип дома: Брус

Готовность: Готов полностью

Категория земли: Земли нас. пунктов, ИЖС

Сауна: Да

Охраняемая территория: Да

Есть вопросы по объекту? Звоните

Коммуникации

Газ: Да

Канализация: центральная

Водопровод: центральный

Электричество, кВт: 30

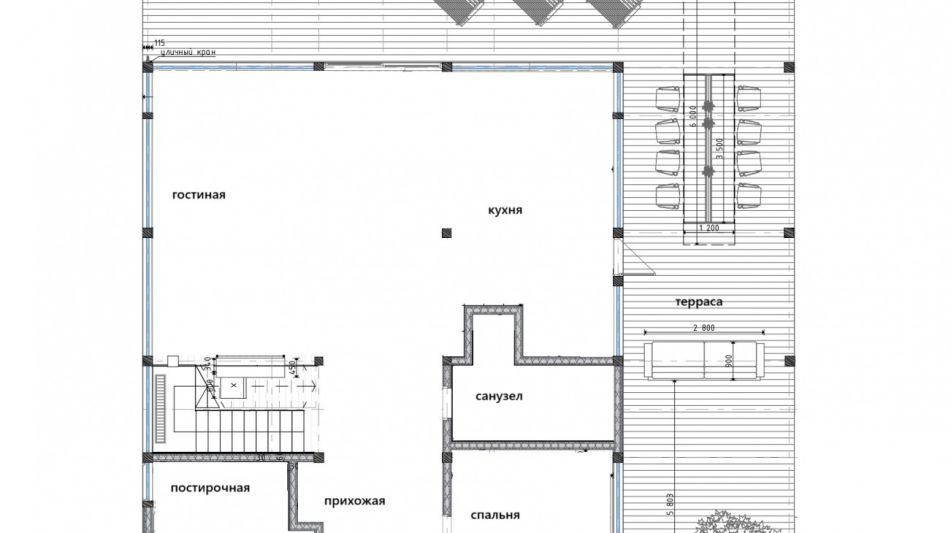
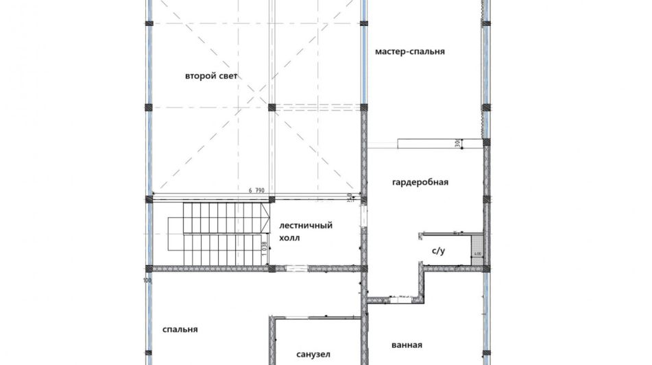
Планировка

Первый этаж: прихожая, постирочная с бойлерной, гостиная, кухня-столовая, санузел с турецкой баней (хаммам), спальня;
Второй этаж: мастер-спальня, спальня с санузлом, второй свет.

Описание поселка

Коттеджный поселок «Полуостров» расположен на берегу реки Истры в 54 км от Москвы по Ленинградскому шоссе.
Коттеджный поселок рассчитан всего на 84 домовладения, треть из которых находятся на первой береговой линии. Концепцией коттеджного поселка Полуостров предусмотрено наличие эллинга для хранения и обслуживания лодок, есть крытый теннисный корт, футбольное поле, а также детская и спортивная площадка. У всех жителей коттеджного поселка есть доступ к набережной и песчаному пляжу. Территория поселка охраняется, на въезде организован КПП с шлагбаумом. К домовладениям подведены все центральные коммуникации – идеальное решение для любителей городского комфорта.
Инфраструктура, необходимая для ежедневной жизни: магазины, поликлиники, детские сады, школы – расположена всего в 9 км в городе Солнечногорск.
Время в пути до Москвы составит менее 1 часа по Ленинградскому шоссе. В 15 минутах от коттеджного поселка Полуостров расположена станция «Подсолнечная», время в пути на экспресс-электричке «Ласточка» до Ленинградского вокзала составит всего 40 минут. Удачное расположение поселка позволяет быстро добраться до международного аэропорта «Шереметьево» (в течение 40 минут).

Читать далее

Инфраструктура

На территории поселка:

Прогулочная набережная
Детские площадки
Теннисный корт
Футбольное поле
Спортивная площадка

Лот: 95536790

390000000

5390500

4638800

Записаться на просмотр
Предложите свою цену
В сравнение В избранное Скачать

354 м2

63 сотки

4 спальни

Под ключ

Ленинградское шоссе

54 км от МКАД

Ваш персональный менеджер

Попова Нина
Эксперт по загородной недвижимости

+7 (499) 288-14-79
Перезвонить мне

Похожие предложения

Попова Нина
Эксперт по загородной недвижимости

Помогу подобрать Вам дом быстро и по привлекательной цене

Расположение поселка

Выбор поселка по шоссе

Дмитровское шоссе
Новорижское шоссе
Горьковское шоссе
Путилковское шоссе
Рогачевское шоссе
Рублево-Успенское шоссе
Всего лотов: 9 лотов
Всего лотов: 1 лот
Всего лотов: 24 лота
Всего лотов: 1 лот
Всего лотов: 20 лотов
Всего лотов: 8 лотов
Всего лотов: 19 лотов
×
Заявка отправлена