Описание

ашему вниманию представляется современный коттедж площадью 422,8 кв.м на рельефном участке 12,76 соток в коттеджном поселке Петрово-Дальнее, расположенном всего в 14 км от МКАД по Новорижскому шоссе.

В доме: 5 спален с индивидуальными ванными комнатами и гардеробными, просторная кухня-гостиная с выходом на открытую веранду, кабинет, парадный холл с двумя гардеробными, 2 кладовые, котельная, теплый гараж на 2 м/м.

Особенности: современная архитектура, продуманная планировка, мастер-блоки на двух уровнях, большая площадь остекления, несколько корабельных сосен и взрослых берез на участке, живописные виды на лесной массив.
Архитектурный проект выполнен студией Nefaproject и идеально интегрирован в природный ландшафт.

Живописный рельефный участок 12,76 соток с естественными перепадами и взрослыми реликтовыми соснами. Уложен газон, на придомовой территории высажены взрослые липы. Рельеф дает возможность реализовать уникальный ландшафтный проект. По периметру участка - кованое ограждение в едином стиле поселка. Земли ИЖС, соседи проживают круглогодично.

Количество спален: 5

Тип дома: кирпичный

Готовность: Под отделку

Категория земли: Земли нас. пунктов, ИЖС

Охраняемая территория: Да

Есть вопросы по объекту? Звоните

Коммуникации

Газ: Да

Канализация: центральная

Водопровод: центральный

Планировка

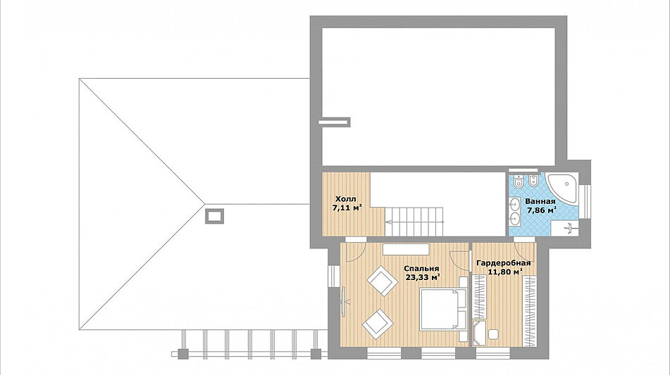
Первый этаж: тамбур, парадный холл, гардеробные, гостевая спальня с ванной, кабинет, гостевой санузел, гараж на 2 м/м, котельная, 2 кладовые.
Второй этаж: кухня-гостиная с выходом на балкон, мастер-спальня с ванной и гардеробной, 2 комнаты с ванными и выходами на общий балкон, лестничный холл.
Третий этаж: мастер-спальня с ванной и гардеробной, холл.

Описание поселка

Охраняемый коттеджный посёлок «Петрово‑Дальнее» расположен в 14 км от МКАД по Новорижскому шоссе. Посёлок находится в окружении хвойного леса — в месте, где созданы все условия для комфортной загородной жизни в экологически благоприятной зоне.

Петрово-Дальнее - клубный поселок на 43 дома, которые построены в едином архитектурном стиле. На территории площадью 8,2 га бережно сохранён уникальный природный ландшафт с вековыми реликтовыми соснами. Уникальная природная среда создаёт особый микроклимат. Каждый дом органично вписан в окружающую среду, что позволяет жителям наслаждаться единением с природой, не отказываясь от современного комфорта.

Посёлок находится под круглосуточной охраной. Территория полностью огорожена, оборудована системой видеонаблюдения и регулярно патрулируется. На въезде организован контрольно‑пропускной пункт (КПП). Работает собственная эксплуатационная служба, обеспечивающая бесперебойное функционирование всех систем. Все коммуникации — центральные: электроснабжение, газоснабжение, холодное водоснабжение и канализация.
В посёлке обустроена комфортная среда для отдыха и активного досуга: теннисный корт для любителей спорта, баскетбольная площадка для динамичных игр и тренировок, детский городок с безопасными и увлекательными аттракционами для малышей, прогулочные зоны с дорожками, выложенными брусчаткой, и уютным парковым освещением — идеально для вечерних прогулок среди сосен. Удобное расположение посёлка обеспечивает быстрый выезд на Новорижское шоссе. Благодаря этому жители могут легко добраться до ключевых точек региона и столицы, сочетая преимущества загородной жизни с транспортной доступностью.

В 5 минутах езды на автомобиле — вся необходимая инфраструктура: сетевые супермаркеты («Вкусвилл», «Мираторг», Перекресток), МФЦ, аптеки, салоны красоты, фермерский рынок, больницы (Петрово‑Дальневская участковая и филиал Красногорской городской), образовательные учреждения (детский сад № 6, школа «Мир знаний», Петрово‑Дальневская общеобразовательная школа, Детская школа искусств), спортивные и развлекательные объекты (СОК «Петрово‑Дальнее», центр «Ильинка‑спорт», клуб «Легион»), дом культуры «Луч», пансионат с бассейнами и СПА, а также живописные прогулочные маршруты на слиянии рек Москва и Истра.

Выбирая охраняемый коттеджный посёлок «Петрово‑Дальнее», вы получаете жильё в экологически чистом районе среди хвойного леса. Чистый воздух и умиротворяющая атмосфера здесь способствуют здоровому образу жизни.

Продуманная внутренняя инфраструктура подходит как для активного отдыха, так и для спокойных прогулок. При этом всё необходимое находится в 5‑минутной доступности — развитая внешняя инфраструктура рядом.

Удобная транспортная развязка с выездом на Новорижское шоссе позволяет быстро добраться до города. Из коттеджного посёлка «Петрово‑Дальнее» легко добраться до ключевых точек столицы: до МКАД время в дороге займёт менее 25 минут на автомобиле, до «Москва‑Сити» можно доехать примерно за 35–40 минут.

Это место для тех, кто ценит гармонию с природой, безопасность и комфорт, стремится жить в престижном посёлке с продуманной инфраструктурой и при этом оставаться в удобной транспортной доступности от всех благ современной жизни.

Читать далее

Инфраструктура

На территории поселка:

Лот: 132104015

65000000

844500

722200

Записаться на просмотр
Предложите свою цену
В сравнение В избранное Скачать

423 м2

12.8 соток

5 спален

Без отделки

Новорижское шоссе

14 км от МКАД

в ипотеку

Ваш персональный менеджер

Васильева Анжелика
Специалист по работе
с загородной недвижимостью

+7 (499) 110-60-98
Перезвонить мне

Похожие предложения

Васильева Анжелика
Специалист по работе
с загородной недвижимостью

Помогу подобрать Вам дом быстро и по привлекательной цене

Расположение поселка

Выбор поселка по шоссе

Дмитровское шоссе
Новорижское шоссе
Горьковское шоссе
Путилковское шоссе
Рогачевское шоссе
Рублево-Успенское шоссе
Всего лотов: 9 лотов
Всего лотов: 1 лот
Всего лотов: 24 лота
Всего лотов: 1 лот
Всего лотов: 20 лотов
Всего лотов: 8 лотов
Всего лотов: 19 лотов
×
Заявка отправлена