Для корректной работы сайта выключите VPN

Описание

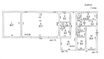
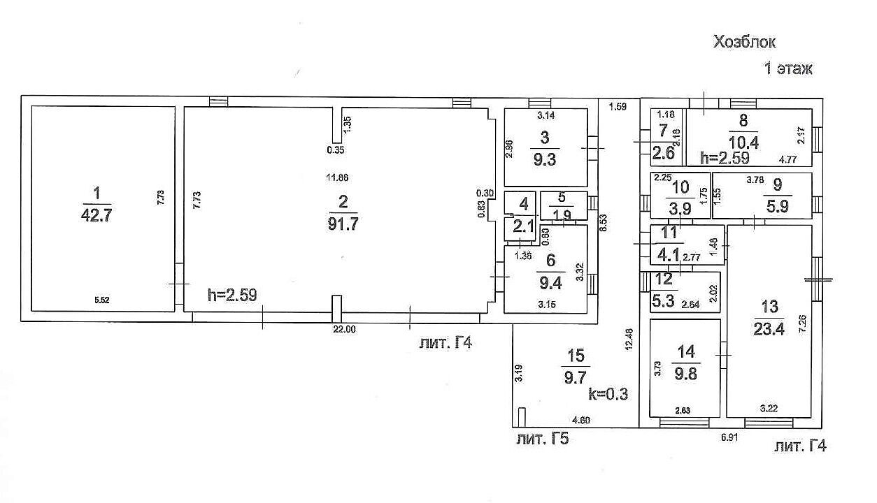
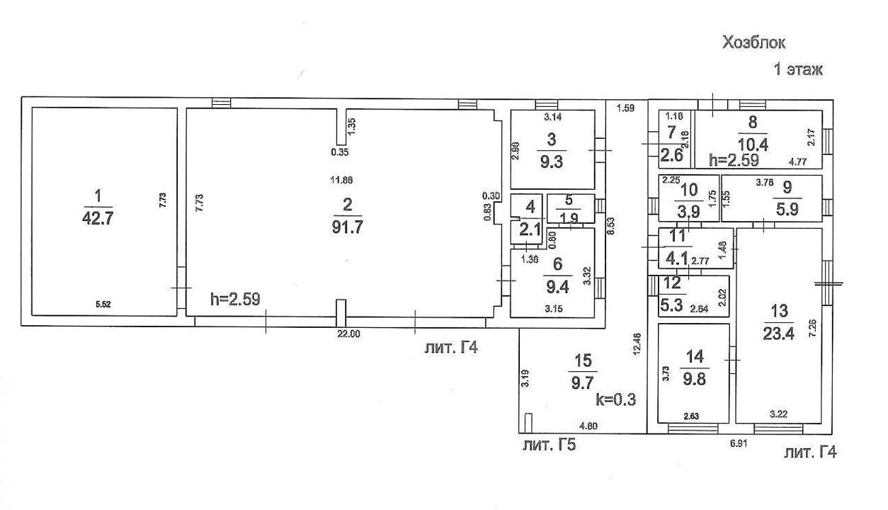
Вашему вниманию представляется загородная резиденция в коттеджном поселке премиум-класса Пестово. Поселок расположен всего в 22 км от МКАД по Дмитровскому шоссе и располагает всем необходимым для комфортной жизни. Помимо основного дома площадью 560 кв.м. на участке также расположен гостевой дом из клееного бруса 337 кв.м. , открытый бассейн, вместительный хозблок с гаражами, системой хранения и квартирой для персонала общей площадью 232 кв.м., всесезонная беседка с барбекю.

В основном доме удобно сочетаются общественная (1 этаж) и приватная (2 этаж) зоны. На первом этаже продумано разделение пространства на главные места притяжения: кухня, столовая и гостиная с двусторонним камином, дополнительная кухня-столовая с панорамным остеклением и выходом на террасу. Полы на первом этаже выполнены из керамогранита в зоне кухни, прихожей и санузла. Дополнительный комфорт обеспечивается системой водяного обогрева полов. В жилых зонах первого этажа для отделки пола использован натуральный массив, второго этажа - мягкий ковролин премиального качества.

Просторный участок площадью 40 соток представляет собой образец продуманного ландшафтного дизайна и функционального зонирования. Грамотное расположение всех строений на участке является ключевым фактором, обеспечивающим максимальную приватность и комфортное проживание. Декоративные деревья и кустарники, подобранные с учетом климатических особенностей, не только украшают территорию, но и служат естественными барьерами, создавая ощущение уединенности.

Количество спален: 4

Тип дома: кирпичный

Готовность: Готов полностью

Категория земли: Земли нас. пунктов, ИЖС

Бассейн: Да

Сауна: Да

Под ключ: Да

Баня на участке: Да

Охраняемая территория: Да

Наличие мебели: Да

Есть вопросы по объекту? Звоните

Коммуникации

Газ: Да

Канализация: центральная

Водопровод: центральный

Электричество, кВт: 30

Планировка

Основной дом:

Первый этаж: прихожая с встроенной системой хранения, гостевой санузел с душевой, кухня, столовая с камином, гостиная с камином и библиотекой, гостевая спальня, игровая (спортивный зал), котельная, теплая терраса;
Второй этаж: холл, спальня с выходом на балкон, санузел с душевой и ванной, спальня с выходом на террасу, мастер-блок (спальня с выходом на большую террасу, санузел с душевой и ванной и гардеробная), спортзал;

Гостевой дом:

Первый этаж: прихожая, гардеробная, гостевой санузел, кухня-столовая, гостиная, спа-комплекс (парная, душевая с джакузи, санузел, комната отдыха)
Второй этаж: мастер-блок (спальня, гардеробная, санузел), спальня, санузел, спальня, кабинет.

Описание поселка

Пестово – элитный коттеджный поселок, расположенный на берегу Пестовского водохранилища. От поселка до МКАД можно добраться всего за 20 минут, ведь он расположен в 22 км от столицы по Дмитровскому шоссе, при этом Пестово отличается прекрасной экологией: с трех сторон он окружен лесом, а с четвертой находится красивейшая набережная, протяженностью 2,5 км.

Собственный залив, яхт-клуб и возможность выхода в основные акватории Европы делают Пестово самым подходящим местом для любителей прогулок на яхте и водного спорта. При этом поселок Пестово абсолютно пригоден для постоянного, круглогодичного проживания. В поселке есть все центральные коммуникации, торговый комплекс, детский сад, начальная/средняя школа, детские и спортивные площадки. На набережной расположен прекрасный ресторан «Мелиора», с видом на Пестовское водохранилище.

Также в поселке Пестово есть собственные четыре открытых теннисных корта, волейбольные площадки, универсальная спортивная площадка для игры в футбол, баскетбол. Для любителей зимних видов спорта в поселке организована хоккейная коробка с теплой раздевалкой. На территории поселка есть свой эко-парк с благоустроенными тропинками и четыре декоративных озера с зонами отдыха. Поблизости расположен торгово-развлекательный комплекс «Каштановая роща» со всем необходимым: супермаркет «Азбука Вкуса», аптека, ресторан, салон красоты, детский спортивно-развлекательный клуб с батутным центром, зоомагазин и многое другое. В соседнем поселке «Зеленый Мыс» расположена одна из лучших школ Подмосковья – Ломоносовская школа. Также рядом с поселком Пестово расположен Гольф-клуб Пестово.

Читать далее

Инфраструктура

На территории поселка:

Школа
Ресторан
Прогулочная набережная
Пляж
Яхт клуб
Парк
Рыбалка
Детские площадки
Футбольное поле
Спортивная площадка

Лот: 131309993

375000000

5000100

4262700

Записаться на просмотр
Предложите свою цену
В сравнение В избранное Скачать

560 м2

40 соток

4 спальни

Под ключ

Дмитровское шоссе

22 км от МКАД

в ипотеку

Ваш персональный менеджер

Мугинова Айгуль
Специалист по работе
с загородной недвижимостью

+7 (499) 226-28-93
Перезвонить мне

Похожие предложения

Мугинова Айгуль
Специалист по работе
с загородной недвижимостью

Помогу подобрать Вам дом быстро и по привлекательной цене

Расположение поселка

Выбор поселка по шоссе

Дмитровское шоссе
Новорижское шоссе
Горьковское шоссе
Путилковское шоссе
Рогачевское шоссе
Рублево-Успенское шоссе
Всего лотов: 9 лотов
Всего лотов: 1 лот
Всего лотов: 24 лота
Всего лотов: 1 лот
Всего лотов: 20 лотов
Всего лотов: 8 лотов
Всего лотов: 19 лотов
×
Заявка отправлена