Для корректной работы сайта выключите VPN

Описание

Вашему вниманию представляем уютный дом в клубном поселке Новые Вешки. Монолитно-блочный 7.07 соток. В дом заведены все центральные коммуникации (электричество, водопровод, канализация), газ подведен к дому. Выполнена отделка фасада, установлены стеклопакеты. Стильный, немного строгий, но очень светлый и уютный дом по проекту «Бомонт» создан для семьи с детьми. У камина можно читать книги и обмениваться впечатлениями за день, в игровой дети смогут отдыхать, когда погода не позволяет выйти на улицу, в тренажерном зале можно поддерживать себя в форме, большая гостиная создана для приема гостей. Независимо от того, как вы любите проводить время, вы сможете делать это в своем новом доме.

Количество спален: 3

Тип дома: Блоки

Готовность: Готов полностью

Категория земли: Земли нас. пунктов, ИЖС

Сауна: Да

Охраняемая территория: Да

Есть вопросы по объекту? Звоните

Коммуникации

Газ: Да

Канализация: центральная

Водопровод: центральный

Электричество, кВт: 24

Планировка

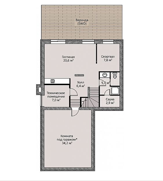
Цокольный этаж- гостиная с выходом на веранду, техническое помещение, с/у, сауна, комната под гаражом;
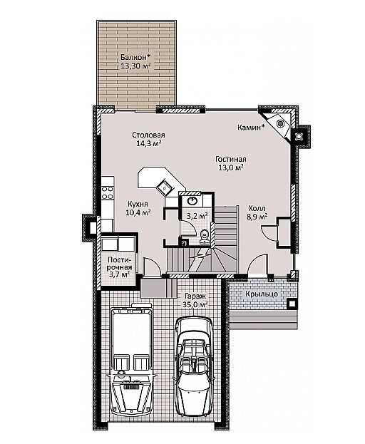
Первый этаж - гараж, холл, гостиная с камином, кухня-столовая с выходом на террасу, с/у, постирочная;
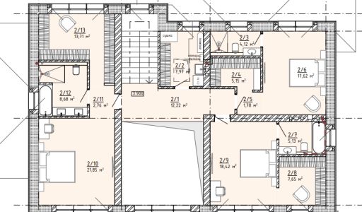
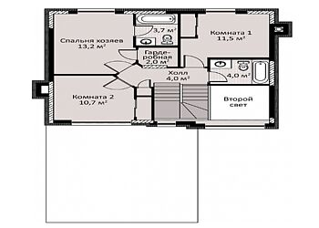
Второй этаж - мастер спальня со своей гардеробной и ванной комнатой, 2 спальни, с/у.

Описание поселка

Новые Вешки – элитный коттеджный поселок. От поселка до МКАД можно добраться всего за 5 минут, ведь он расположен в 3 км от столицы по Алтуфьевскому шоссе, при этом Новые Вешки отличаются прекрасной экологией. Поселок Новые Вешки абсолютно пригоден для постоянного, круглогодичного проживания. В поселке есть все центральные коммуникации, ясли, международная гимназия, детские и спортивные площадки. Помимо этого, в поселке Новые Вешки есть теннисные корты, волейбольные площадки, универсальная спортивная площадка для игры в футбол, баскетбол. Для любителей зимних видов спорта в поселке сделана хоккейная коробка с теплой раздевалкой. По близости расположен ТРК Весна,в котором расположены Ашан, Леруа Мерлен, Декатлон.

Читать далее

Инфраструктура

На территории поселка:

Школа
Супермаркет
Детские площадки
Теннисный корт
Хоккей
Спортивная площадка

Лот: 126917956

98605000

1381600

1178300

Записаться на просмотр
Предложите свою цену
В сравнение В избранное Скачать

205 м2

7.1 соток

3 спальни

Под ключ

Алтуфьевское шоссе

3 км от МКАД

в ипотеку

Ваш персональный менеджер

Руденко Мария
Специалист по работе
с загородной недвижимостью

+7 (499) 288-14-35
Перезвонить мне

Похожие предложения

Руденко Мария
Специалист по работе
с загородной недвижимостью

Помогу подобрать Вам дом быстро и по привлекательной цене

Расположение поселка

Выбор поселка по шоссе

Дмитровское шоссе
Новорижское шоссе
Горьковское шоссе
Путилковское шоссе
Рогачевское шоссе
Рублево-Успенское шоссе
Всего лотов: 9 лотов
Всего лотов: 1 лот
Всего лотов: 24 лота
Всего лотов: 1 лот
Всего лотов: 20 лотов
Всего лотов: 8 лотов
Всего лотов: 19 лотов
×
Заявка отправлена