Для корректной работы сайта выключите VPN

Описание

Вашему вниманию представляем уютный дом в клубном поселке Новые Вешки. Монолитно-блочный дом построен на уютном участке 10.22 соток. В дом заведены все центральные коммуникации (электричество, водопровод, канализация), газ подведен к дому. Выполнена отделка фасада, установлены стеклопакеты. Предлагаемые планировки покажутся необычными, но Вы оцените функциональность помещений. Гостиная отделена от общего пространства двусторонним камином: в такой комнате с выходом на террасу приятно проводить время, наслаждаясь сменяющими друг друга в течение года пейзажами. Кабинет также находится на первом этаже. Второй этаж полностью отведен под отдых. Столовая и кухня объединены единым пространством, однако зонированы друг от друга уровнем полов, что позволяет подчеркнуть назначение комнат. Мансардные окна дают дополнительное освещение лестнице, за счет чего пространство дома кажется еще больше.На третьем этаже расположено техническое помещение с игровой комнатой, гостинная и комната с выходом на веранду

Количество спален: 4

Тип дома: Блоки

Готовность: Готов полностью

Категория земли: Земли нас. пунктов, ИЖС

Охраняемая территория: Да

Есть вопросы по объекту? Звоните

Коммуникации

Газ: Да

Канализация: центральная

Водопровод: центральный

Электричество, кВт: 24

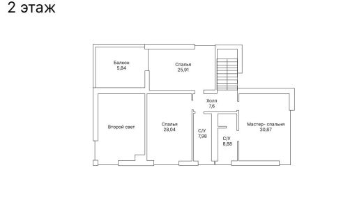
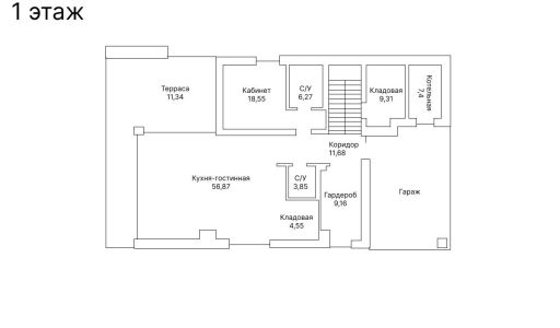
Планировка

Цокольный этаж- техническое помещение,игровая,2 комнаты, гостиная. с/у.
Первый этаж - гараж, холл, гостиная с камином и выходом на террасу, кухня-столовая с камином, с/у, техническое помещение, кабинет.
Второй этаж - мастер спальня с гардеробной комнатой и с/у, 4 спальни, с/у.

Описание поселка

Новые Вешки – элитный коттеджный поселок. От поселка до МКАД можно добраться всего за 5 минут, ведь он расположен в 3 км от столицы по Алтуфьевскому шоссе, при этом Новые Вешки отличаются прекрасной экологией. Поселок Новые Вешки абсолютно пригоден для постоянного, круглогодичного проживания. В поселке есть все центральные коммуникации, ясли, международная гимназия, детские и спортивные площадки. Помимо этого, в поселке Новые Вешки есть теннисные корты, волейбольные площадки, универсальная спортивная площадка для игры в футбол, баскетбол. Для любителей зимних видов спорта в поселке сделана хоккейная коробка с теплой раздевалкой. По близости расположен ТРК Весна,в котором расположены Ашан, Леруа Мерлен, Декатлон.

Читать далее

Инфраструктура

На территории поселка:

Школа
Супермаркет
Детские площадки
Теннисный корт
Хоккей
Спортивная площадка

Лот: 34970262

108360000

1497800

1288900

Записаться на просмотр
Предложите свою цену
В сравнение В избранное Скачать

447 м2

10.2 соток

4 спальни

Без отделки

Алтуфьевское шоссе

3 км от МКАД

в ипотеку

Ваш персональный менеджер

Руденко Мария
Специалист по работе
с загородной недвижимостью

+7 (499) 288-14-35
Перезвонить мне

Похожие предложения

Руденко Мария
Специалист по работе
с загородной недвижимостью

Помогу подобрать Вам дом быстро и по привлекательной цене

Расположение поселка

Выбор поселка по шоссе

Дмитровское шоссе
Новорижское шоссе
Горьковское шоссе
Путилковское шоссе
Рогачевское шоссе
Рублево-Успенское шоссе
Всего лотов: 9 лотов
Всего лотов: 1 лот
Всего лотов: 24 лота
Всего лотов: 1 лот
Всего лотов: 20 лотов
Всего лотов: 8 лотов
Всего лотов: 19 лотов
×
Заявка отправлена