Для корректной работы сайта выключите VPN

Описание

Вашему вниманию представляем уютный дом в клубном поселке Новые Вешки. Монолитно-блочный дом построен на уютном участке 7.06 соток. В дом заведены все центральные коммуникации (электричество, водопровод, канализация), газ подведен к дому. Выполнена отделка фасада, установлены стеклопакеты. Внутреннее пространство дома также впечатляет. В большой гостиной возможно установить трехсторонний камин: он поделит комнату на зоны, при этом его будет видно практически из любой точки первого этажа. Галерея соединяет лестницу и спальни второго этажа, второй свет наполняет помещения воздухом и ощущением безграничного пространства. Балкон и веранда могут стать любимым местом для семейных посиделок.

Количество спален: 6

Тип дома: Блоки

Готовность: Готов полностью

Категория земли: Земли нас. пунктов, ИЖС

Охраняемая территория: Да

Есть вопросы по объекту? Звоните

Коммуникации

Газ: Да

Канализация: центральная

Водопровод: центральный

Электричество, кВт: 24

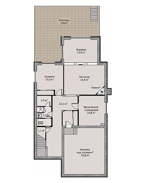
Планировка

Цокольный этаж- гостиная с камином, комната отдыха,техническое помещение, с/у, комната под гаражом, игровая с выходом на веранду.
Первый этаж - гараж, холл, гостиная с камином, кухня-столовая с выходом на террасу, с/у, постирочная.
Второй этаж - мастер спальня со своей гардеробной и ванной комнатой, 4 спальни, с/у.

Описание поселка

Новые Вешки – элитный коттеджный поселок. От поселка до МКАД можно добраться всего за 5 минут, ведь он расположен в 3 км от столицы по Алтуфьевскому шоссе, при этом Новые Вешки отличаются прекрасной экологией. Поселок Новые Вешки абсолютно пригоден для постоянного, круглогодичного проживания. В поселке есть все центральные коммуникации, ясли, международная гимназия, детские и спортивные площадки. Помимо этого, в поселке Новые Вешки есть теннисные корты, волейбольные площадки, универсальная спортивная площадка для игры в футбол, баскетбол. Для любителей зимних видов спорта в поселке сделана хоккейная коробка с теплой раздевалкой. По близости расположен ТРК Весна,в котором расположены Ашан, Леруа Мерлен, Декатлон.

Читать далее

Инфраструктура

На территории поселка:

Школа
Супермаркет
Детские площадки
Теннисный корт
Хоккей
Спортивная площадка

Лот: 126913896

111648000

1564400

1334100

Записаться на просмотр
Предложите свою цену
В сравнение В избранное Скачать

447 м2

7.1 соток

6 спален

Без отделки

Алтуфьевское шоссе

3 км от МКАД

в ипотеку

Ваш персональный менеджер

Куранова Наталья
Специалист по работе
с загородной недвижимостью

+7 (499) 226-29-13
Перезвонить мне

Похожие предложения

Куранова Наталья
Специалист по работе
с загородной недвижимостью

Помогу подобрать Вам дом быстро и по привлекательной цене

Расположение поселка

Выбор поселка по шоссе

Дмитровское шоссе
Новорижское шоссе
Горьковское шоссе
Путилковское шоссе
Рогачевское шоссе
Рублево-Успенское шоссе
Всего лотов: 9 лотов
Всего лотов: 1 лот
Всего лотов: 24 лота
Всего лотов: 1 лот
Всего лотов: 20 лотов
Всего лотов: 8 лотов
Всего лотов: 19 лотов
×
Заявка отправлена