Для корректной работы сайта выключите VPN

Описание

Вашему вниманию представляем уютный дом в клубном поселке Новые Вешки. Монолитно-блочный дом построен на уютном участке 8.34 соток. В дом заведены все центральные коммуникации (электричество, водопровод, канализация), газ подведен к дому. Выполнена отделка фасада, установлены стеклопакеты. Своими размерами впечатляет не только сам дом: веранда, балкон, крыльцо также очень просторны, здесь можно проводить время в хорошую погоду. А благодаря большим окнам можно любоваться природой даже сидя на кухне или в одной из комнат. Спальни отличаются простором и правильным расположением окон. Четыре санузла — гарантия того, что ни одному члену семьи не придется ждать своей очереди в душ.

Количество спален: 5

Тип дома: Блоки

Готовность: Готов полностью

Категория земли: Земли нас. пунктов, ИЖС

Сауна: Да

Охраняемая территория: Да

Есть вопросы по объекту? Звоните

Коммуникации

Газ: Да

Канализация: центральная

Водопровод: центральный

Электричество, кВт: 24

Планировка

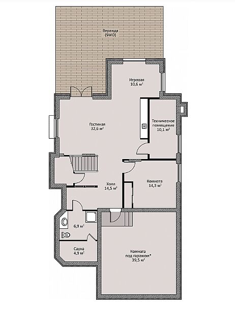
Цокольный этаж- гостиная с выходом на веранду, комната отдыха, техническое помещение, с/у, комната под гаражом, сауна, холл, игровая.
Первый этаж - гараж, холл, гостиная с камином и выходом на балкон, кухня-столовая, с/у, постирочная/кладовая, кабинет.
Второй этаж - мастер спальня с гардеробной и с/у, 3 спальни, с/у.

Описание поселка

Новые Вешки – элитный коттеджный поселок. От поселка до МКАД можно добраться всего за 5 минут, ведь он расположен в 3 км от столицы по Алтуфьевскому шоссе, при этом Новые Вешки отличаются прекрасной экологией. Поселок Новые Вешки абсолютно пригоден для постоянного, круглогодичного проживания. В поселке есть все центральные коммуникации, ясли, международная гимназия, детские и спортивные площадки.Новые Вешки – элитный коттеджный поселок. От поселка до МКАД можно добраться всего за 5 минут, ведь он расположен в 3 км от столицы по Алтуфьевскому шоссе, при этом Новые Вешки отличаются прекрасной экологией. Поселок Новые Вешки абсолютно пригоден для постоянного, круглогодичного проживания. В поселке есть все центральные коммуникации, ясли, международная гимназия, детские и спортивные площадки. Так же в поселке Новые Вешки, есть теннисные корты, волейбольные площадки, универсальная спортивная площадка для игры в футбол, баскетбол. Для любителей зимних видов спорта в поселке сделана хоккейная коробка с теплой раздевалкой. По близости расположен торгово-развлекательный комплекс «Весна», Ашан, Леруа Мерлен, Декатлон.

Читать далее

Инфраструктура

На территории поселка:

Школа
Супермаркет
Детские площадки
Теннисный корт
Хоккей
Спортивная площадка

Лот: 126979198

112875000

1592100

1364600

Записаться на просмотр
Предложите свою цену
В сравнение В избранное Скачать

428 м2

8.3 соток

5 спален

Без отделки

Алтуфьевское шоссе

3 км от МКАД

в ипотеку

Ваш персональный менеджер

Юсова Алеся
Специалист по работе
с загородной недвижимостью

7 (499) 226-25-71
Перезвонить мне

Похожие предложения

Юсова Алеся
Специалист по работе
с загородной недвижимостью

Помогу подобрать Вам дом быстро и по привлекательной цене

Расположение поселка

Выбор поселка по шоссе

Дмитровское шоссе
Новорижское шоссе
Горьковское шоссе
Путилковское шоссе
Рогачевское шоссе
Рублево-Успенское шоссе
Всего лотов: 9 лотов
Всего лотов: 1 лот
Всего лотов: 24 лота
Всего лотов: 1 лот
Всего лотов: 20 лотов
Всего лотов: 8 лотов
Всего лотов: 19 лотов
×
Заявка отправлена