Для корректной работы сайта выключите VPN

Описание

Вашему вниманию представляем уютный дом в клубном поселке Новые Вешки. Деревянно-каркасный дом построен на уютном участке 8.56 соток. В дом заведены все центральные коммуникации (электричество, водопровод, канализация), газ подведен к дому. Выполнена отделка фасада, установлены стеклопакеты. Он наполнен воздухом и светом: большие окна, просторные комнаты, второй свет, изящная лестница придают ему легкости и невесомости. Огромная гостиная позволяет реализовать самые разные задумки: здесь можно поставить бильярдный стол, создать пространство для отдыха, заполненное мягкими или подвесными креслами. Площадь позволяет обыграть и спальни, превратив обычные комнаты в царские покои, каюту корабля или апартаменты маленькой принцессы.

Количество спален: 6

Тип дома: деревянный

Готовность: Готов полностью

Категория земли: Земли нас. пунктов, ИЖС

Сауна: Да

Охраняемая территория: Да

Есть вопросы по объекту? Звоните

Коммуникации

Газ: Да

Канализация: центральная

Водопровод: центральный

Электричество, кВт: 24

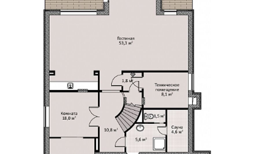
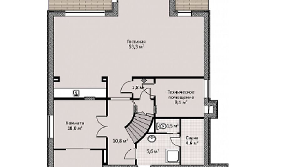
Планировка

Цокольный этаж- гостиная с выходом на веранду, комната отдыха,техническое помещение, с/у, комната под гаражом, сауна.
Первый этаж - гараж, холл, гостиная с камином и выходом на балкон, кухня столовая, с/у, комната, прачечная, гардербная.
Второй этаж - мастер спальня с гардеробной и с/у, 3 спальни, с/у.

Описание поселка

Новые Вешки – элитный коттеджный поселок. От поселка до МКАД можно добраться всего за 5 минут, ведь он расположен в 3 км от столицы по Алтуфьевскому шоссе, при этом Новые Вешки отличаются прекрасной экологией. Поселок Новые Вешки абсолютно пригоден для постоянного, круглогодичного проживания. В поселке есть все центральные коммуникации, ясли, международная гимназия, детские и спортивные площадки. Помимо этого, в поселке Новые Вешки есть теннисные корты, волейбольные площадки, универсальная спортивная площадка для игры в футбол, баскетбол. Для любителей зимних видов спорта в поселке сделана хоккейная коробка с теплой раздевалкой. По близости расположен ТРК Весна,в котором расположены Ашан, Леруа Мерлен, Декатлон.

Читать далее

Инфраструктура

На территории поселка:

Школа
Супермаркет
Детские площадки
Теннисный корт
Хоккей
Спортивная площадка

Лот: 34969858

116659000

1645400

1410300

Записаться на просмотр
Предложите свою цену
В сравнение В избранное Скачать

405 м2

8.6 соток

6 спален

Без отделки

Алтуфьевское шоссе

3 км от МКАД

в ипотеку

Ваш персональный менеджер

Калямова Валерия
Специалист по работе
с загородной недвижимостью

+7 (499) 288-04-12
Перезвонить мне

Похожие предложения

Калямова Валерия
Специалист по работе
с загородной недвижимостью

Помогу подобрать Вам дом быстро и по привлекательной цене

Расположение поселка

Выбор поселка по шоссе

Дмитровское шоссе
Новорижское шоссе
Горьковское шоссе
Путилковское шоссе
Рогачевское шоссе
Рублево-Успенское шоссе
Всего лотов: 9 лотов
Всего лотов: 1 лот
Всего лотов: 24 лота
Всего лотов: 1 лот
Всего лотов: 20 лотов
Всего лотов: 8 лотов
Всего лотов: 19 лотов
×
Заявка отправлена