Описание

Вашему вниманию представляем уютный дом в клубном поселке Новые Вешки. Монолитно-блочный дом построен на уютном участке 8.06 соток. В дом заведены все центральные коммуникации (электричество, водопровод, канализация), газ подведен к дому. Прекрасные планировочные решения: это небольшая башенка над гаражом, и огромный второй свет, и галерея на втором этаже, и камин в центре гостиной, и отделенные друг от друга кухня, гостиная и столовая, и диагональный коридор. В доме есть четыре спальни, кабинет, гардеробная, постирочная, спортзал и даже сауна: продуманные планировки делают дом не только стильным, но и комфортным. С кухни можно выйти на балкон, что особенно оценят любители собираться за столом на свежем воздухе.

Количество спален: 4

Тип дома: Блоки

Готовность: Готов полностью

Категория земли: Земли нас. пунктов, ИЖС

Сауна: Да

Охраняемая территория: Да

Есть вопросы по объекту? Звоните

Коммуникации

Газ: Да

Канализация: центральная

Водопровод: центральный

Электричество, кВт: 24

Планировка

Планировки:
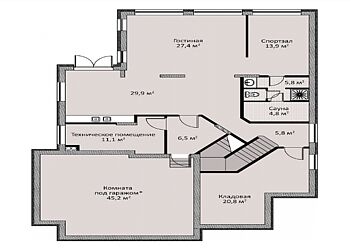
Цокольный этаж - техническое помещение, две кладовые, сауна, с/у, спортзал, гостиная, зона отдыха с домашним кинотеатром
Первый этаж - гараж, кабинет, холл, постирочная, столовая, гостиная с камином и вторым светом, кухня, с/у
Второй этаж - мастер спальня с гардеробной и ванной комнатой, 3 спальни, с/у, галерея

Описание поселка

Новые Вешки – элитный коттеджный поселок. От поселка до МКАД можно добраться всего за 5 минут, ведь он расположен в 3 км от столицы по Алтуфьевскому шоссе, при этом Новые Вешки отличаются прекрасной экологией. Поселок Новые Вешки абсолютно пригоден для постоянного, круглогодичного проживания. В поселке есть все центральные коммуникации, ясли, международная гимназия, детские и спортивные площадки.Новые Вешки – элитный коттеджный поселок. От поселка до МКАД можно добраться всего за 5 минут, ведь он расположен в 3 км от столицы по Алтуфьевскому шоссе, при этом Новые Вешки отличаются прекрасной экологией. Поселок Новые Вешки абсолютно пригоден для постоянного, круглогодичного проживания. В поселке есть все центральные коммуникации, ясли, международная гимназия, детские и спортивные площадки. Так же в поселке Новые Вешки, есть теннисные корты, волейбольные площадки, универсальная спортивная площадка для игры в футбол, баскетбол. Для любителей зимних видов спорта в поселке сделана хоккейная коробка с теплой раздевалкой. По близости расположен торгово-развлекательный комплекс «Весна», Ашан, Леруа Мерлен, Декатлон.

Читать далее

Инфраструктура

На территории поселка:

Школа
Супермаркет
Детские площадки
Теннисный корт
Хоккей
Спортивная площадка

Лот: 126980109

146763000

1950800

1654100

Записаться на просмотр
Предложите свою цену
В сравнение В избранное Скачать

435 м2

8.1 соток

4 спальни

Под ключ

Алтуфьевское шоссе

3 км от МКАД

в ипотеку

Ваш персональный менеджер

Кузнецова Елена
Специалист по работе
с загородной недвижимостью

+7 (499) 110-24-95
Перезвонить мне

Похожие предложения

Кузнецова Елена
Специалист по работе
с загородной недвижимостью

Помогу подобрать Вам дом быстро и по привлекательной цене

Расположение поселка

Выбор поселка по шоссе

Дмитровское шоссе
Новорижское шоссе
Горьковское шоссе
Путилковское шоссе
Рогачевское шоссе
Рублево-Успенское шоссе
Всего лотов: 9 лотов
Всего лотов: 1 лот
Всего лотов: 24 лота
Всего лотов: 1 лот
Всего лотов: 20 лотов
Всего лотов: 8 лотов
Всего лотов: 19 лотов
×
Заявка отправлена