Для корректной работы сайта выключите VPN

Описание

Вашему вниманию представляется эксклюзивная трехуровневая резиденция в престижном поселке Никольская слобода, расположенном в 9 км от МКАД по Новорижскому шоссе. В доме завершена изысканная отделка из натуральных материалов, мебель и техника представлена ведущими мировыми брендами.

В холле вас встретит роскошная парадная лестница с балясинами из хрусталя, выполненными эксклюзивно для этого дома. Затем мы увидим просторную гостиную со вторым светом и зоной камина, профессиональную кухню с высококлассным оборудованием премиум-класса.

Большой участок площадью 41 сотка утопает в зелени, создавая приватную атмосферу уединения и покоя. Придомовая территория с футбольным полем и спортивной площадкой добавляет активности и разнообразия в повседневную жизнь. Фонтан при въезде в усадьбу, парковка на 6 автомобилей, гараж на 3 машиноместа с квартирой для персонала на втором этаже – все продумано до мелочей для удобства и комфорта владельцев.

Количество спален: 7

Тип дома: кирпичный

Готовность: Готов полностью

Категория земли: Земли нас. пунктов, ИЖС

Бассейн: Да

Сауна: Да

Под ключ: Да

Лифт в доме: Да

Охраняемая территория: Да

Есть вопросы по объекту? Звоните

Коммуникации

Газ: Да

Канализация: центральная

Водопровод: центральный

Электричество, кВт: 15

Планировка

Цокольный этаж: котельная, два кладовых помещения, чемоданная, салон красоты-СПА, винный погреб, студия звукозаписи, спальня, постирочная, хозяйственный блок, два санузла;
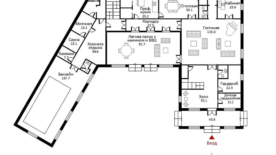
Первый этаж: две гардеробные, три санузла, гостиная, кабинет, столовая, кухня, СПА зона ( бассейн, хамам, сауна), комната отдыха, летняя веранда;
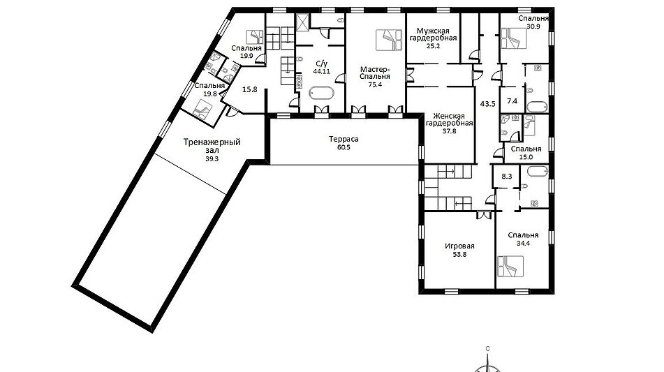
Второй этаж: игровая, шесть мастер-спален, тренажерный зал, терраса.

Описание поселка

Никольская слобода - один из лучших подмосковных поселков, расположен всего в 9 км от МКАД по Новорижскому шоссе. Здесь сохранился удивительный природный уголок: сосновый бор, защищающий поселок от шума, красивый каскад проточных прудов на реке Липка.

На въезде в поселок сооружается спортивно-развлекательный комплекс, включающий в себя фитнес-центр, плавательный бассейн (с 25-метровыми дорожками) и сауну. Недавно на территории поселка начал работу теннисный клуб «Теннис Лэнд» с тремя универсальными кортами, предназначенными как для профессиональных занятий теннисом, так и для игры в мини футбол.
Поселок хорошо вписан в природное окружение и с трех сторон окружен реликтовым лесом. На территории расположен частный детский сад, множество детских игровых комплексов, прогулочные маршруты и зоны отдыха в лесу, озеро, оборудованные места для рыбалки, футбольное поле, теннисные корты.

В пятиминутной доступности автотранспортом есть торгово-развлекательный и конноспортивный комплексы, рестораны, фермерский рынок, бизнес-центр, два фитнесс-центра, учебные и медицинские учреждения, салоны красоты, ветеринарная клиника и даже крытый каток.
Спокойствие и безопасность в поселке обеспечивает трехуровневая система охраны. Она включает в себя КПП, периметральную систему защиты, инфракрасные датчики в лесу и камеры видео наблюдения на открытых общественных зонах. При расстановке камер видеонаблюдения особое внимание уделялось соблюдению прайвеси жителей поселка.

Читать далее

Инфраструктура

На территории поселка:

Детский сад
Школа
Супермаркет
Ресторан
Медцентр
Фитнесцентр
Парк
Салон красоты
Детские площадки
Теннисный корт
Футбольное поле
Спортивная площадка

Лот: 99236817

1283208827

17545000

14871000

Записаться на просмотр
Предложите свою цену
В сравнение В избранное Скачать

2000 м2

41 сотка

7 спален

Под ключ

9 км от МКАД

в ипотеку

Ваш персональный менеджер

Гроздова Анастасия
Специалист по работе
с загородной недвижимостью

+7 (499) 117-03-56
Перезвонить мне

Похожие предложения

Гроздова Анастасия
Специалист по работе
с загородной недвижимостью

Помогу подобрать Вам дом быстро и по привлекательной цене

Расположение поселка

Выбор поселка по шоссе

Дмитровское шоссе
Новорижское шоссе
Горьковское шоссе
Путилковское шоссе
Рогачевское шоссе
Рублево-Успенское шоссе
Всего лотов: 9 лотов
Всего лотов: 1 лот
Всего лотов: 24 лота
Всего лотов: 1 лот
Всего лотов: 20 лотов
Всего лотов: 8 лотов
Всего лотов: 19 лотов
×
Заявка отправлена