Для корректной работы сайта выключите VPN

Описание

Вашему вниманию представляется новый дом в коттеджном поселке Мыс, расположенном в 20 км от МКАД по Минскому шоссе.
Срок сдачи — 3 квартал 2028 года. Дом 264 м2 в современном стиле на участке 6.45 соток.
Большие зоны остекления, второй свет натуральные материалы в отделке.

Количество спален: 4

Тип дома: кирпичный

Готовность: Строится

Категория земли: Земли нас. пунктов, ИЖС

Охраняемая территория: Да

Есть вопросы по объекту? Звоните

Коммуникации

Газ: Да

Канализация: центральная

Водопровод: центральный

Планировка

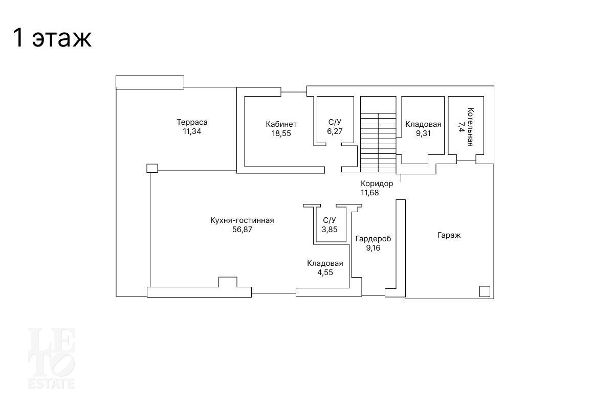
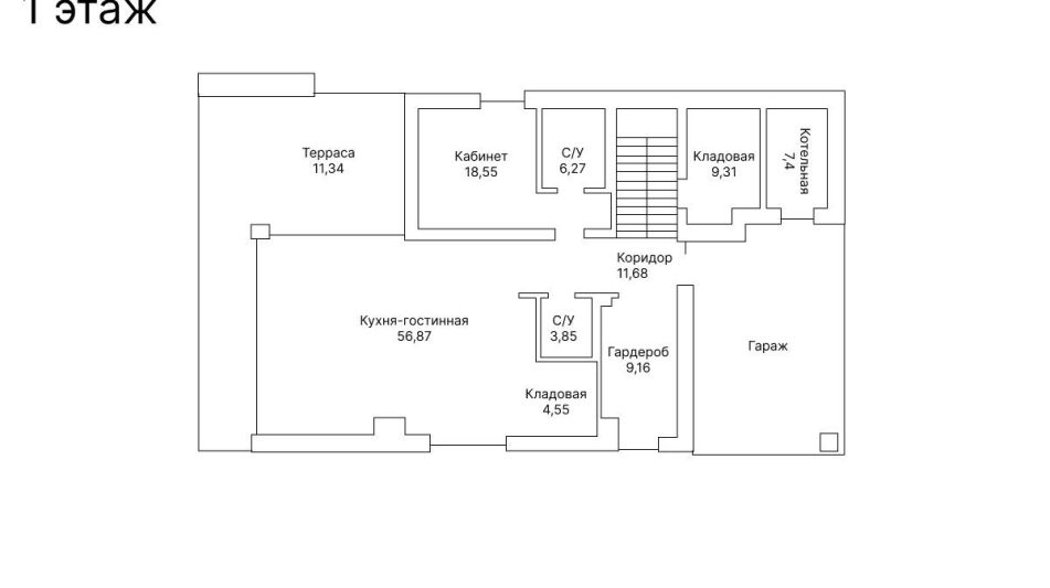
Первый этаж: гардероб, санузел, кухня-гостиная, кладовая, кабинет с санузлом, гараж с кладовой и котельной, терраса;
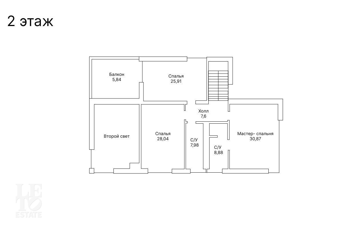
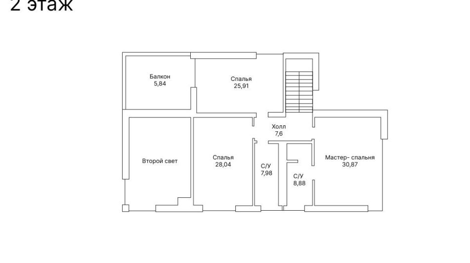
Второй этаж: мастер-спальня с санузлом, спальня с балконом, спальня, санузел.

Описание поселка

Коттеджный посёлок «МЫС» — загородный жилой проект в Подмосковье, расположенный в 20 км от МКАД по Минскому шоссе, в районе Ликино, рядом с лесом и природными водоёмами. Концепция проекта объединяет преимущества загородной жизни с инфраструктурой современного города, создавая комфортную среду для постоянного проживания.

Проект ориентирован на семейный формат жизни и предполагает разноформатную застройку с развитой инфраструктурой для детей и взрослых. На территории посёлка предусмотрены образовательные и спортивные объекты, зоны отдыха и прогулочные пространства — всё для гармоничного развития и полноценного досуга жителей всех возрастов.
Одним из ключевых элементов проекта станет крупный спортивный комплекс площадью около 20 000 м². В его составе запланированы: современные фитнес‑залы с панорамным остеклением; термальный комплекс с различными видами бань и купелей; крытый бассейн с регулируемой температурой воды; многофункциональные площадки для командных видов спорта; детские спортивные студии и секции творческого развития.
Территория посёлка будет тщательно благоустроена: проложены прогулочные маршруты с освещением, обустроены зоны отдыха у водоёмов, созданы детские игровые площадки и спортивные зоны. Для досуга жителей предусмотрены кафе и рестораны с видом на природу, а также многофункциональный клубный дом с коворкингом, библиотекой и детской игровой комнатой.

Расположение рядом с Минским шоссе и трассой М1 обеспечивает удобную транспортную доступность: до МКАД можно добраться примерно за 30 минут, а регулярное автобусное сообщение связывает посёлок с ближайшей станцией метро. Это позволяет жителям сочетать спокойствие загородной жизни с удобством ежедневных поездок в город.
Таким образом, коттеджный посёлок «МЫС» предлагает идеальное сочетание уединённости в окружении природы, развитой внутренней инфраструктуры и удобной транспортной доступности к мегаполису. Здесь созданы все условия для комфортной жизни семьи, активного отдыха и гармоничного развития детей — в шаговой доступности от живописных лесов и водоёмов, но всего в получасе езды от столицы.

Читать далее

Инфраструктура

На территории поселка:

Детский сад
Школа
Супермаркет
Ресторан
Фитнесцентр
Бассейн
Прогулочная набережная
Детские площадки
Спортивная площадка

Лот: 133824310

105000000

1435900

1232700

Записаться на просмотр
Предложите свою цену
В сравнение В избранное Скачать

264 м2

6.5 соток

4 спальни

Без отделки

Минское шоссе

20 км от МКАД

в ипотеку

Ваш персональный менеджер

Васильева Анжелика
Специалист по работе
с загородной недвижимостью

+7 (499) 110-60-98
Перезвонить мне

Похожие предложения

Васильева Анжелика
Специалист по работе
с загородной недвижимостью

Помогу подобрать Вам дом быстро и по привлекательной цене

Расположение поселка

Выбор поселка по шоссе

Дмитровское шоссе
Новорижское шоссе
Горьковское шоссе
Путилковское шоссе
Рогачевское шоссе
Рублево-Успенское шоссе
Всего лотов: 9 лотов
Всего лотов: 1 лот
Всего лотов: 24 лота
Всего лотов: 1 лот
Всего лотов: 20 лотов
Всего лотов: 8 лотов
Всего лотов: 19 лотов
×
Заявка отправлена