Описание

Представляем Вашему вниманию просторный дом в коттеджном поселке Лазурный берег на самом берегу Пестовского водохранилища всего в 20 км от МКАД по Дмитровскому шоссе.

Дом построен в 2005 году в классическом стиле с использованием высококачественных материалов, что делает его актуальным и стильным на сегодняшний день.

Ленточный фундамент, стены из керамического кирпича, железобетонные межэтажные перекрытия и мягкая черепица гарантируют надежность и долговечность дома .

На ровном благоустроенном участке 34 сотки так же расположен гостевой двухэтажный дом площадью 145 кв.м с гаражом на два машиноместа, что сделает проживание максимально комфортным и удобным для Вас и Ваших гостей.

Все коммуникации в поселке центральные: магистральный газ, водоснабжение, канализация, электричество 25 кВт.

Количество спален: 3

Тип дома: кирпичный

Готовность: Под отделку

Категория земли: Земли нас. пунктов, ИЖС

Бассейн: Да

Сауна: Да

Лифт в доме: Да

Охраняемая территория: Да

Есть вопросы по объекту? Звоните

Коммуникации

Газ: Да

Канализация: центральная

Водопровод: центральный

Электричество, кВт: 25

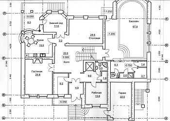
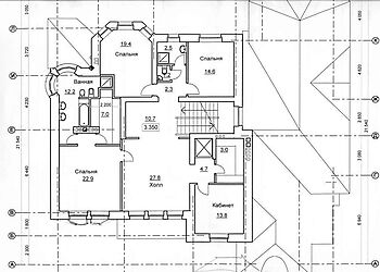
Планировка

Основной дом:
Цокольный этаж - бильярдная, мастерская, тренажерный зал, солярий, кладовые помещения, постирочная.
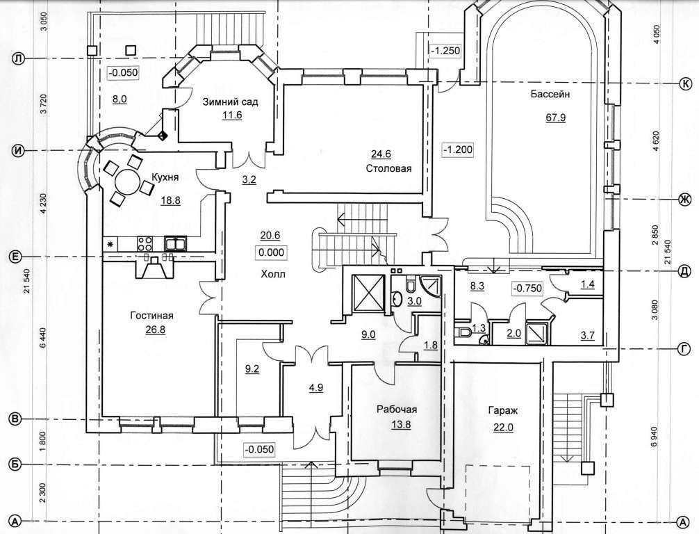
Первый этаж - прихожая, кухня, гостиная, столовая, зимний сад, бассейн, сауна, два санузда, гараж.
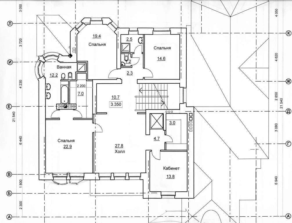
Второй этаж - прихожая, мастер спальня с гардеробной и санузлом, детская спальня с санузлом, гостевая спальня, кабинет.

Гостевой дом:
Первый этаж - большой гараж
Второй этаж - кухня, спальня, санузел.

Описание поселка

На пологом берегу Пестовского водохранилища, славящегося кристально чистой водой и прекрасными пейзажами, расположился элитный загородный поселок «Лазурный берег». Вплотную подступающий густой смешанный лес образует его естественную рекреационную зону. Два больших благоустроенных пляжа предоставляют возможности для занятий водными видами спорта, а для владельцев яхт и катеров предусмотрен причальный комплекс. Элегантные особняки органично вписаны в окружающий ландшафт. А безупречная экология и тишина, нарушаемая лишь пением птиц и плеском волн, дополняют неповторимую атмосферу гармонии с природой. В инфраструктуру включено все необходимое для создания поистине комфортной загородной среды. Поселок «Лазурный берег» расположен в окружении хвойных и лиственных лесов всего в 29 км от МКАД по Дмитровскому шоссе. Доехать из столицы до загородной резиденции по одной из лучших подмосковных трасс с высококачественным дорожным покрытием можно всего за 30 минут. От шоссе к поселку ведет живописная дорога, пролегающая вдоль канала имени Москвы. Так же Вы с легкостью сможете добраться до поселка на собственной яхте или же воспользовавшись небесным пространством, на вертолете.

Читать далее

Инфраструктура

На территории поселка:

Детский сад
Школа
Супермаркет
Прогулочная набережная
Рыбалка
Детские площадки
Спортивная площадка

Лот: 87583861

47500000

610400

520900

Записаться на просмотр
Предложите свою цену
В сравнение В избранное Скачать

640 м2

34 сотки

3 спальни

Без отделки

Дмитровское шоссе

20 км от МКАД

Ваш персональный менеджер

Калямова Валерия
Специалист по работе
с загородной недвижимостью

+7 (499) 288-04-12
Перезвонить мне

Похожие предложения

Калямова Валерия
Специалист по работе
с загородной недвижимостью

Помогу подобрать Вам дом быстро и по привлекательной цене

Расположение поселка

Выбор поселка по шоссе

Дмитровское шоссе
Новорижское шоссе
Горьковское шоссе
Путилковское шоссе
Рогачевское шоссе
Рублево-Успенское шоссе
Всего лотов: 9 лотов
Всего лотов: 1 лот
Всего лотов: 24 лота
Всего лотов: 1 лот
Всего лотов: 20 лотов
Всего лотов: 8 лотов
Всего лотов: 19 лотов
×
Заявка отправлена