Для корректной работы сайта выключите VPN

Описание

Вашему вниманию представляем дом площадью 440 кв. м. с отделкой «под ключ» в охраняемом коттеджном поселке Истранавтика, находящемся в 44 км от МКАД по Пятницкому шоссе. Дом расположен на лесном участке площадью 1 га на первой береговой линии Истринского водохранилища. Есть собственный причал.
Дом построен по индивидуальному проекту в 2020 году в современном стиле. В каждой спальне есть санузел, гардеробная и выход на собственную террасу. Внутренняя отделка выполнена в сдержанных тонах, установлены деревянные стеклопакеты. Дом отапливается электрическим котлом.

Просторный лесной участок обеспечивает полное единение с природой и отсутствие соседей. Участок граничит с инфраструктурной зоной – спортивным залом, пляжной, спортивной и детской площадками. По всему участку проведено уличное освещение.

Количество спален: 4

Жилая площадь: 49

Тип дома: деревянный

Готовность: Готов полностью

Категория земли: Земли сельхоз. назначения, дачное строительство

Наличие мебели: Да

Есть вопросы по объекту? Звоните

Коммуникации

Газ: Нет

Канализация: Септик

Водопровод: скважина

Электричество, кВт: 52

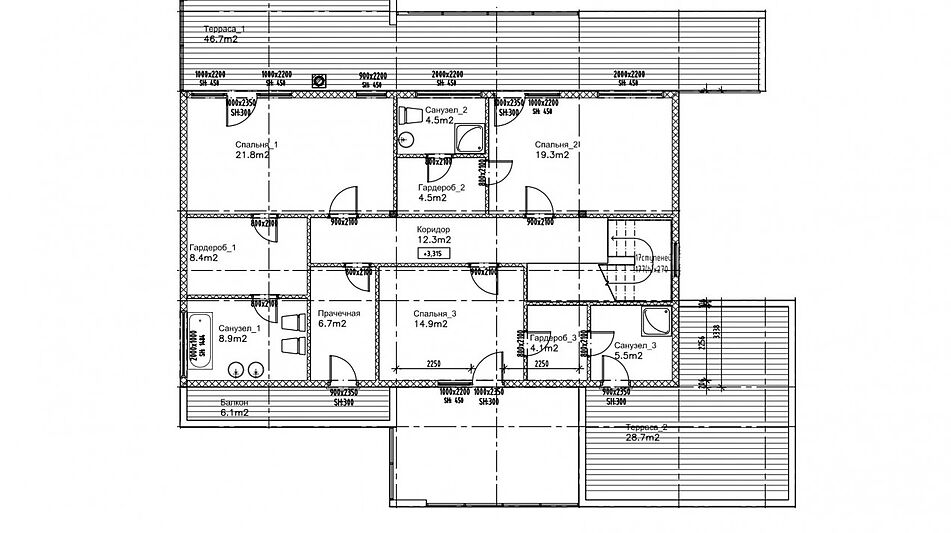
Планировка

Первый этаж: прихожая, кладовая, кухня-столовая-гостиная с террасой, терраса, спальня с гардеробом и санузлом, санузел, котельная, зона отдыха;
Второй этаж: три спальни с индивидуальными санузлами, гардеробными и террасами, прачечная.

Описание поселка

Охраняемый коттеджный поселок Истранавтика находится в 47 км от МКАД по Пятницкому шоссе, на первой береговой линии Истринского водохранилища. Минимальная площадь участка в поселке составляет 50 соток. Идеальный выбор для любителей уединения, тишины и леса.
В коттеджном поселке Истранавтика предусмотрены все удобства для комфортного круглогодичного проживания на берегу водохранилища: причал для лодок, прогулочная набережная, детская площадка, спортивная площадка, пляж, спортивный зал на берегу, бильярд и зона отдыха, въездная группа с КПП, охрана и видеонаблюдение по всей территории поселка. Территория поселка расположена в сосновом лесу на территории 14 гектар.
В поселке есть электричество, водоснабжение домов осуществляется с помощью поселковой скважины, канализация устроена в виде «умных» биостанций, обслуживание которых осуществляется управляющей компанией.
Ближайшие магазины расположены в дер. Соколово и Трусово в 3 км от коттеджного поселка Истранавтика.
Инфраструктура, необходимая для ежедневной жизни: магазины, поликлиники, детские сады, школы – расположена всего в 15 км в городе Солнечногорск, или в 20 км в городе Зеленоград.
Время в пути до Москвы составит 1 час по Пятницкому или Ленинградскому шоссе. В 30 минутах от коттеджного поселка Истранавтика расположена станция «Подсолнечная», время в пути на экспресс-электричке «Ласточка» до Ленинградского вокзала составит всего 40 минут. Удачное расположение поселка позволяет быстро добраться до международного аэропорта «Шереметьево» (в течение 50 минут).

Читать далее

Инфраструктура

На территории поселка:

Ресторан
Бассейн
Пляж
Рыбалка
Детские площадки
Теннисный корт
Спортивная площадка

Лот: 111807065

110000000

1470600

1241000

Записаться на просмотр
Предложите свою цену
В сравнение В избранное Скачать

455 м2

100 соток

4 спальни

Под ключ

Пятницкое шоссе

44 км от МКАД

Ваш персональный менеджер

Гроздова Анастасия
Специалист по работе
с загородной недвижимостью

+7 (499) 117-03-56
Перезвонить мне

Похожие предложения

Гроздова Анастасия
Специалист по работе
с загородной недвижимостью

Помогу подобрать Вам дом быстро и по привлекательной цене

Расположение поселка

Выбор поселка по шоссе

Дмитровское шоссе
Новорижское шоссе
Горьковское шоссе
Путилковское шоссе
Рогачевское шоссе
Рублево-Успенское шоссе
Всего лотов: 9 лотов
Всего лотов: 1 лот
Всего лотов: 24 лота
Всего лотов: 1 лот
Всего лотов: 20 лотов
Всего лотов: 8 лотов
Всего лотов: 19 лотов
×
Заявка отправлена