Для корректной работы сайта выключите VPN

Описание

Вашему вниманию представлен дом 282 кв м, расположенный в клубном коттеджном поселке Истра Лэнд-2 в 45 км от МКАД по Новорижскому шоссе.
Проект дома выполнен в современном стиле удовлетворит вкусы самых взыскательных покупателей, так как является плодом многолетней деятельности строительной компании-подрядчика. Дом возведен на монолитной фундаментной плите, стены выполнены из крупноформатного керамического блока Paraterm, окна - двухкамерный стеклопакет, металлическая входная дверь. В проекте дома заложена эксплуатируемая крыша, которая позволит наслаждаться прекрасными видами. Имеется подробная проектная документация с дизайнерскими решениями.
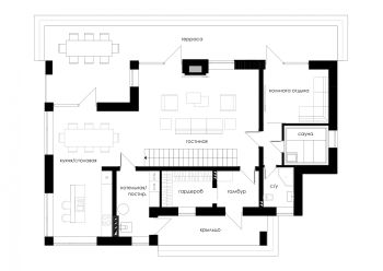
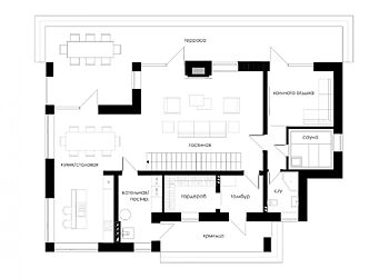
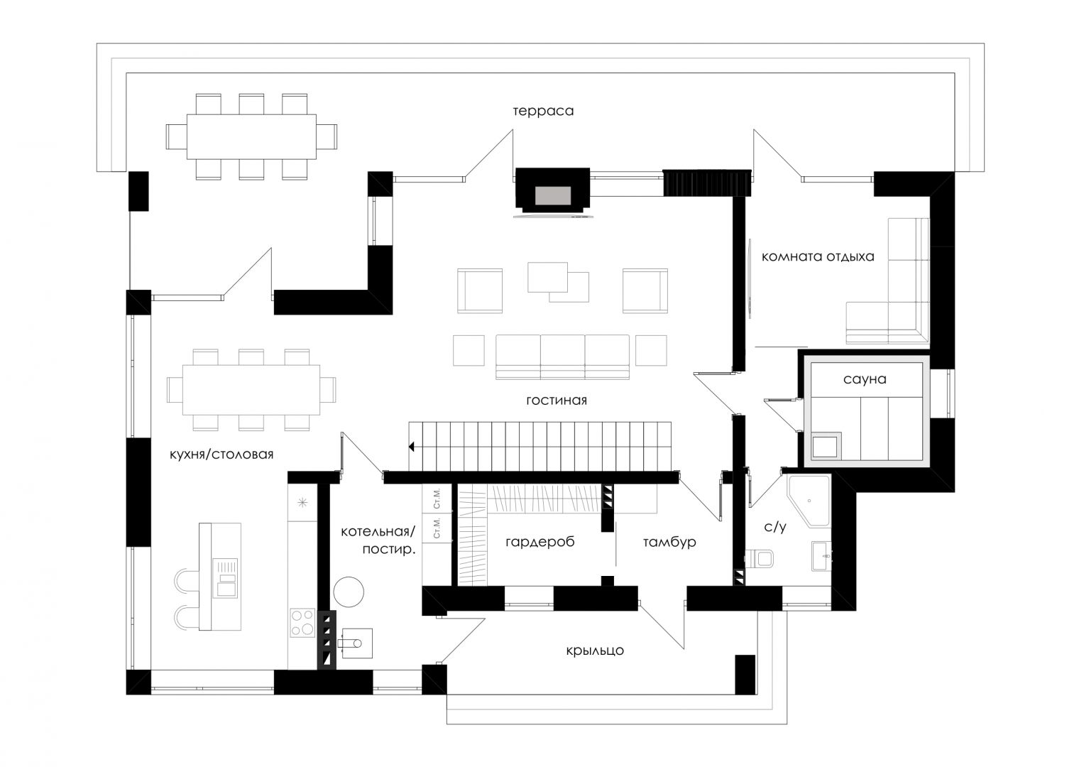
Помимо конструктива дома, продумано до мелочей и планировочное решение: просторные три спальни, большая гостиная, терраса, кабинет, три гардеробные, три санузла и сауна, также по проекту на участке можно разместить бассейн.

Участок 12 соток правильной и ровной формы. Дома в поселке расположены самым лучшим образом: так, что без возведения больших заборов можно чувствовать атмосферу уединения с природой.
К дому подведены все необходимые центральные коммуникации: газ, электричество, вода, канализация. Есть место для площадки для парковки перед домом и возможно строительство навеса или теплого гаража.

Количество спален: 4

Санузел: совмещенный

Тип дома: кирпичный

Готовность: Строится

Высота потолков: 3.5

Категория земли: Земли нас. пунктов, ИЖС

Бассейн: Да

Сауна: Да

Лесной участок: Да

Охраняемая территория: Да

Есть вопросы по объекту? Звоните

Коммуникации

Газ: Да

Канализация: центральная

Водопровод: центральный

Электричество, кВт: 15

Планировка

Первый этаж: холл, кабинет, санузел, гардеробная, кухня-гостиная, котельная, терраса;
Второй этаж: холл, мастер-спальня, две спальни, санузел, балкон.

Описание поселка

Коттеджный̆ Посёлок премиум класса «Истра-Лэнд 2» расположен в 45 км от МКАД по Новорижскому, Пятницкому или Ленинградскому шоссе, на полуострове Истринского водохранилища, окруженном лесом. Этот посёлок является частью КП «Истра-Лэнд», вблизи поселка Лопотово, с развитой̆ инфраструктурой̆.

Поселок расположен на закрытой территории со своим КПП, круглосуточной охраной и видеонаблюдением. Внутри поселка созданы все условия для комфортного проживания: асфальтные подъездные дороги, широкие улицы с тротуарами и освещением, зелёные общественные зоны. Все коммуникации центральные: водоснабжение, электричество, канализация, газ.

Богатство различной инфраструктуры впечатляет: в 10-ти минутах езды - круглосуточный продуктовый магазин; в пешей доступности расположены 3 пляжных зоны: 1 -открытая и 2 – закрытые; несколько яхт-клубов с эллингами; в пешей доступности расположен парк для пеших и вело-прогулок; в 5 минутах езды - общественные спортивные площадки, включая хоккейную коробку; в 20 минутах - физкультурно- оздоровительный̆ комплекс с круглогодичными занятиями для детей̆ и взрослых: теннисный̆ корт, волейбольная площадка и клуб водных видов спорта с арендой̆ оборудования и инструкторами; неподалёку также находится клуб «Романтик» с еженедельными спортивными мероприятиями.

Удобное расположение поселка позволяет в течение 50-ти минут на автомобиле добраться до Москвы по одному из трех шоссе: Новорижскому, Пятницкому или Ленинградскому.

Читать далее

Инфраструктура

На территории поселка:

Супермаркет
Прогулочная набережная
Яхт клуб
Парк
Детские площадки
Теннисный корт
Спортивная площадка

Лот: 76165445

45000000

615300

521500

Записаться на просмотр
Предложите свою цену
В сравнение В избранное Скачать

282 м2

12 соток

4 спальни

Без отделки

Лесной участок

Новорижское шоссе

45 км от МКАД

в ипотеку

Ваш персональный менеджер

Видецких Олег
Специалист по работе
с загородной недвижимостью

+7 (499) 110-57-98
Перезвонить мне

Похожие предложения

Видецких Олег
Специалист по работе
с загородной недвижимостью

Помогу подобрать Вам дом быстро и по привлекательной цене

Расположение поселка

Выбор поселка по шоссе

Дмитровское шоссе
Новорижское шоссе
Горьковское шоссе
Путилковское шоссе
Рогачевское шоссе
Рублево-Успенское шоссе
Всего лотов: 9 лотов
Всего лотов: 1 лот
Всего лотов: 24 лота
Всего лотов: 1 лот
Всего лотов: 20 лотов
Всего лотов: 8 лотов
Всего лотов: 19 лотов
×
Заявка отправлена