Описание

Вашему вниманию представляется стильный проект альпийского шале 581,7 кв.м на лесном участке 16,5 соток в коттеджном поселке Иславское, расположенном в 27 км от МКАД по Рублево-Успенскому шоссе.

Премиальный дом статно вписан в естественный ландшафт участка, а большое остекление выигрышно наполняет дом светом и живописными видами, расширяя границы участка.
Преимущества проекта: высокое качество строительства, продуманная по видовым параметрам посадка дома на участок, панорамные окна, высокие потолки (до 3,7 м), второй свет в столовой (около 7 м), террасы и балконы на две стороны, функциональная планировка.

Дом построен по технологии фахверк. Использовались дорогие материалы: клееный брус с увеличенным сечением 27×30, алюминиевые окна Alutech, фальцевая кровля, монолитный цоколь, железо-бетонные перекрытия. Текущее состояние - “под отделку”. Установлен временный котел. Выполнена вечерняя подсветка фасада.

Количество спален: 4

Тип дома: Клееный брус

Готовность: Под отделку

Категория земли: Земли нас. пунктов, ИЖС

Охраняемая территория: Да

Есть вопросы по объекту? Звоните

Коммуникации

Газ: Да

Канализация: центральная

Водопровод: центральный

Планировка

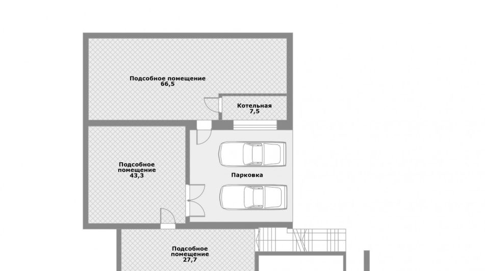
Цокольный этаж: котельная, технические помещения, парковка на 2 м/м под навесом;
Первый этаж: прихожая с гардеробной, кухня, столовая-гостиная со вторым светом, гостевая спальня, санузел, постирочная, кладовая, террасы;
Второй этаж: мастер-спальня с гардеробной и ванной комнатой, две спальни, ванная комната, кабинет, балконы.

Описание поселка

Охраняемый коттеджный посёлок Иславское расположен в 27 км от МКАД, с удобной транспортной доступностью по Рублёво‑Успенскому шоссе. Это жилой комплекс на берегу Москвы‑реки, окружённый вековыми соснами и живописными Рядом находятся развалины усадьбы Архаровых и отреставрированный храм Спаса Нерукотворного — образец московского классицизма, что придаёт посёлку особую историческую ценность.
Посёлок находится под круглосуточной охраной. Территория полностью огорожена, оборудована системой видеонаблюдения и круглосуточно патрулируется. Заезд осуществляется через строго охраняемый контрольно‑пропускной пункт.

На территории посёлка созданы комфортные условия для отдыха и досуга: обустроены прогулочные липовые аллеи для неспешных прогулок на свежем воздухе; оборудованы детские игровые городки и зоны отдыха для всей семьи; созданы видовые площадки с панорамным видом на Москву‑реку и окружающий лес; проложены пешеходные маршруты вдоль берега реки для прогулок в любое время года.
В посёлке работает собственная эксплуатационная служба, обеспечивающая бесперебойное функционирование всех систем.
Изюминка посёлка — его гармоничное сочетание природной красоты, исторического наследия и современной инфраструктуры. Благодаря расположению на берегу Москвы‑реки и окружению вековыми лесами жители могут в любой момент оказаться на природе: прогуляться вдоль реки, насладиться видами, вдохновлявшими великих художников, или посетить исторические места — усадьбу Архаровых и храм Спаса Нерукотворного.
В пешей и транспортной доступности от посёлка находится разнообразная внешняя инфраструктура: посёлок Горки‑10 (в 10 минутах езды) с развитой торговой и социальной инфраструктурой; знаменитая Николина Гора — на другой стороне Москвы‑реки; пансионат «Лесные дали» Управления делами Президента РФ с оздоровительным комплексом и пляжем — идеальное место для отдыха и восстановления сил; магазины, кафе и рестораны в ближайших населённых пунктах; спортивные и оздоровительные комплексы для активного образа жизни.
Из коттеджного посёлка Иславское легко добраться до ключевых точек региона: до МКАД время в дороге займёт около 35–45 минут на автомобиле по Рублёво‑Успенскому шоссе; до «Москва‑Сити» можно доехать примерно за 50–60 минут.

Выбирая посёлок Иславское, вы получаете сочетание природной красоты, исторического наследия, безопасности и комфорта — идеальное место для жизни, отдыха и воспитания детей в экологически чистой среде, где прошлое встречается с настоящим.

Читать далее

Инфраструктура

На территории поселка:

Детские площадки

Лот: 132441731

145000000

1906600

1617900

Записаться на просмотр
Предложите свою цену
В сравнение В избранное Скачать

581 м2

16.5 соток

4 спальни

Без отделки

Рублёво-Успенское шоссе

27 км от МКАД

в ипотеку

Ваш персональный менеджер

Сайфутдинов Тимур
Руководитель отдела
продаж Новая Рига

+7 (499) 117-03-67
Перезвонить мне

Похожие предложения

Сайфутдинов Тимур
Руководитель отдела
продаж Новая Рига

Помогу подобрать Вам дом быстро и по привлекательной цене

Расположение поселка

Выбор поселка по шоссе

Дмитровское шоссе
Новорижское шоссе
Горьковское шоссе
Путилковское шоссе
Рогачевское шоссе
Рублево-Успенское шоссе
Всего лотов: 9 лотов
Всего лотов: 1 лот
Всего лотов: 24 лота
Всего лотов: 1 лот
Всего лотов: 20 лотов
Всего лотов: 8 лотов
Всего лотов: 19 лотов
×
Заявка отправлена