Для корректной работы сайта выключите VPN

Описание

Вашему внимаю предлагается просторный таунхаус на второй линии от озера в коттеджном поселке Довиль в 10 км от МКАД по Можайскому шоссе.
В доме выполнена частичная отделка согласно дизайн-проекту: возведены перегородки, проведена электрика, разведены отопление, теплые полы, водопровод и канализация. Смонтирована слаботочная система, включая ультрасовременную и функциональную систему упарвления "Умный Дом". Установлена система приточно-вытяжной вентиляции и кондиционирования. Все работы выполнены на высочайшем уровне с использованием лучших отделочных материалов и инженерных систем. Ремонтные работы не приостанавливаются и стоимость будет расти по мере выполнения отделочных работ.
Дом очень удачно расположен, из большинства комнат окна выходят в сторону живописного озера.

Количество спален: 6

Тип балкона: 3 балкона

Тип дома: кирпичный

Готовность: Под отделку

Категория земли: Земли нас. пунктов, ИЖС

Вид на воду: Да

Под ключ: Да

Есть вопросы по объекту? Звоните

Коммуникации

Газ: Да

Канализация: центральная

Водопровод: центральный

Электричество, кВт: 15

Планировка

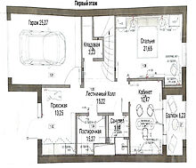
Первый этаж: холл, гостевой санузел, кабинет с балконом, кладовая, гараж на 1 автомобиль
Второй этаж: лестничный холл, просторная гостиная с выходом на балкон, санузел, кухня-столовая с террасой
Третий этаж: лестничный холл, мастер-спальня с собственной гардеробной, санузлом и выходом на балкон, детская спальня с собственным санузлом и балконом
Четвертый этаж: лестничный холл, санузел, игровая-досуговая, спальня с собственным санузлом и гардеробной

Описание поселка

Коттеджей поселок "Довиль" расположенный всего в 10 км от МКАД по Минскому шоссе, обеспечивает быстрый доступ к Москве и позволяет наслаждаться всеми преимуществами загородной жизни, не теряя связи с городом.
Это не просто поселок, а фешенебельный курортный уголок, воплощающий лучшие традиции французского шарма. Здесь каждый элемент, от мощеных дорог до тематических скульптур, создан для вашего комфорта и удовольствия. Территория охраняется и патрулируется 24 часа в сутки. На въезде работает КПП, гости проверяются перед посещением. Проникновение посторонних лиц исключено. Функционирует собственная эксплуатационная служба. Все системы проверяются на техническое состояние, проводится регулярный текущий ремонт.
В поселке работают: несколько детских площадок, игровой центр для детей всех возрастов, спортивные площадки для детей и взрослых, магазины продуктов и промтоваров, бутики, оздоровительный центр, салон SPA-процедур, бассейн.

На берегах озера обустроена прогулочная зона с фонтанами, скульптурами, скамейками, беседками и цветниками. На озере есть эллинг и причалы, можно поплавать на лодках. Здесь же работает шикарный ресторан-дворец с обеденными и VIP-залом, зимним садом и летними террасами.
В нескольких минутах ходьбы расположены школы, детские сады, торговые центры, спортивные объекты, частные и государственные клиники. Дома в поселке "Довиль" отличаются утонченным дизайном, продуманной планировкой и высоким качеством строительства. Здесь каждый сможет найти дом, соответствующий его представлениям о роскоши и уюте.
Удобное расположение позволяет быстро добраться до центра Москвы как на личном автомобиле, так и на общественном

Читать далее

Инфраструктура

На территории поселка:

Лот: 93658941

125000000

1669400

1424100

Записаться на просмотр
Предложите свою цену
В сравнение В избранное Скачать

395 м2

2 сотки

6 спален

Под ключ

Можайское шоссе

10 км от МКАД

в ипотеку

Ваш персональный менеджер

Васильева Анжелика
Специалист по работе
с загородной недвижимостью

+7 (499) 110-60-98
Перезвонить мне

Похожие предложения

Васильева Анжелика
Специалист по работе
с загородной недвижимостью

Помогу подобрать Вам таунхаус быстро и по привлекательной цене

Расположение поселка

Выбор поселка по шоссе

Дмитровское шоссе
Новорижское шоссе
Горьковское шоссе
Путилковское шоссе
Рогачевское шоссе
Рублево-Успенское шоссе
Всего лотов: 9 лотов
Всего лотов: 1 лот
Всего лотов: 24 лота
Всего лотов: 1 лот
Всего лотов: 20 лотов
Всего лотов: 8 лотов
Всего лотов: 19 лотов
×
Заявка отправлена