Описание

Предлагается одноэтажный дом «под ключ» из клеёного бруса на береговой линии реки Учи в коттеджном поселке «Дачный-2». Посёлок расположен всего в 20 км от МКАД по Ярославскому шоссе и в 23 км по Щелковскому шоссе, что обеспечивает отличную транспортную доступность столицы.

Дом, построенный в 2021 году, возведён на монолитном фундаменте и оснащён высокотехнологичными инженерными системами. Здесь установлены приточно-вытяжная вентиляция с функциями увлажнения и очистки воздуха, система фильтрации воды, надежный бойлер Buderus, а также системы видеонаблюдения и контроля доступа. Кровля выполнена из надёжной фальцевой стали.
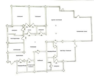
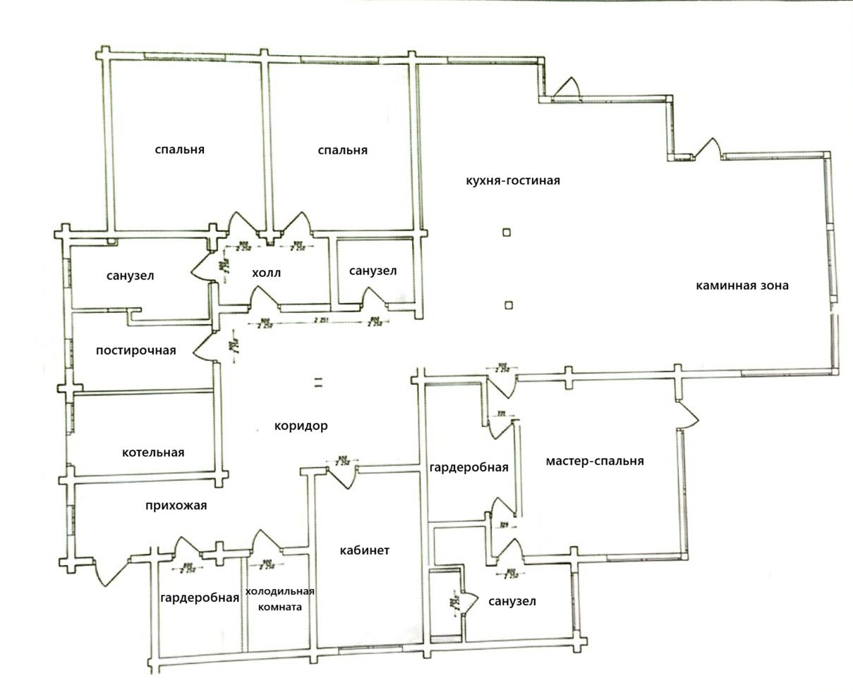
Главное преимущество дома — продуманная логистика. Все технические и вспомогательные помещения сгруппированы во входной зоне. Мастер-спальня и детские комнаты расположены по диагонали друг от друга: это обеспечивает быстрый доступ к ним, но при этом сохраняет приватность для всех членов семьи. Центром притяжения дома является кухня-гостиная с каминной зоной и прямым выходом на террасу. Настоящей «изюминкой» и стратегическим активом для большой семьи, охотников или рыбаков является наличие полноценной холодильной комнаты. Она позволяет безопасно хранить заготовки и замороженные продукты, не пропуская запахи в жилое пространство.
Дом продаётся полностью меблированным и укомплектованным. Установлена немецкая бытовая техника премиум-класса (Miele, LIEBHERR).
Отмостка вокруг дома и парковочная зона под навесом вымощены гранитной брусчаткой на бетонной «подушке» — это практичное и эстетичное решение.

Участок площадью 39 соток имеет идеально ровный рельеф и расположен в тупиковой части посёлка, что гарантирует абсолютную приватность и уединение. На территории выполнен дренаж. Дополнительным преимуществом является теплый гараж на два автомобиля (здание без внутренней отделки).

Количество спален: 4

Тип дома: Клееный брус

Готовность: Готов полностью

Категория земли: ДНП

Вид на воду: Да

Под ключ: Да

Охраняемая территория: Да

Наличие мебели: Да

Есть вопросы по объекту? Звоните

Коммуникации

Газ: Да

Канализация: Септик

Водопровод: скважина

Электричество, кВт: 15

Планировка

Первый этаж – прихожая, гардеробная, холодильная комната, кабинет, мастер-спальня, кухня-гостиная, гостевой санузел, детский блок, постирочная, котельная.

Описание поселка

Охраняемый коттеджный поселок «Дачный-2» расположен в Московской области, в городском округе Щёлково, в 20 км от МКАД по Ярославскому шоссе.
Коттеджный поселок «Дачный-2» построен в излучине реки Клязьмы, естественным образом сформирован в виде полуострова, огибаемого с северной стороны рекой Учей, с южной и восточной сторон – рекой Клязьмой. Природный ландшафт обеспечивает жителям прекрасные виды и разнообразный досуг. Летом жители поселка сплавляются по рекам на сабах, охотятся с подводным оружием и рыбачат, дети купаются – прекрасное место для размеренного отдыха и наслаждения природой.
Поселок рассчитан на 173 домовладения. Территория коттеджного поселка «Дачный-2» благоустроена: проложены асфальтированные дороги шириной 3 м, организовано уличное освещение, есть пруд. Поселок круглосуточно охраняется, въезд осуществляется через КПП, вдоль всех улиц установлено видеонаблюдение, доступное всем жителям поселка. Во въездной группе есть спортивная площадка.
Коттеджный поселок «Дачный-2» расположен в 8 км от центра города Королев и в 5 км от центра города Щелково, обеспечивая жителей всей необходимой городской инфраструктурой. Поселок окружен стародачными местами, пропитанными духом истории. Рядом находятся старинная церковь Рождества Пресвятой Богородицы (возведена ориентировочно в XVIII веке), конный клуб, отель «Новые Горки», школа водных видов спорта «Гагарин», лыжная трасса КМК, продуктовые магазины и торговые центры. В 10-минутной транспортной доступности расположены детские сады и общеобразовательные школы.
Удобная локация поселка и скоростное Ярославское шоссе позволит быстро и комфортно добраться до МКАД на личном автомобиле за 30 минут. Новая платная автомагистраль «Мытищинская хорда» соединяет Ярославское и Дмитровское шоссе, делая максимально доступным аэропорт Шереметьево. Время в пути на автомобиле от коттеджного поселка «Дачный-2» до аэропорта составляет менее 1 часа.

Читать далее

Инфраструктура

На территории поселка:

Пляж
Рыбалка
Детские площадки
Спортивная площадка

Лот: 130045429

140000000

1840100

1565800

Записаться на просмотр
Предложите свою цену
В сравнение В избранное Скачать

283 м2

39 соток

4 спальни

Под ключ

1 линия от воды

Ярославское шоссе

20 км от МКАД

в ипотеку

Ваш персональный менеджер

Юсова Алеся
Специалист по работе
с загородной недвижимостью

7 (499) 226-25-71
Перезвонить мне

Похожие предложения

Юсова Алеся
Специалист по работе
с загородной недвижимостью

Помогу подобрать Вам дом быстро и по привлекательной цене

Расположение поселка

Выбор поселка по шоссе

Дмитровское шоссе
Новорижское шоссе
Горьковское шоссе
Путилковское шоссе
Рогачевское шоссе
Рублево-Успенское шоссе
Всего лотов: 9 лотов
Всего лотов: 1 лот
Всего лотов: 24 лота
Всего лотов: 1 лот
Всего лотов: 20 лотов
Всего лотов: 8 лотов
Всего лотов: 19 лотов
×
Заявка отправлена