Для корректной работы сайта выключите VPN

Описание

Вашему вниманию представлен дом 300 кв.м на участке 5.3 сотки в КП "Архангельское", расположенный в 9 км от МКАД по Новорижскому шоссе.
Построен из блоков, внешняя отделка - кирпич и натуральный камень (белый песчаник), фундамент - плита, крыша - мягкая кровля SHINGLAS.
Выполнена внутренняя отделка "White Box" - выровнены и отштукатурены стены под финишное покрытие. Заведены и разведены теплые полы согласно проекту. Установлены алюминевые окна Kaleva. Сделаны выводы под кондиционирование. Выведены мокрые точки и установлены инсталяции.
В доме три спальни и кабинет, который можно также сделать спальней. На первом этаже расположен бассейн 3*4 метра с дровяной парной.
Организована котельная, установлено оборудование.

Все коммуникации центральные: газоснабжение, электричество, канализация и водопровод. По периметру фасада установлено освещение. Въездные ворота в гараж и на участок оборудованы электроприводом.
Участок полностью огорожен, выровнен, по периметру дома сделан дренаж.

Количество спален: 3

Тип дома: Блоки

Готовность: Под отделку

Категория земли: Земли нас. пунктов, ИЖС

Бассейн: Да

Сауна: Да

Охраняемая территория: Да

Есть вопросы по объекту? Звоните

Коммуникации

Газ: Да

Канализация: центральная

Водопровод: центральный

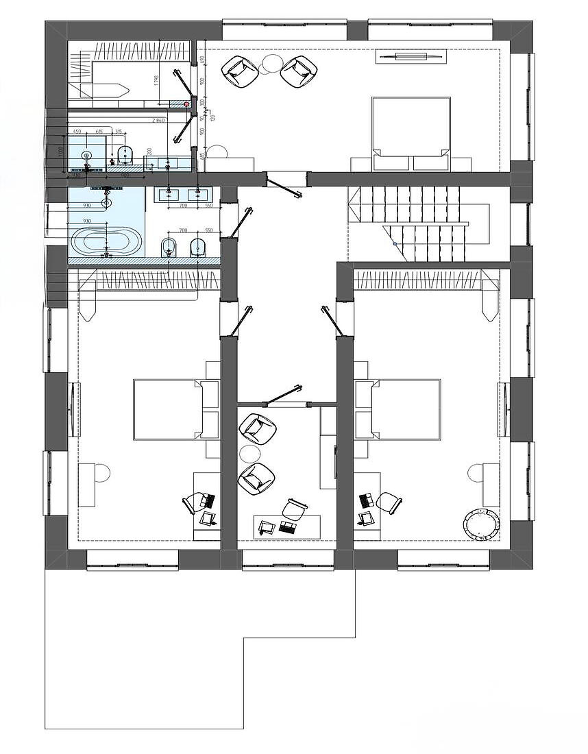
Планировка

Первый этаж: прихожая с выходом в гараж, санузел, гардеробная, гостиная, кухня с кладовой, постирочная, техническое помещение, спа зона с бассейном, дровяная парная, душевая и санузел
Второй этаж: мастер-спальня со своим санузлом и гардеробной, санузел, спальня с выходом на террасу, спальня, кабинет

Описание поселка

Коттеджный поселок «Архангельское» расположен в 9 км от МКАД по Новорижскому шоссе. Это уникальное место для тех, кто хочет совместить современный комфорт с атмосферой старинной дворянской усадьбы. Поселок расположен вплотную к знаменитому музею-усадьбе «Архангельское», что задает тон всей его архитектуре и стилю жизни.
На территории расположено 70 частных усадеб, построенных в строгом классическом стиле. Основатели поселка воссоздали здесь атмосферу времен князя Юсупова — эпоху, когда Архангельское было центром светской жизни Москвы, а в гости к хозяевам заезжали императоры, великие поэты и художники.
Улицам коттеджного поселка Архангельское присвоены имена великих русских художников, работавших в Усадьбе «Архангельское» - Александра Бенуа, Константина Коровина, Константина Маковского, Валентина Серова.
Поселок идеально подходит для спокойной семейной жизни. Закрытая территория и обилие зелени создают ощущение загородного поместья, где ничто не нарушает ваш покой, но при этом все блага цивилизации остаются под рукой. Поселок полностью обеспечен центральными коммуникациями — газ, электричество, водоснабжение и канализация. Установлено декоративное уличное освещение. Территория огорожена, работает круглосуточная профессиональная охрана, действует строгий пропускной режим через КПП. Для активного отдыха предусмотрены современные детские игровые площадки и спортивные зоны.

КП «Архангельское» расположен в одном из самых развитых районов Подмосковья. Жителям доступна как локальная инфраструктура одноименного поселка, так и элитные сервисы Новорижского и Ильинского шоссе.
Культура и отдых: музей-усадьба «Архангельское», музей техники Вадима Задорожного, рядом протекает Москва-река с оборудованными пляжами и местами для рыбалки, а на противоположном берегу находится заповедник «Лохин остров».
Гастрономия и шоппинг: в непосредственной близости работают известные заведения, такие как «Амбар №13», «Авиатор», а также рестораны на Новой Риге («Fish Point», «Chester Ferry») и Рублевке («Царская охота») За 10–15 минут можно доехать до крупных комплексов: «Рига Молл», «Глобус», «Леруа Мерлен», а также люксовых центров «Barvikha Luxury Village» и «Dream House». Неподалеку расположен «Петровский продуктовый базар» с фермерскими продуктами.
Образование и спорт: школы и сады: район славится элитными учебными заведениями, среди которых школа «Президент», лицей «Ковчег-XXI» и многочисленные частные детские сады. Доступны фитнес-клубы (например, «IceBox»), теннисные корты («Tennis Land»), конный театр-студия «Чардаш» и базы для сап-серфинга на реке.

Поселок расположен в престижном районе Подмосковья с отличной транспортной доступностью:
На автомобиле: Самый быстрый путь — по Новорижскому шоссе (трасса М-9). Также можно доехать по Ильинскому или Волоколамскому шоссе. Путь от МКАД займет всего 10–15 минут (около 9 км).
На общественном транспорте:
- От станции метро «Тушинская» на маршрутном такси №151 до остановки «Усадьба Архангельское»
- От станции метро «Строгино» или «Павшино» (МЦД-2) курсируют регулярные автобусы и маршрутки.

Читать далее

Инфраструктура

На территории поселка:

Лот: 129831830

95000000

1299200

1115300

Записаться на просмотр
Предложите свою цену
В сравнение В избранное Скачать

300 м2

5.3 соток

3 спальни

Без отделки

Новорижское шоссе

9 км от МКАД

в ипотеку

Ваш персональный менеджер

Попова Нина
Эксперт по загородной недвижимости

+7 (499) 288-14-79
Перезвонить мне

Похожие предложения

Попова Нина
Эксперт по загородной недвижимости

Помогу подобрать Вам дом быстро и по привлекательной цене

Расположение поселка

Выбор поселка по шоссе

Дмитровское шоссе
Новорижское шоссе
Горьковское шоссе
Путилковское шоссе
Рогачевское шоссе
Рублево-Успенское шоссе
Всего лотов: 9 лотов
Всего лотов: 1 лот
Всего лотов: 24 лота
Всего лотов: 1 лот
Всего лотов: 20 лотов
Всего лотов: 8 лотов
Всего лотов: 19 лотов
×
Заявка отправлена