Для корректной работы сайта выключите VPN

Описание

Вашему вниманию представляется уникальный четырехуровневый дом «под отделку» в КП Адмирал, расположенный на самом берегу Икшинского водохранилища в 25 км от МКАД по Дмитровскому шоссе.

Дом, общей площадью 542,5 кв.м + мансарда 160 кв.м, построен по индивидуальному проекту в 2016 году.

В процессе разработки проекта, были учтены особенности ландшафта: расположение сторон света и особенности земельного участка. Благодаря правильному положению дома, из большинства окон открываются живописные виды на поселок.

В доме идеально организовано внутреннее пространство, для того, чтобы работать и отдыхать в полном комфорте. Каждая спальня оснащена гардеробной и собственной ванной, на цокольном этаже обустроена просторная спа-зона с выходом на патио, изолирована комната для персонала с отдельным входом. Для удобного перемещения по дому, спланировано место для размещения лифта. Зонирование выполнено с акцентом на приватность, уединение и рациональность.

При строительстве дома, были использованы качественные современные материалы: каркас дома - монолит, стены - кирпич, кровля - натуральная черепица Braas, фасад готов под финишную отделку.

В доме выполнена разводка инженерных коммуникаций, запущена котельная ( газовое оборудование фирмы Buderus), дом в тёплом контуре; в санузлах уложен теплый пол, закуплена плитка.

В дом заведены все центральные коммуникации: магистральный газ, подключено электричество 10 кВт, водопровод и канализация.

Дом расположен на красивом рельефном участке, площадью 14,78 соток.

Участок имеет природный уклон - это даст возможность создать невероятно красивый и выразительный ландшафтный дизайн, который придаст дому особую изюминку.

У вас также есть прекрасная возможность приобрести данный объект в обмен на коммерческую или городскую недвижимость.

Количество спален: 6

Тип балкона: балкон

Площадь кухни: 40

Санузел: 5

Тип дома: Монолитный

Готовность: Под отделку

Категория земли: Земли нас. пунктов, ИЖС

Сауна: Да

Лифт в доме: Да

Охраняемая территория: Да

Есть вопросы по объекту? Звоните

Коммуникации

Газ: Да

Канализация: центральная

Водопровод: центральный

Электричество, кВт: 10

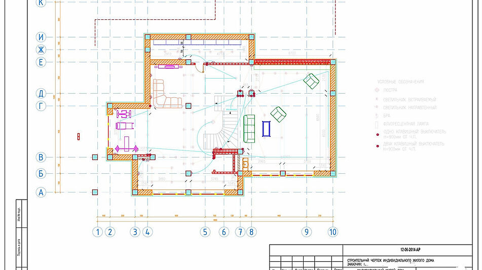
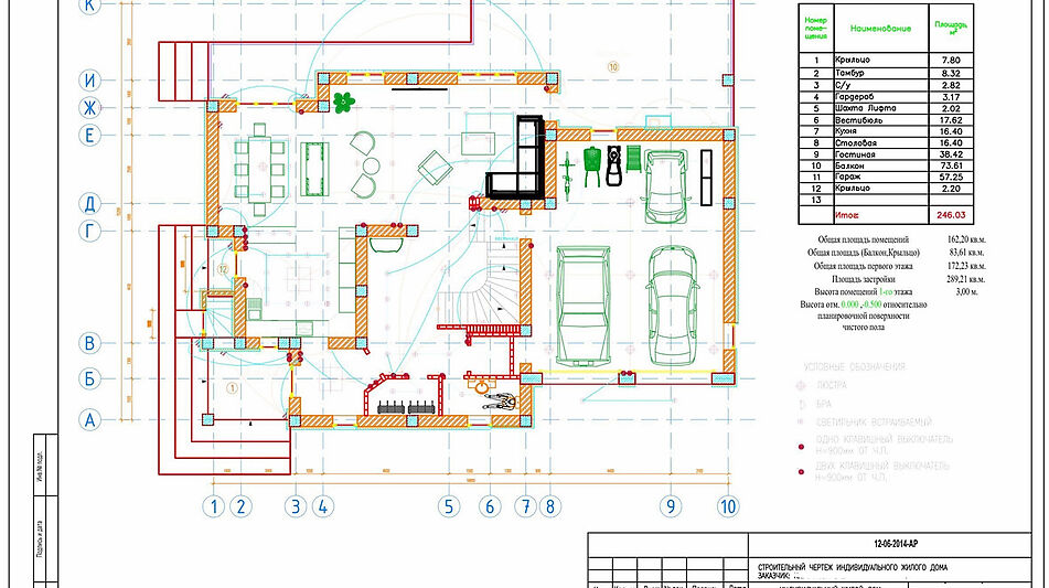
Планировка

Цокольный этаж: котельная, холодильное помещение, хозяйственный блок, лифт, санузел, сауна с выходом на патио, каминная с выходом на территорию участка, мастерская, блок для персонала.

Первый этаж: прихожая, гардеробная, санузел, просторная кухня-столовая-гостиная с выходом на террасу, лифт, гараж на 2 автомобиля.

Второй этаж: хозяйская спальня с гардеробной, ванной комнатой и выходом на балкон, кабинет, спальня с гардеробной и санузлом, детская спальня с собственной гардеробной, ванной комнатой и выходом на балкон, холл, лифт.

Мансардный этаж: помещение свободного назначения (домашний кинотеатр, зимний сад), лифт.

Описание поселка

Коттеджный поселок Адмирал расположен всего в 25 км от Москвы по Дмитровскому шоссе на самом берегу Икшинского водохранилища. Расположенный прямо на берегу поселок Адмирал имеет свою прогулочную набережную с пляжем и яхт-клубом. Поселок расположен на трех холмах, за счет чего образуется потрясающий естественный рельеф, выгодно отличающий поселок Адмирал от других поселков. Вокруг поселка находится прекрасный лес, создающий удивительную атмосферу гармонии с природой и образующий единую зону отдыха. Поселок полностью благоустроен. В нем имеются все центральные коммуникации (газ, электричество, водопровод, канализация), забор по периметру территории, многоуровневая система безопасности, детские и спортивные площадки. Особое место в инфраструктуре поселка заняли водные виды спорта и отдыха. Основные преимущества коттеджного поселка Адмирал: расположение (расстояние от Москвы – 25км), собственная набережная и водная инфраструктура, земля без подряда, свобода выбора дома, сочетание цены и окружения (собственный участок у воды за приемлемые деньги в охраняемом благоустроенном поселке).

Читать далее

Инфраструктура

На территории поселка:

Прогулочная набережная
Рыбалка
Детские площадки
Спортивная площадка

Лот: 92709167

Цена по запросу

Записаться на просмотр
Предложите свою цену
В сравнение В избранное Скачать

542 м2

14.8 соток

6 спален

Без отделки

Дмитровское шоссе

25 км от МКАД

в ипотеку

Ваш персональный менеджер

Руденко Мария
Специалист по работе
с загородной недвижимостью

+7 (499) 288-14-35
Перезвонить мне

Похожие предложения

Руденко Мария
Специалист по работе
с загородной недвижимостью

Помогу подобрать Вам дом быстро и по привлекательной цене

Расположение поселка

Выбор поселка по шоссе

Дмитровское шоссе
Новорижское шоссе
Горьковское шоссе
Путилковское шоссе
Рогачевское шоссе
Рублево-Успенское шоссе
Всего лотов: 9 лотов
Всего лотов: 1 лот
Всего лотов: 24 лота
Всего лотов: 1 лот
Всего лотов: 20 лотов
Всего лотов: 8 лотов
Всего лотов: 19 лотов
×
Заявка отправлена