Описание

Вашему вниманию предлагается готовый коттедж "Комфорт" на территории жилого комплекса «Мечта», который находится в квартале «Лесная мелодия».

Каждый дом находящийся в квартале «Лесная мелодия» класса комфорт-плюс имеет свою окраску и неповторимый дизайн. Квартал находится в обособленном и приватном месте. Он самый близкий среди всех к природе: лесу с прогулочными топами и озеру.

В доме сделан современный ремонт с интересными дизайнерскими решениями. Продуманная планировка дома включает в себя большую кухню-гостиную со вторым светом и выходом на просторную террасу, полноценную спальню на первом этаже, а также три просторных спальни на втором этаже, одна из которых со своим санузлом и гардеробом. Такой дом прекрасно подойдет для комфортного проживания большой семьи.

Площадь земельного участка 8 соток. Прекрасное расположение участка - рядом с лесом. В пешей доступности находится выход в лес и большая прогулочная аллея и выход в лес.

Количество спален: 4

Тип балкона: терраса

Санузел: 2

Тип дома: Пенобетон

Готовность: Готов полностью

Высота потолков: 3

Категория земли: Земли нас. пунктов, ИЖС

Охраняемая территория: Да

Есть вопросы по объекту? Звоните

Коммуникации

Газ: Да

Канализация: центральная

Водопровод: центральный

Электричество, кВт: 15

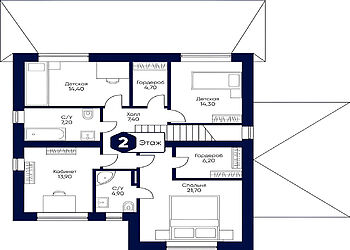
Планировка

Первый этаж: просторная кухня-гостиная с выходом на открытую террасу, спальня, ванная комната, туалетная комната.

Второй этаж: три комнаты, ванная комната, туалетная комната.

Описание поселка

Жилой комплекс «Мечта» предлагает своим жителям уникальные условия для комфортной жизни с выбором типа недвижимости: дома, таунхаусы или квартиры.

Комплекс расположенный в 23 км от МКАД по Дмитровскому и Рогачевскому шоссе. Добраться возможно за 40 минут от Москвы на собственном или общественном транспорте.

В каждом из четырех кварталов созданы уютные дворы с ландшафтным дизайном, детскими и спортивными площадками, которые способствуют активному времяпрепровождению с семьей и друзьями. Прилегающие к комплексам парковые зоны обеспечивают возможность для прогулок на свежем воздухе и занятий спортом.

Изобилие социальных объектов делает «Мечту» идеальным местом для семей с детьми. Современные школы и детские сады оснащены всем необходимым для качественного обучения и воспитания. Магазины, кафе и сервисные учреждения на территории комплекса позволяют жителям не тратиться на длительные поездки за покупками и услугами.

Застройщик комплекса внимательно следит за качеством строительства и соблюдением всех сроков. Это гарантирует, что жильцы получат ключи к своим новым домам в назначенное время. Забота о комфорте и безопасности жителей – приоритетная задача, что делает жилой комплекс «Мечта» привлекательным местом для жизни.

Читать далее

Инфраструктура

На территории поселка:

Детский сад
Школа
Супермаркет
Фитнесцентр
Горные лыжи
Рыбалка
Детские площадки
Футбольное поле
Спортивная площадка

Лот: 78053869

53619000

712700

604300

Записаться на просмотр
Предложите свою цену
В сравнение В избранное Скачать

245 м2

8.6 соток

4 спальни

Под ключ

Дмитровское шоссе

23 км от МКАД

в ипотеку

Ваш персональный менеджер

Куранова Наталья
Специалист по работе
с загородной недвижимостью

+7 (499) 226-29-13
Перезвонить мне

Похожие предложения

Куранова Наталья
Специалист по работе
с загородной недвижимостью

Помогу подобрать Вам дом быстро и по привлекательной цене

Расположение поселка

Выбор поселка по шоссе

Дмитровское шоссе
Новорижское шоссе
Горьковское шоссе
Путилковское шоссе
Рогачевское шоссе
Рублево-Успенское шоссе
Всего лотов: 9 лотов
Всего лотов: 1 лот
Всего лотов: 24 лота
Всего лотов: 1 лот
Всего лотов: 20 лотов
Всего лотов: 8 лотов
Всего лотов: 19 лотов
×
Заявка отправлена