Для корректной работы сайта выключите VPN

Описание

Вашему вниманию представляется Таунхаус площадью 209,2 м2 на земельном участке размером 6,3 сотки в престижном поселке Vita Verde (Вита Верде) расположенный в 17 км от МКАД по Дмитровскому шоссе.

Таунхаус представляет собой двухэтажный жилой дом общей площадью 209,2 м2, с тремя самостоятельным выходами на участок; с навесом для автомобилей, с террасой под крышей, и укомплектованный мебелью и техникой.

Дом построен в 2014 году:
Технология строительства: ленточный фундамент с железобетонными перекрытиями, стены из кирпича (Porotherm), утеплителя (Rockwool), сайдинга 2 видов. Вайловая крыша с мягкой черепицей (Tegola). Цоколь, крыльцо и лестница в доме отлиты в бетоне. Окна - секционные, с двухкамерными стеклопакетами.

Ремонт и интерьер:
В 2018 году был выполнен дизайнерский ремонт. Продуманы эргономичные сценарии освещения и функциональная удобная планировка;
Панорамные секционные окна в пол в гостиной;
Дом укомплектован премиальной техникой и меблирован;
Инженерия премиальных брендов: 2 котла - основной, резервный (VAILLANT, Buderus); Бойлеры (Drazice) и другое;
Теплые полы: на первом этаже и на втором этаже в санузле;
Финская Сауна (Harvia).

Коммуникации:
Электричество: 15 кВт (центральное); газ: магистральный; Канализация (центральная), Водоснабжение (центральная).

Участок и локация:
Это прямоугольный участок в 6,3 сотки немного под наклоном. Находится в удалении от проезжей дороги. Соседи только с 2 сторон. На участке посажены садовоогородные растения (груша, слива , яблоня, вишня, смородина, крыжовник и др.).

Основные преимущества предложения:
1. Уникальный участок: приватность и красота
Абсолютная тишина и уединение: Участок расположен в глубине территории, вдали от дороги. Всего 2 соседа — минимум постороннего шума и максимум приватности.
Практичная экология: Естественный дренаж (уклон) защищает дом и растения от подтоплений после дождя и таяния снега, продлевая срок службы фундамента.
2. Современный дом «под ключ»:
Надежный застройщик и технология строительства: Дом построен группой компаний ФСК «Лидер», что гарантирует качество.
Простор и комфорт: Большая площадь 209,2 м² с функциональной планировкой идеально подходит для постоянного проживания семьи и приема гостей.
Удачное расположение на участке: Дом оптимально ориентирован, чтобы использовать все преимущества территории и солнечного света.

3. Выгодное местоположение и транспортная доступность: Поселок/район в районе Мытищи с развитой инфраструктурой, удобным заездом/выездом на Дмитровское шоссе в любом направлении.

4. «Чистые» документы и быстрая сделка: В собственности с 2014 года, один взрослый собственник, на регистрационном учете никто не состоит.

Это предложение сочетает в себе преимущества частного уютного жилья с практическими выгодами современной застройки в развитом коттеджном поселке. Оптимальный выбор для семьи, ценящей комфорт, тишину и безопасность.

Количество спален: 4

Тип балкона: лоджия

Санузел: 3

Тип дома: кирпичный

Готовность: Готов полностью

Категория земли: ДНП

Сауна: Да

Охраняемая территория: Да

Наличие мебели: Да

Есть вопросы по объекту? Звоните

Коммуникации

Газ: Да

Канализация: центральная

Водопровод: центральный

Электричество, кВт: 15

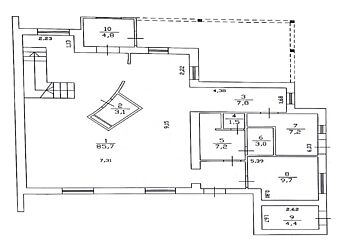
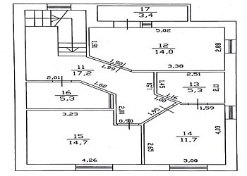
Планировка

Первый этаж: прихожая, санузел, гостиная, кухня-столовая с выходом на крытую террасу, котельная, санузел с сауной, гостевая спальня;
Второй этаж: спальня с балконом, спальня с гардеробной, спальня, санузел с ванной комнатой.

Описание поселка

Коттеджный поселок Вита Верде расположен всего в 17км от Москвы по Дмитровскому шоссе, в пяти минутах езды от Пяловского водохранилища. Поселок полностью благоустроен и заселен. В нем имеются все центральные коммуникации (газ, электричество, водопровод, канализация), забор по периметру территории, многоуровневая система безопасности, детские и спортивные площадки.
В непосредственной близости расположены санатории, спортивные комплексы, яхт-клуб, конно-спортивная школа, горнолыжные курорты Волен и Сорочаны. При въезде на территорию поселка установлен КПП с круглосуточной охраной.

Читать далее

Инфраструктура

На территории поселка:

Детский сад
Школа
Супермаркет
Медцентр
Автомойка
Детские площадки
Футбольное поле
Спортивная площадка

Лот: 129019617

35350000

468100

400500

Записаться на просмотр
Предложите свою цену
В сравнение В избранное Скачать

209 м2

6.3 соток

4 спальни

Под ключ

Дмитровское шоссе

17 км от МКАД

в ипотеку

Ваш персональный менеджер

Сагадиев Роман
Специалист по работе
с загородной недвижимостью

7 (499) 110-62-94
Перезвонить мне

Похожие предложения

Сагадиев Роман
Специалист по работе
с загородной недвижимостью

Помогу подобрать Вам таунхаус быстро и по привлекательной цене

Расположение поселка

Выбор поселка по шоссе

Дмитровское шоссе
Новорижское шоссе
Горьковское шоссе
Путилковское шоссе
Рогачевское шоссе
Рублево-Успенское шоссе
Всего лотов: 9 лотов
Всего лотов: 1 лот
Всего лотов: 24 лота
Всего лотов: 1 лот
Всего лотов: 20 лотов
Всего лотов: 8 лотов
Всего лотов: 19 лотов
×
Заявка отправлена