Описание

Представляем вашему вниманию дом №39 «под чистовую» отделку площадью 474 кв. м в охраняемом коттеджном посёлке «Вельмон» (Velmon), расположенном в 14 км от МКАД по Новорижскому шоссе. Современный дом в стиле хай‑тек — воплощение технологичного комфорта и безупречного стиля. Из окон мастер-спальни, расположенной на втором этаже дома открывается неповторимый вид на пойму реки Истра.

Фасады облицованы дагестанским камнем с использованием водостойкого и морозостойкого, экологически безопасного и обладающего повышенной тиксотропностью клея. Остекление выполнено системами Alutech с фурнитурой Roto (Германия). В доме есть возможность установки лифта и камина. Предусмотрен гараж на два автомобиля.

Все коммуникации – центральные: электроснабжение, газоснабжение, холодное водоснабжение, канализация, в том числе и ливневая; что гарантирует бесперебойное и комфортное проживание.
Благоустроенный участок площадью 5,4 сотки предусматривает высадку крупномеров, газон и систему автополива — для вашего комфорта и без лишних хлопот.

Количество спален: 5

Тип дома: кирпичный

Готовность: Под отделку

Категория земли: Земли нас. пунктов, ИЖС

Сауна: Да

Охраняемая территория: Да

Есть вопросы по объекту? Звоните

Коммуникации

Газ: Да

Канализация: центральная

Водопровод: центральный

Планировка

Цокольный этаж: зона отдыха, сауна, постирочная, раздевалка, санузел, винный шкаф, помывочная, спальня с санузлом, спортзал, зона досуга, хозяйственное помещение;
Первый этаж: гараж, котельная, холл, санузел, кабинет, кухня-столовая-гостиная с выходом на террасу;
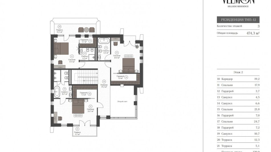
Второй этаж: две спальни с гардеробной, санузлом и выходом на террасу, спальня с гардеробной и санузлом.

Описание поселка

Охраняемый коттеджный посёлок Вельмон (Velmon) расположен в 14 км от МКАД по Новорижскому шоссе. Это жилой комплекс занимает территорию площадью 5 га холмистой местности, окружённый развитой инфраструктурой.
Посёлок находится под круглосуточной охраной. Территория полностью огорожена, оборудована системой видеонаблюдения и патрулируется роботами‑патрулями, на въезде организован контрольно‑пропускной пункт.
В посёлке обустроена премиальная инфраструктура для отдыха и досуга: жителям доступен современный СПА‑комплекс с бассейном, сауной, хаммамом, зонами релакса, переговорными, спортзалом и лаунж‑зоной. Благоустроенные прогулочные зоны открывают панорамные виды на окружающий ландшафт — каждый маршрут продуман для максимального комфорта и единения с природой. Здесь созданы все условия для комфортной загородной жизни премиум‑класса с курортным уровнем сервиса.

В посёлке работает собственная управляющая компания с квалифицированным штатом персонала, обеспечивающая бесперебойное функционирование всех систем и решение любых вопросов жителей. Инженерная инфраструктура построена с применением передовых технологий:
- автономные инженерные системы;
- резервуары для сбора дождевой воды (экологичность и эффективность);
- робот‑курьер для удобства доставки;
- централизованные коммуникации: электроснабжение, газоснабжение, холодное водоснабжение, канализация.

Изюминка посёлка — в его интеграции с уникальной природной средой. Рядом с территорией расположен сакральный природный объект — камень, ориентированный по линии восток–запад. Его надземная часть достигает около трёх метров, а подземная, по оценкам, в несколько раз больше. Местные жители связывают с ним множество легенд и считают местом, хранящим природную энергию и историю территории. Благодаря расположению жители могут в любой момент ощутить связь с этим особенным местом, не покидая пределов жилого комплекса. В непосредственной близости от посёлка находится развитая внешняя инфраструктура ТРК «Павлово подворье», дополняющая внутренний сервис курортного уровня.
На территории расположены 48 резиденций площадью от 450 до 790 кв. м на участках от 6,5 до 14 соток. Все дома построены и готовы к заселению — будущие владельцы избавлены от шума и неудобств, связанных со строительными работами. Резиденции выполнены в минималистичном стиле с панорамным остеклением и эксплуатируемыми кровлями, которые гармонично вписаны в ландшафт. Дома продаются без внутренней отделки, что позволяет реализовать индивидуальные дизайнерские решения.

Из коттеджного посёлка Velmon (Вельмон) легко добраться до ключевых точек столицы: время в пути на автомобиле до МКАД займёт менее 20 минут по Новорижскому шоссе; а до «Москва‑Сити» - менее 35 минут.
Выбирая коттеджный поселок «Вельмон» (Velmon), вы получаете не просто жильё, а образ жизни премиум‑класса: сочетание современной архитектуры, технологичного комфорта, курортной инфраструктуры и особой энергетики места — всё в пределах собственного частного пространства.

Читать далее

Инфраструктура

На территории поселка:

Фитнесцентр
Детские площадки
Спортивная площадка

Лот: 132213522

205000000

2694400

2292800

Записаться на просмотр
Предложите свою цену
В сравнение В избранное Скачать

474 м2

5.4 соток

5 спален

Без отделки

Новорижское шоссе

15 км от МКАД

в ипотеку

Ваш персональный менеджер

Новоселов Владимир
Специалист по работе
с загородной недвижимостью

+7 (499) 110-42-67
Перезвонить мне

Похожие предложения

Новоселов Владимир
Специалист по работе
с загородной недвижимостью

Помогу подобрать Вам дом быстро и по привлекательной цене

Расположение поселка

Выбор поселка по шоссе

Дмитровское шоссе
Новорижское шоссе
Горьковское шоссе
Путилковское шоссе
Рогачевское шоссе
Рублево-Успенское шоссе
Всего лотов: 9 лотов
Всего лотов: 1 лот
Всего лотов: 24 лота
Всего лотов: 1 лот
Всего лотов: 20 лотов
Всего лотов: 8 лотов
Всего лотов: 19 лотов
×
Заявка отправлена