Для корректной работы сайта выключите VPN

Описание

Вашему вниманию представлен великолепный дом на берегу Истринского водохранилища, расположенный в посёлке Тимофеево Солнечногорского района, в 65 км от МКАД по Ленинградскому или Волоколамскому шоссе.

Стильный, современный дом построен из кирпича и газоблоков, перекрытия бетонные. Фундамент: монолитная плита, кровля эксплуатируемая: утепленная, с гидроизоляцией.
Ведется активное строительство, в котором задействованы исключительно высококачественные дорогие материалы.

На данный момент в доме выполнены черновые работы: отлита лестница, возведены перегородки, выровнены стены, залиты полы, смонтированы инженерные системы. В доме разведены все коммуникации. Теплые полы на всех этажах. В котельной установлено дорогостоящее газовое оборудование.

На первом этаже большая гостиная с камином и выходом на участок.
Во всех спальнях и спортзале есть видовые террасы и балконы.
Из мансарды выход на большую открытую террасу, откуда открывается захватывающий вид на водную гладь. Слияние трех рек - поистине место силы, которую даёт сама природа.

Участок правильной формы, площадью 18 соток, находится на самой высокой точке полуострова. Есть ливневая канализация.
На участке расположена одноэтажная постройка (площадь 50 кв.м.) для персонала с камином.
Для любителей водных развлечений, есть возможность сделать свой причал у дома, собственный спуск к воде и место для купания на берегу с натуральным золотым песком.

Количество спален: 5

Тип балкона: терраса

Тип дома: кирпичный

Готовность: Строится

Категория земли: Земли сельхоз. назначения, ЛПХ

Сауна: Да

Охраняемая территория: Да

Есть вопросы по объекту? Звоните

Коммуникации

Газ: Да

Канализация: Септик

Водопровод: скважина

Электричество, кВт: 15

Планировка

Первый этаж: прихожая, гостевой санузел, гостиная с камином и выходом на участке, кухня с кладовой, помещение для персонала, 2 санузла с душем, сауна, вход в бойлерную со стороны участка.

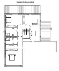
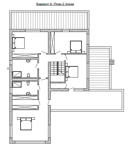
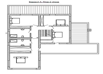
Второй этаж:
2 спальни с собственными санузлами, 2 мастер -спальни с собственными гардеробными и санузлами

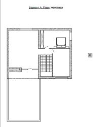
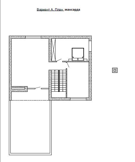
Мансарда:
Спальня с санузлом, спортзал

Описание поселка

Тимофеево - живописный охраняемый поселок, расположенный в 65 км от МКАД по Ленинградскому, в 70 км по Пятницкому или Волоколамскому шоссе. Уникальное расположение - на берегу Истринского водохранилища, в месте слияния трех рек: Истры, Нудоли и Чернушки. Чистая вода и прекрасные пейзажи. К поселку ведет асфальтированная дорога, окруженная бескрайними полями. Тимофеево находится вдали от трасс и массовой застройки - настоящий рай для тех, кто любит тишину, нарушаемую лишь пением птиц.

Въезд в поселок через автоматический шлагбаум, есть охрана. Улицы освещаются в тёмное время суток.
На территории поселка есть детские и спортивные площадки.
Два пляжа предоставляют возможности для занятий водными видами спорта, а для владельцев яхт и катеров предусмотрен причальный комплекс с эллингом, где вы сможете хранить свой катер. Есть прекрасная возможность кататься на квадроциклах и снегоходах. Также место подойдёт для любителей рыбалки. В инфраструктуру включено все необходимое для создания поистине комфортной загородной среды. Недалеко от поселка есть два частных аэродрома для малой авиации. Ленинская больница Солнечногорского района расположена в 12 км (есть возможность добраться на автобусе).

Время в пути из Москвы до Тимофеево составит всего 50 минут по высокоскоростной трассе М-11, до г. Зеленоград - 30 минут.
Также есть возможность добраться из поселка на автобусе до автостанции Солнечногорск за 50 минут.

Читать далее

Инфраструктура

На территории поселка:

Пляж
Яхт клуб

Лот: 55160721

120000000

1658700

1427400

Записаться на просмотр
Предложите свою цену
В сравнение В избранное Скачать

559 м2

18 соток

5 спален

Без отделки

Ленинградское шоссе

69 км от МКАД

в ипотеку

Ваш персональный менеджер

Гроздова Анастасия
Специалист по работе
с загородной недвижимостью

+7 (499) 117-03-56
Перезвонить мне

Похожие предложения

Гроздова Анастасия
Специалист по работе
с загородной недвижимостью

Помогу подобрать Вам дом быстро и по привлекательной цене

Расположение поселка

Выбор поселка по шоссе

Дмитровское шоссе
Новорижское шоссе
Горьковское шоссе
Путилковское шоссе
Рогачевское шоссе
Рублево-Успенское шоссе
Всего лотов: 9 лотов
Всего лотов: 1 лот
Всего лотов: 24 лота
Всего лотов: 1 лот
Всего лотов: 20 лотов
Всего лотов: 8 лотов
Всего лотов: 19 лотов
×
Заявка отправлена