Описание

Предлагаем вашему вниманию дом площадью 460 кв. м на участке площадью 16 соток в охраняемом коттеджном поселке «Тихие зори», расположенном на берегу Истринского водохранилища вдали от шумных магистралей в 40 км от МКАД по Волоколамскому шоссе или Пятницкому шоссе. Поселок придется по вкусу тем, кто ищет с одной стороны уединения и чистого воздуха и при этом хочет иметь возможность активного отдыха на воде.

Дом построен из керамических блоков Porotherm 51, облицован клинкерным кирпичом. Кровля покрыта гибкой черепицей, окна - REHAU. Перекрытия всех этажей и цокольный этаж – монолитные. В цокольном этаже залита чаша купели в банной зоне, установлена печь с дымоходом Effe 2 Domus. В доме установлен газовый котел Schiedel. Дом продается в черновой отделке.

Участок правильной формы с ровным рельефом. По периметру участка залит ленточный фундамент с металлическими столбами для установки забора. Проведены ландшафтные работы – участок отсыпан песком, сделана дренажная система. Все коммуникации – центральные.

Количество спален: 5

Тип дома: кирпичный

Готовность: Требует ремонта

Категория земли: ДНП

Бассейн: Да

Сауна: Да

Есть вопросы по объекту? Звоните

Коммуникации

Газ: Да

Канализация: центральная

Водопровод: центральный

Электричество, кВт: 15

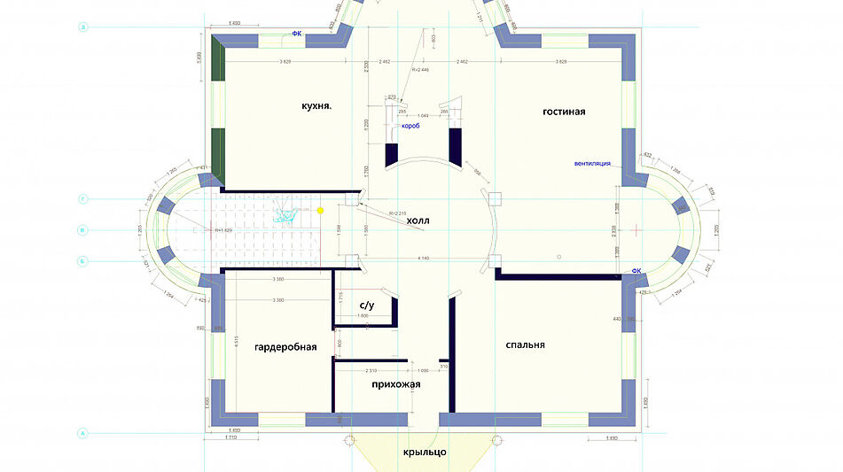
Планировка

Цокольный этаж: котельная, баня, зона отдыха с купелью, гараж, кладовая;
Первый этаж: прихожая, гостевой санузел, гардеробная, кухня, гостиная, гостевая спальня;
Второй этаж: четыре спальни, санузел.

Описание поселка

Площадь территории охраняемого коттеджного поселка «Тихие зори» составляет 74 га. Поселок рассчитан на 440 домовладений. Концепция поселка предполагает застройку по индивидуальным проектам. На территории есть детская и спортивная площадки, обеспечивающие досуг и детей, и родителей во время отдыха на свежем воздухе.
В поселке все коммуникации – центральные: газ, электричество, водоснабжение, канализация.
Несмотря на свое уединенное расположение, инфраструктура вокруг поселка очень развита. Рядом с коттеджным поселком «Тихие зори» располагается деревня Трусово, в которой есть общественный пляж, кафе, лодочная станция, супермаркеты, аптеки, отель «Истра Холидей» 4*. В 20 минутах езды на автомобиле - вся инфраструктура города Солнечногорска или московская инфраструктура Зеленограда.
Добраться до поселка можно по Новорижскому или Волоколамском шоссе на личном автотранспорте. Время в пути займет около сорока минут. Понадобится 30 минут, чтобы доехать на такси или автобусе до станции МЦД «Зеленоград-Крюково».

Читать далее

Инфраструктура

На территории поселка:

Детские площадки
Футбольное поле
Спортивная площадка

Лот: 113694987

43000000

565400

479800

Записаться на просмотр
Предложите свою цену
В сравнение В избранное Скачать

460 м2

16 соток

5 спален

Без отделки

Пятницкое шоссе

40 км от МКАД

Ваш персональный менеджер

Коваленко Иван
Специалист по работе
с загородной недвижимостью

+7 (499) 110-46-13
Перезвонить мне

Похожие предложения

Коваленко Иван
Специалист по работе
с загородной недвижимостью

Помогу подобрать Вам дом быстро и по привлекательной цене

Расположение поселка

Выбор поселка по шоссе

Дмитровское шоссе
Новорижское шоссе
Горьковское шоссе
Путилковское шоссе
Рогачевское шоссе
Рублево-Успенское шоссе
Всего лотов: 9 лотов
Всего лотов: 1 лот
Всего лотов: 24 лота
Всего лотов: 1 лот
Всего лотов: 20 лотов
Всего лотов: 8 лотов
Всего лотов: 19 лотов
×
Заявка отправлена