Для корректной работы сайта выключите VPN

Описание

Предлагаем Вашему вниманию новый современный дом под чистовую отделку площадью 350 кв. м в охраняемом коттеджном поселке Спасатель-1, расположенном в 9 км от МКАД по Новорижскому шоссе.
Фасад дома комбинированный, выполнен из натуральной лиственницы и декоративной штукатурки. При строительстве и отделке были использованы только высококачественные, дорогостоящие материалы. Дом подключен ко всем коммуникациям. В доме выполнены разводка электричества и отопления. Стены отштукатурены. Сделан дизайн-проект дома.
Участок правильной формы площадью 10 соток хорошо освещен.

Количество спален: 5

Тип дома: кирпичный

Готовность: Под отделку

Категория земли: ДНП

Охраняемая территория: Да

Есть вопросы по объекту? Звоните

Коммуникации

Газ: Да

Канализация: Септик

Водопровод: скважина

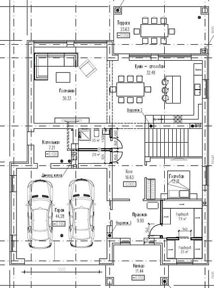
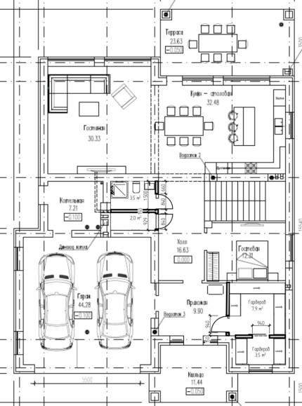
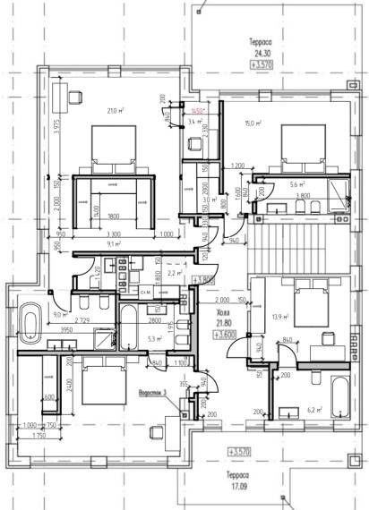
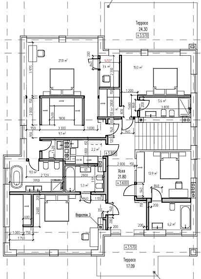
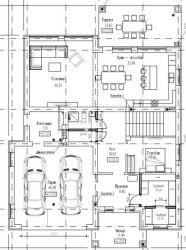
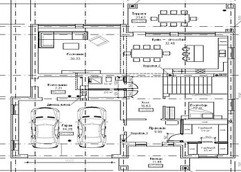
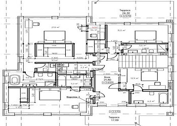
Планировка

Первый этаж: гостиная-столовая с панорамным остеклением и выходом на открытую террасу, прихожая, гостевая комната, санузел, гардеробная, бойлерная, кладовая, гараж на два автомобиля.
Второй этаж: мастер-спальня с ванной комнатой, гардеробная, три спальни с ванными комнатами и гардеробными.

Описание поселка

Пригородный коттеджный поселок "Спасатель-1" расположен в 9 км от МКАД по Новорижскому шоссе. Поселок окружен смешанным лесом. Красота здешних мест с лёгкостью восстанавливают утраченные горожанами связи с природой. Именно здесь нашел своё воплощение новый современный взгляд на активный отдых и комфортное проживание на природе.
Доступ в поселок осуществляется жителями через организованный въезд.

В пешей доступности вся инфраструктура Рига Лэнд. На территории бизнес-центра располагаются 6 офисных зданий, отель «Riga Land», медицинская клиника «Чайка», рестораны, кафе, магазины, салон красоты «RigaBeautySPA», фитнес-центр «RigaFit» и специализированный зал «CrossFit IceBox» для занятий кросс-фитом. Особенностью инфраструктуры бизнес-центра Рига-Лэнд является наличие многофункционального ледового комплекса «Riga Ice Land», этот комплекс подходит для тренировок и состязаний хоккеистов, профессиональных фигуристов и любителей. Рядом с бизнес-центром находится строительный двор Петровский и Петровский базар.

Ближайшая автобусная остановка находится в 200 м от поселка, здесь проходят несколько автобусных маршрутов и маршрутных такси в разные части города Москвы. На автомобиле время в пути до МКАД составит менее 12 минут, а до Москва-Сити менее получаса.

Читать далее

Инфраструктура

На территории поселка:

Лот: 127127233

76000000

1008700

860300

Записаться на просмотр
Предложите свою цену
В сравнение В избранное Скачать

350 м2

10 соток

5 спален

Без отделки

Новорижское шоссе

9 км от МКАД

в ипотеку

Ваш персональный менеджер

Васильева Анжелика
Специалист по работе
с загородной недвижимостью

+7 (499) 110-60-98
Перезвонить мне

Похожие предложения

Васильева Анжелика
Специалист по работе
с загородной недвижимостью

Помогу подобрать Вам дом быстро и по привлекательной цене

Расположение поселка

Выбор поселка по шоссе

Дмитровское шоссе
Новорижское шоссе
Горьковское шоссе
Путилковское шоссе
Рогачевское шоссе
Рублево-Успенское шоссе
Всего лотов: 9 лотов
Всего лотов: 1 лот
Всего лотов: 24 лота
Всего лотов: 1 лот
Всего лотов: 20 лотов
Всего лотов: 8 лотов
Всего лотов: 19 лотов
×
Заявка отправлена