Для корректной работы сайта выключите VPN

Описание

Вашему вниманию представляется дом в стиле Барнхаус в благоустроенном поселке Смартвилль всего в 37 км от МКАД по Дмитровскому шоссе. Дом расположен на участке 13.23 сотки с небольшим уклоном.

Дом построен в 2023 году. Фундамент - монолитная плита 40 см с двойной гидрозоиляцией. Стены первого этажа построены по технологии монолит-кирпич. Второй этаж - стены и крыша каркасного типа (деревянные). Фасад обшит профилем премиум-класса "Барн" (фирма Стинерджи) и планкеном, окрашенным немецким маслом OSMO и краской Tikkurila Pesto.

Дом расположен в тихом месте на большом участке площадью 13,23 сотки. Свободное пространство позволяет разместить на участке дополнительные постройки и выполнить красивый ландшафтный дизайн.

В дом заведено электричество 9 кВт, газ и вода проходят по границе участка.

Количество спален: 3

Тип дома: деревянный

Готовность: Требует ремонта

Категория земли: ДНП

Есть вопросы по объекту? Звоните

Коммуникации

Газ: Да

Водопровод: центральный

Электричество, кВт: 9

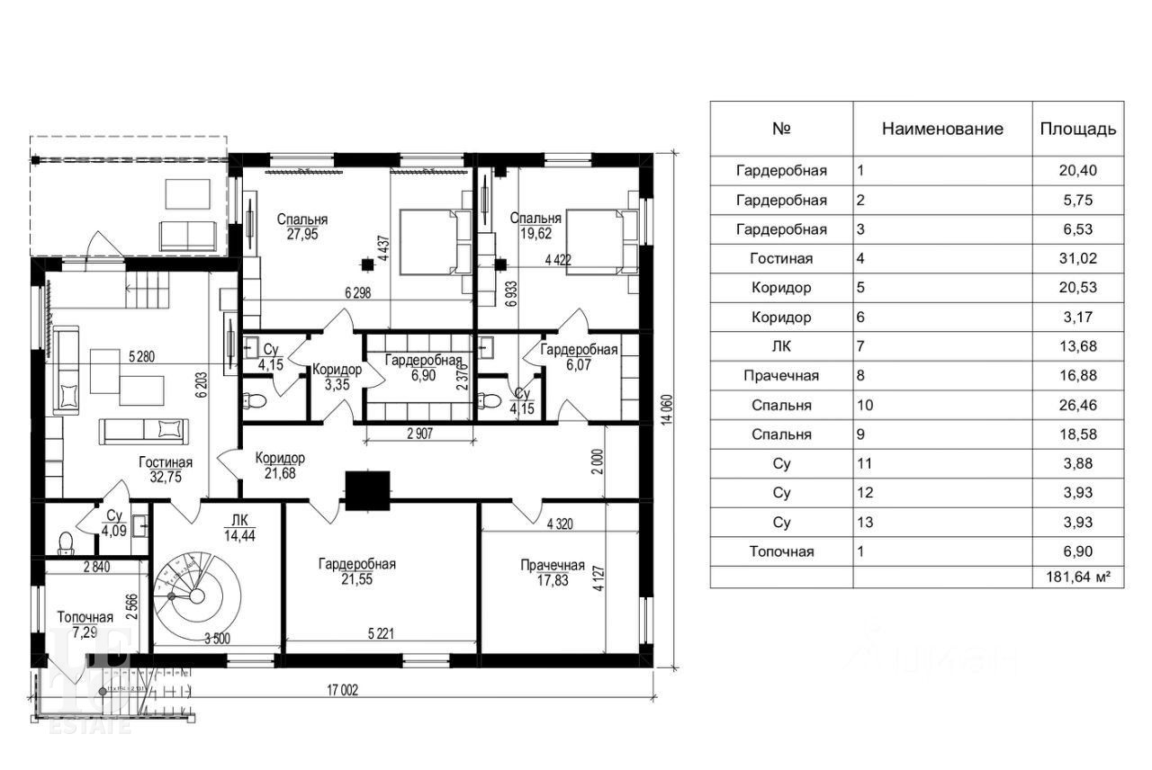
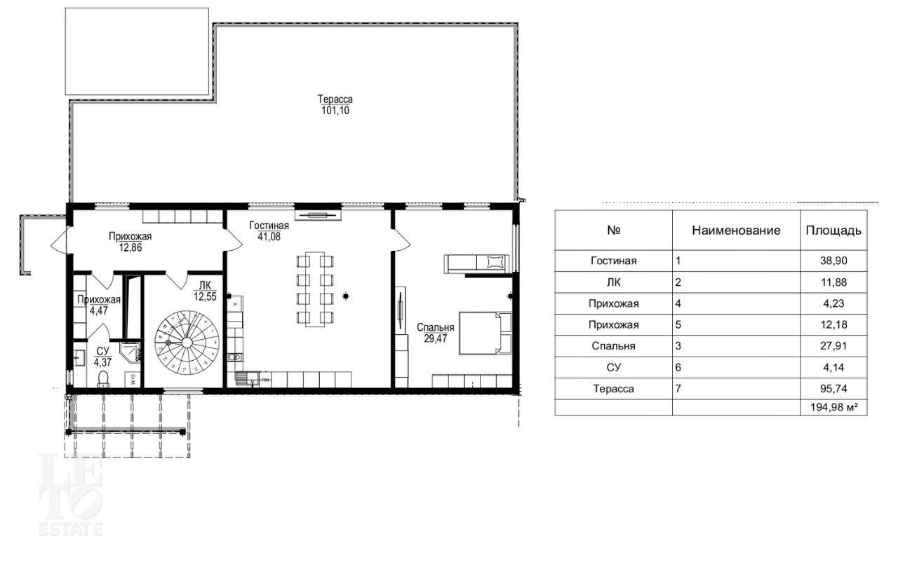
Планировка

Планировка:

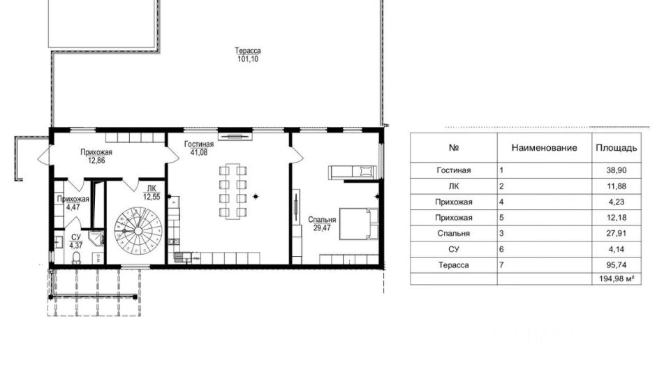
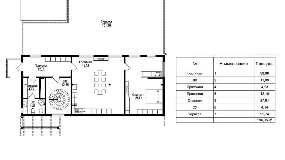
Первый этаж: прихожая, гостевой санузел, кухня-гостиная, спальня, терраса

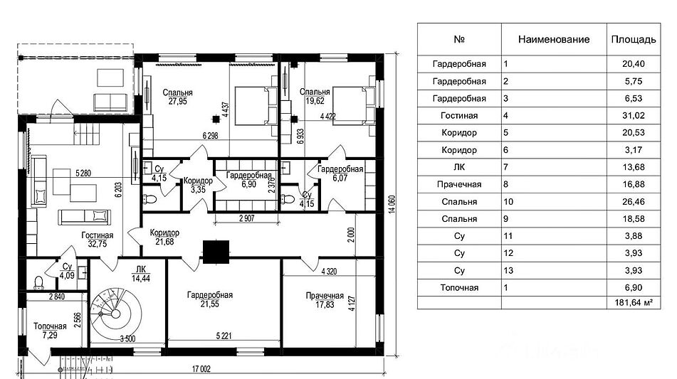
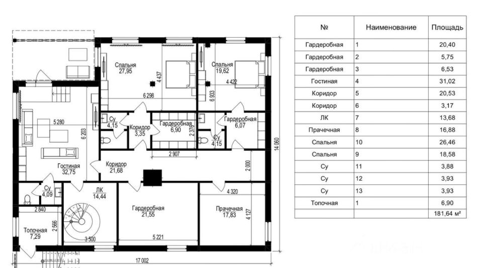
Второй этаж: гостиная, две спальни с собственными гардеробными и санузлом, прачечная, гардеробная.

Описание поселка

Коттеджный поселок «SmartVille Дмитровка» - расположен в 37 км от МКАД по Дмитровскому шоссе и уже готов для проживания! Удобное расположение, отличная транспортная доступность, полностью готовые центральные коммуникации (газ, электричество, водоснабжение), делают поселок лучшим местом для комфортной и беззаботной круглогодичной загородной жизни.

Читать далее

Инфраструктура

На территории поселка:

Лот: 57734303

7900000

109200

94000

Записаться на просмотр
Предложите свою цену
В сравнение В избранное Скачать

300 м2

13.2 соток

3 спальни

Без отделки

Дмитровское шоссе

37 км от МКАД

в ипотеку

Ваш персональный менеджер

Мугинова Айгуль
Специалист по работе
с загородной недвижимостью

+7 (499) 226-28-93
Перезвонить мне

Похожие предложения

Мугинова Айгуль
Специалист по работе
с загородной недвижимостью

Помогу подобрать Вам дом быстро и по привлекательной цене

Расположение поселка

Выбор поселка по шоссе

Дмитровское шоссе
Новорижское шоссе
Горьковское шоссе
Путилковское шоссе
Рогачевское шоссе
Рублево-Успенское шоссе
Всего лотов: 9 лотов
Всего лотов: 1 лот
Всего лотов: 24 лота
Всего лотов: 1 лот
Всего лотов: 20 лотов
Всего лотов: 8 лотов
Всего лотов: 19 лотов
×
Заявка отправлена