Для корректной работы сайта выключите VPN

Описание

В архитектурном проекте данного дома продумано все до мельчайшей детали. Применение древесины, светлого и графитового цвета камня в экстерьере напоминает о природном анклаве, в котором расположен дом. Находясь в данном доме, ощущается особенная умиротворенность. Дом подходит для круглогодичного проживания всей семьи.

Дом построен из керамического блока Porotherm, перекрытия железобетонные. Кладка керамического блока произведена под техническим надзором компании Porotherm. В отделке фасада применен декоративный камень White Hills, вставки планкен, вставки декоративной штукатурки. Кровля покрыта черепицей Технониколь (3 слоя) в цветовом исполнении проекта. Дом выполнен в современном стиле.
Дом представлен без отделки.

Участок, на котором расположен дом, правильной трапецевидной формы, общей площадью 11,96 кв.м. Участок располагается вдоль прогулочной зоны, которая будет благоустроена застройщиком с применением малых архитектурных форм и ландшафтного озеленения. Вода и канализация заведены в дом. Газ по границе участка.

Отдельного акцента заслуживает планировка дома. Дом 2х-этажный. Все пространство эргономично спланировано. Есть гараж, большая кухня-гостиная с выходом на террасу и веранду, мастер-спальня, кабинет, отдельное помещение котельной с выходом в гараж.

Особенностью дома является наличие второго света и панорамное остекление, что подарит будущему хозяину ощущение простора, дополнительное естественное освещение всего дома и потрясающий вид на сосновый бор.

Количество спален: 5

Тип дома: кирпичный

Готовность: Готов полностью

Категория земли: ДНП

Есть вопросы по объекту? Звоните

Коммуникации

Газ: Да

Канализация: центральная

Водопровод: центральный

Электричество, кВт: 10

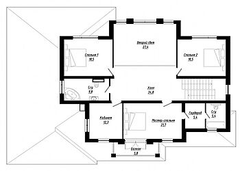
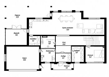
Планировка

Планировка:
Первый этаж - большая кухня-гостиная, гостевая спальня, гостевой санузел, гардеробная, терраса, веранда, вместительный гараж на 2 машиноместа, котельная.

Второй этаж - мастер-спальня, кабинет, две спальни, санузел, второй свет.

Описание поселка

Коттеджный поселок обеспечен превосходной локацией всего в 13 км от МКАД по Ленинградскому шоссе. Поселок окружен реликтовым лесом и подходит для круглогодичного проживания всей семьи.

Концепцией коттеджного поселка Сходня Кантри Клаб предусмотрено 7 проектов домов с единым дизайн-кодом в современном стиле площадью от 125 кв.м. до 410 кв.м. Общее количество домовладений составляет 75. Поселок обеспечен собственной инфраструктурой. Для жителей создана прогулочная зона, построены детские и спортивные площадки, а также теннисный корт и футбольное поле. К домовладениям подведены все центральные коммуникации – идеальное решение для любителей городского комфорта.

Инфраструктура, необходимая для ежедневной жизни: магазины, поликлиники, детские сады, школы – расположена всего в 2,5 км в микрорайоне Сходня. В шаговой же доступности находится Wellness & Sport центр с крытым и открытым бассейном, тренажерным залом и СПА-комплексом премиального класса.
Коттеджный поселок утопает в сосновом бору. Из окон каждого дома открывается неповторимый вид на лес.

До центра Москвы можно добраться всегда. Время в пути до центра займет не больше часа, в том числе в часы пик. В 10 минутах от коттеджного поселка Сходня Кантри Клаб расположена станция МЦД-D3 «Сходня», благодаря которой до станции «Лихоборы» (пересадочный узел) в Москве можно доехать всего за 25 минут. Удачное расположение поселка позволяет быстро добраться до международного аэропорта «Шереметьево».

Читать далее

Инфраструктура

На территории поселка:

Детский сад
Школа
Супермаркет
Ресторан
Медцентр
Фитнесцентр
Парк
Салон красоты
Детские площадки
Теннисный корт
Футбольное поле
Спортивная площадка

Лот: 108054666

64500000

856100

730100

Записаться на просмотр
Предложите свою цену
В сравнение В избранное Скачать

410 м2

12 соток

5 спален

Без отделки

Ленинградское шоссе

13 км от МКАД

в ипотеку

Ваш персональный менеджер

Видецких Олег
Специалист по работе
с загородной недвижимостью

+7 (499) 110-57-98
Перезвонить мне

Похожие предложения

Видецких Олег
Специалист по работе
с загородной недвижимостью

Помогу подобрать Вам дом быстро и по привлекательной цене

Расположение поселка

Выбор поселка по шоссе

Дмитровское шоссе
Новорижское шоссе
Горьковское шоссе
Путилковское шоссе
Рогачевское шоссе
Рублево-Успенское шоссе
Всего лотов: 9 лотов
Всего лотов: 1 лот
Всего лотов: 24 лота
Всего лотов: 1 лот
Всего лотов: 20 лотов
Всего лотов: 8 лотов
Всего лотов: 19 лотов
×
Заявка отправлена