Описание

Представляем Вашему вниманию просторный дом 251,1 кв.м. в стиле Фахверк, уютно расположившийся на участке 12,34 сотки в Коттеджном поселке Резиденции Пестово. Коттеджный поселок бизнес-класса Резиденции Пестово расположен в 25 км от МАКД по Дмитровскому шоссе в непосредственной близости от Икшинского водохранилища.

Изящная форма дома и выразительность создаются благодаря просторной террасе, высоким потолкам и панорамному остеклению, которое словно приглашает Вас насладиться великолепными видами на Икшинское водохранилище. Каждое утро здесь начинается с восхищения природной красотой, которая открывается из окон.

Дом серии Моншау построенный в 2024 году компанией ТАМАК воплощение высокого качества стандарта. В его создании использованы только натуральные природные материалы: уральская ель и сибирская лиственница, негорючая каменная вата, цементностружечные плиты, что обеспечивает здоровье и комфорт жильцов.
Особая Фахверковая технология, основанная на точной ориентации ламелей, придает конструкции исключительную стабильность и прочность бруса. Такой дом не дает усадки, что позволяет сразу приступить к чистовой отделке и быстро воплощать в жизнь самые смелые дизайнерские идеи. Срок службы дома оценивается в 75 лет и более.

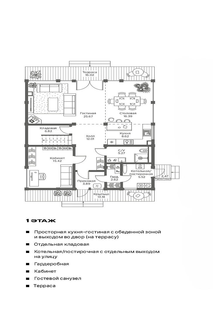
Планировка дома продумана до мелочей. На первом этаже располагается просторная кухня-гостиная с обеденной зоной и выходом на террасу, где можно устраивать уютные вечера на свежем воздухе. Дополнительно на первом этаже располагается кабинет, гардеробная, санузел и котельная с отдельным выходом на улицу.
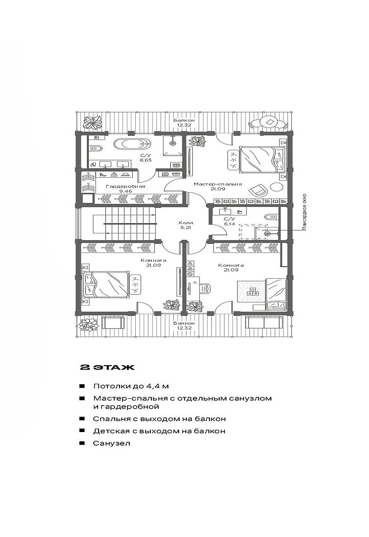
На втором этаже расположена мастер-спальня с собственной гардеробной и санузлом, а также две уютные комнаты с балконами и еще один санузел.

На придомовом участке 12,34 соток можно организовать внутренний дворик и обустроить парковочное место для двух автомобилей.

Все коммуникации в поселке центральные: магистральный газ, электричество 15 кВт, водоснабжение и канализация.

Количество спален: 4

Площадь комнат: 15.42, 21.09, 21.09, 21.09

Жилая площадь: 78.69

Тип дома: деревянный

Готовность: Под отделку

Категория земли: Земли нас. пунктов, ИЖС

Охраняемая территория: Да

Есть вопросы по объекту? Звоните

Коммуникации

Газ: Да

Канализация: центральная

Водопровод: центральный

Электричество, кВт: 15

Планировка

Первый этаж: прихожая, кухня-столовая, гостиная с выходом на террасу, кабинет, гардеробная, санузел, котельная.

Второй этаж: мастер-спальня с гардеробной и санузлом, детская комната с балконом, гостевая комната с балконом, санузел.

Описание поселка

Коттеджный поселок бизнес-класса Резиденции Пестово расположен в 25 км от МКАД по Дмитровскому шоссе в непосредственной близости от Икшинского водохранилища.
Поселок ориентирован на комфортное проживание и отдых на большой воде.
В поселке реализованы современные дома в стиле фахверк с панорамным остеклением. Из окон домов открывается впечатляющие виды на Икшинское водохранилище.
Внутренняя территория поселка обустроена по принципам безопасности, удобства и заботы о резидентах. Спортивные площадки, зоны воркаута и детские площадки способствуют созданию дружелюбной и активной среды внутри поселка. Большое количество детских садов и школ позволят проживать семьям с детьми круглогодично. По широким дорогам и благоустроенным тротуарам будет комфортно передвигаться автомобилистам и пешеходам.
В поселке предусмотрены все центральные коммуникации и собственная управляющая компания.
Быстро добраться из центра Москвы до поселка можно не только на автомобиле, но и на электричке (ближайшая железнодорожная станция Трудовая).

Читать далее

Инфраструктура

На территории поселка:

Детские площадки
Спортивная площадка

Лот: 115348905

41372521

550000

466300

Записаться на просмотр
Предложите свою цену
В сравнение В избранное Скачать

251 м2

12.3 соток

4 спальни

Без отделки

Дмитровское шоссе

25 км от МКАД

в ипотеку

Ваш персональный менеджер

Глухов Макар
Ведущий специалист по работе
с загородной недвижимостью

+7 (499) 288-19-81
Перезвонить мне

Похожие предложения

Глухов Макар
Ведущий специалист по работе
с загородной недвижимостью

Помогу подобрать Вам дом быстро и по привлекательной цене

Расположение поселка

Выбор поселка по шоссе

Дмитровское шоссе
Новорижское шоссе
Горьковское шоссе
Путилковское шоссе
Рогачевское шоссе
Рублево-Успенское шоссе
Всего лотов: 9 лотов
Всего лотов: 1 лот
Всего лотов: 24 лота
Всего лотов: 1 лот
Всего лотов: 20 лотов
Всего лотов: 8 лотов
Всего лотов: 19 лотов
×
Заявка отправлена