Для корректной работы сайта выключите VPN

Описание

Представляем вашему вниманию резиденцию «под ключ» с собственным парком 781 кв. м на земельном участке площадью 26 соток в деревне Поздняково, расположенном всего в 9 км от МКАД по Новорижскому шоссе.

Дом – четырехэтажный, построен в 2016 году из кирпича. Есть бассейн, спа-зона с тремя видами бань, кинотеатр, библиотека. Фасад облицован кирпичом, фундамент – монолитная плита, железобетонные перекрытия. Во внутренней отделке преимущественно использовано натуральное дерево и элементы из натурального камня. Лестница украшена резными деталями и скульптурами. Установлена бытовая техника и сантехническое оборудование премиального класса. В доме предусмотрен отдельный блок для персонала со своим входом с улицы.

Участок ухоженный, произведены ландшафтные работы, организован автополив. На участке разбит собственный парк с прудом и беседкой, организована зона BBQ. Площадка перед домом и дорожки выложены брусчаткой. На придомовой территории можно припарковать пять автомобилей. Коммуникации: центральная канализация, газ и электричество, скважина -130 м.

Количество спален: 8

Жилая площадь: 781

Тип дома: кирпичный

Готовность: Готов полностью

Категория земли: Земли нас. пунктов, ИЖС

Бассейн: Да

Сауна: Да

Есть вопросы по объекту? Звоните

Коммуникации

Газ: Да

Канализация: центральная

Водопровод: центральный

Электричество, кВт: 15

Планировка

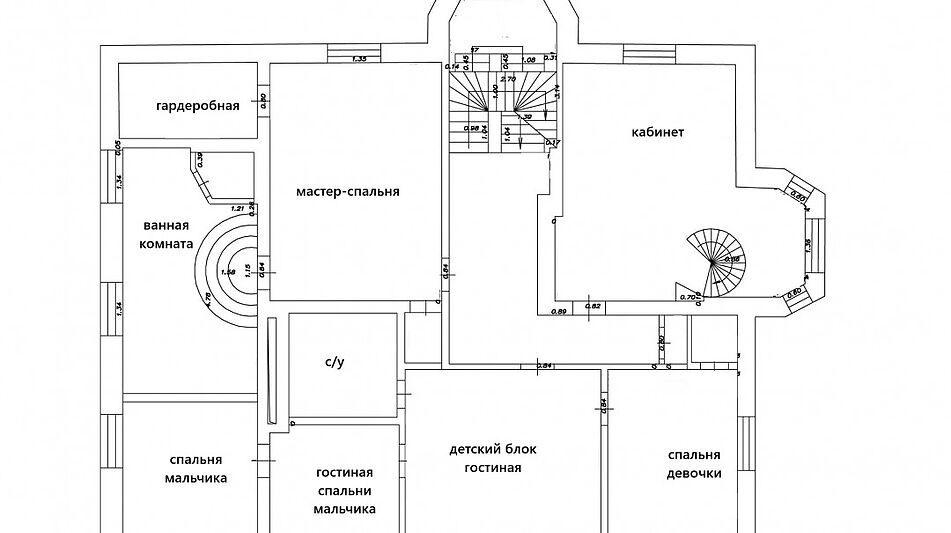
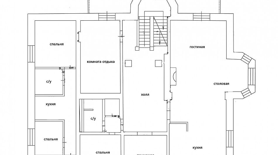
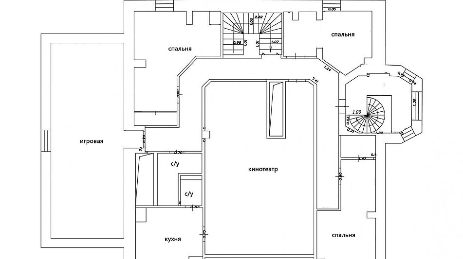
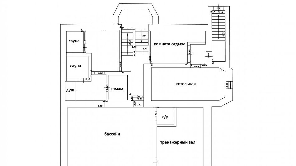
Планировка дома:
Цоколь – русская баня, хамам, гималайская соляная баня, спортивный зал, комнаты для отдыха, бассейн с морской водой, котельная, постирочная.
Первый этаж – прихожая, холл, спальня, санузел, гардеробная, кальянная комната, терраса, гостиная, терраса, кухня, столовая.
Второй этаж – мастер-спальня, две детские спальни, гостиная, санузел, двухуровневый кабинет с библиотекой.
Третий этаж – кинотеатр, санузел, три спальни, санузел, игровая комната.

Описание поселка

Деревня Поздняково знаменита своей престижностью, солидным окружением и развитой инфраструктурой, расположена в 9 км от МКАД по Новорижскому шоссе.
В деревне Поздняково расположен конноспортивный комплекс «Новый век», в котором есть все для комфортного пребывания лошадей – левады и плацы, конюшни и солярии, манежи для тренировок.
В 1,5 км от коттеджного поселка в селе Николо-Урюпино расположена общеобразовательная школа, продуктовые магазины, Никольская церковь, ресторан Swiss Yard и СПА-комплекс Grand Wellness.
Кроме того, съезжая с Новорижского шоссе в сторону коттеджного поселка СК Липка, расположен торговый центр «Петровский продуктовый базар», «Твой дом», ледовая арена в БЦ RigaLand, а также ТЦ РИГАМОЛЛ и ЦУМ Outlet.
Добраться до деревни Поздняково можно по Новорижскому шоссе. Время в пути до Москвы составит не более 20 минут, до Москва-Сити – 30-40 минут.

Читать далее

Инфраструктура

На территории поселка:

Супермаркет
Ресторан
Медцентр
Фитнесцентр
Бассейн
Парк
Автомойка
Салон красоты
ЖД станция
Детские площадки
Теннисный корт
Футбольное поле
Спортивная площадка

Лот: 113347740

144000000

1938200

1626300

Записаться на просмотр
Предложите свою цену
В сравнение В избранное Скачать

781 м2

26 соток

8 спален

Под ключ

Новорижское шоссе

9 км от МКАД

Ваш персональный менеджер

Коваленко Иван
Специалист по работе
с загородной недвижимостью

+7 (499) 110-46-13
Перезвонить мне

Похожие предложения

Коваленко Иван
Специалист по работе
с загородной недвижимостью

Помогу подобрать Вам дом быстро и по привлекательной цене

Расположение поселка

Выбор поселка по шоссе

Дмитровское шоссе
Новорижское шоссе
Горьковское шоссе
Путилковское шоссе
Рогачевское шоссе
Рублево-Успенское шоссе
Всего лотов: 9 лотов
Всего лотов: 1 лот
Всего лотов: 24 лота
Всего лотов: 1 лот
Всего лотов: 20 лотов
Всего лотов: 8 лотов
Всего лотов: 19 лотов
×
Заявка отправлена