Для корректной работы сайта выключите VPN

Описание

Вашему вниманию представлен дом площадью 220 кв. м в охраняемом коттеджном поселке Павлово Village, расположенном в 14 км от МКАД по Новорижскому шоссе.
Двухэтажный дом без внутренней отделки строится в классическом стиле. До окончания строительства есть возможность заказать у застройщика уже разработанную под этот проект дизайнерскую отделку интерьера.
Участок 10 соток выровнен и застелен газоном, на нем будут высажены деревья.

Количество спален: 5

Тип дома: кирпичный

Готовность: Строится

Категория земли: Земли нас. пунктов, ИЖС

Охраняемая территория: Да

Есть вопросы по объекту? Звоните

Коммуникации

Газ: Нет

Канализация: центральная

Водопровод: центральный

Электричество, кВт: 15

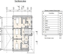
Планировка

План 1 этажа: три кладовые, гараж, кабинет, спальня с гардеробной, 2 с\у, кухня-гостиная, терраса, топочная (инженерная), высота потолков 3,3 м
План 2 этажа: две спальни, с\у, гардеробная, мастерспальня. Высота потолков 3,1 м

Описание поселка

Охраняемый поселок Павлово Village находится всего в 14 км по скоростному Новорижскому шоссе и примыкает к поселку Павлово-2, входя в его инфраструктурную зону.
Внутри поселка созданы все условия для комфортного проживания: асфальтированные подъездные дороги, широкие улицы с тротуарами и освещением, детские и спортивные площадки, зелёные общественные зоны, места для выгула собак, гостевые парковки.
В поселке обеспечена максимальная безопасность для его жителей.

Периметр поселка Павлово-2 и Павлово Village окружен высоким забором, территория круглосуточно охраняется, ведется постоянное патрулирование и видеонаблюдение территории поселка. Въезд в поселок осуществляется через основной КПП Павлово-2 и через запасной КПП непосредственно у Павлово Village.
Максимальный комфорт для жителей коттеджного поселка Павлово Village обеспечивает инфраструктурный комплекс Павлово Подворье, расположенный непосредственно рядом с поселком.
На территории Павлово подворья есть все необходимое для постоянной жизни и отдыха: продуктовый супермаркет Перекресток; аптека; салон красоты; бутик элитных напитков; лавка с фермерскими продуктами; несколько ресторанов (Vasilchuki Chaihona № 1, OMG cafe); отделение банка Сбер Первый; фитнес клуб World Сlass, клиника; детский мир; зоомагазин.
Жители коттеджного поселка Павлово Village имеют возможность наслаждаться инфраструктурой Павлово-2 и загородной жизнью без необходимости выезжать в город.
Для детей в непосредственной близости с поселком была построена современная школа - Павловская гимназия. В школе работают прекрасные преподаватели, кабинеты обеспечены всем необходимым для обучения оборудованием и техникой, на территории есть отличные спортивные площадки. Выпускники этой гимназии без труда поступают в самые престижные высшие учебные заведения.

Коттеджный поселок Павлово Village отличает прекрасная транспортная доступность. На автомобиле от поселка до МКАД можно доехать всего за 20 минут по скоростному Новорижскому шоссе. Остановки общественного транспорта, автобусов, находятся прямо рядом с КПП, а до станции пригородных поездов МЦД «Нахабино» всего 7 минут на маршрутке.

Читать далее

Инфраструктура

На территории поселка:

Супермаркет
Ресторан
Фитнесцентр
Салон красоты
Детские площадки
Спортивная площадка

Лот: 119223645

66600000

881900

754400

Записаться на просмотр
Предложите свою цену
В сравнение В избранное Скачать

220 м2

10 соток

5 спален

Без отделки

Новорижское шоссе

14 км от МКАД

в ипотеку

Ваш персональный менеджер

Новоселов Владимир
Специалист по работе
с загородной недвижимостью

+7 (499) 110-42-67
Перезвонить мне

Похожие предложения

Новоселов Владимир
Специалист по работе
с загородной недвижимостью

Помогу подобрать Вам дом быстро и по привлекательной цене

Расположение поселка

Выбор поселка по шоссе

Дмитровское шоссе
Новорижское шоссе
Горьковское шоссе
Путилковское шоссе
Рогачевское шоссе
Рублево-Успенское шоссе
Всего лотов: 9 лотов
Всего лотов: 1 лот
Всего лотов: 24 лота
Всего лотов: 1 лот
Всего лотов: 20 лотов
Всего лотов: 8 лотов
Всего лотов: 19 лотов
×
Заявка отправлена