Для корректной работы сайта выключите VPN

Описание

Вашему вниманию представляется просторный дом 1034 кв.м с панорамным остеклением, дизайнерской отделкой и мебелью расположен на приватном сосновом участке 115 соток в коттеджном поселке Павлово-1, расположенном в 14 км от МКАД по Новорижскому шоссе.
Дом оборудован современными инженерными системами, приточно-вытяжной вентиляцией с канальным увлажнением, охранной и пожарной сигнализацией, системой умный дом, системой защиты от протечек.

По периметру участка установлены камеры видеонаблюдения, датчики охраны. Газовая котельная вынесена в гараж, что удобно для обслуживания. Отдельно расположен гаражный комплекс 238 кв.м на 6м/м с автомойкой, помещениями для персонала (2 спальни, кухня, санузел), комнатой охраны с пультовой и бойлерной.

Количество спален: 5

Тип дома: кирпичный

Готовность: Готов полностью

Категория земли: Земли нас. пунктов, ИЖС

Бассейн: Да

Сауна: Да

Под ключ: Да

Охраняемая территория: Да

Есть вопросы по объекту? Звоните

Коммуникации

Газ: Да

Канализация: центральная

Водопровод: центральный

Электричество, кВт: 15

Планировка

Цокольный этаж: технические помещения, кладовые, винная комната;
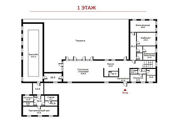
Первый этаж: холл, гардеробная, гостиная с выходом на террасу, столовая, кухня, санузел, домашний кинотеатр, кабинет, бильярдная с баром; блок: две спальни с санузлами; зона СПА: бассейн 18м, парная, санузел, спортзал; полностью оборудованная прачечная, терраса с зоной барбекю;
Второй этаж: хдва санузла; детский блок 1: игровая, спальня, гардеробная, санузел; детский блок 2: спальня, гардеробная, санузел.

Описание поселка

Павлово-1, без преувеличения можно назвать легендарным поселком! Этот прекрасный поселок находится всего в 14 км по скоростному Новорижскому шоссе. Коттеджный поселок Павлово-1 расположен в живописном месте, окруженном лесом, а на территории располагается чистейшее большое озеро с благоустроенной береговой линией.
В далеком 2003 году, когда в нашей стране только зарождалась культура загородной жизни, девелоперская компании ОПИН начала строительство элитного коттеджный посёлок «Павлово-1».
Поселок построен в единой концепции, на территории поселка 70 Га располагаются 220 домов площадью от 350 кв.м., большая нарезка земельных участков добавляет простора и создает более приватную обстановку каждому дому.
Внутри поселка созданы все условия для комфортного проживания: асфальтные подъездные дороги, широкие улицы с тротуарами и освещением, детские и спортивные площадки, зелёные общественные зоны, места для выгула собак, гостевые парковки.
В поселке обеспечена максимальная безопасность для его жителей.
Периметр поселка Павлово-1 окружен высоким забором, территория круглосуточно охраняется, ведется постоянное патрулирование и видеонаблюдение территории поселка. При въезде в поселок организован контрольно-пропускной режим, поэтому попасть в поселок могут только жители поселка Павлово-1 и их гости.

Непременным атрибутом элитного коттеджного поселка конечно же является наличие центральных коммуникаций, и в поселке Павлово-1 они есть: магистральный газ, электричество, водоснабжение, бытовая и ливневая канализация, оптоволоконная сеть.
Максимальный комфорт для жителей коттеджного поселка Павлово-1 обеспечивает инфраструктурный комплекс Павлово Подворье, расположенный непосредственно рядом с поселком.
На территории Павлово подворья есть все необходимое для постоянной жизни и отдыха: продуктовый супермаркет Перекресток, аптека, салон красоты, бутик элитных напитков, лавка с фермерскими продуктами, несколько ресторанов (Vasilchuki Chaihona № 1, OMG cafe, Вкусно и точка), отделение банка Сбер Первый, фитнес клуб World class, клиника, детский мир, зоомагазин.

Инфраструктура коттеджного поселка Павлово-1 дает возможность его жителям наслаждаться загородной жизнью без необходимости выезжать в город, но как же дети? Им нужно учиться.
Застройщик подумали и об этом. В непосредственно близости с поселком была построена современная школа - Павловская гимназия. В школе работают прекрасные преподаватели, кабинеты обеспечены всем необходимым для обучения оборудованием и техникой, на территории есть отличные спортивные площадки. Выпускники этой гимназии без труда поступают в самые престижные высшие учебные заведения.

Коттеджный поселок Павлово-1 отличает прекрасная транспортная доступность.
На машине до поселка можно доехать всего за 15 минут от Москвы по скоростному Новорижскому шоссе. Остановки общественного транспорта, автобусов, находятся прямо рядом с КПП, а до станции пригородных поездов МЦД «Нахабино» всего 7 минут на маршрутке.
Если Вам нужен элитный коттеджный поселок, который сочетает в себе прелесть загородной жизни в окружении природы, но при этом может дать Вам комфорт городской жизни, то Павлово-1 это то, что Вы искали!
Если у Вас остались вопросы, позвоните, и мы с удовольствием на них ответим!
Ждем Вас в коттеджном поселке Павлово-1.

Читать далее

Инфраструктура

На территории поселка:

Детский сад
Школа
Супермаркет
Ресторан
Фитнесцентр
Спортивная площадка

Лот: 105019817

1200000000

16586200

14273200

Записаться на просмотр
Предложите свою цену
В сравнение В избранное Скачать

1034 м2

1.15 Га

5 спален

Под ключ

Новорижское шоссе

14 км от МКАД

в ипотеку

Ваш персональный менеджер

Васильева Анжелика
Специалист по работе
с загородной недвижимостью

+7 (499) 110-60-98
Перезвонить мне

Похожие предложения

Васильева Анжелика
Специалист по работе
с загородной недвижимостью

Помогу подобрать Вам дом быстро и по привлекательной цене

Расположение поселка

Выбор поселка по шоссе

Дмитровское шоссе
Новорижское шоссе
Горьковское шоссе
Путилковское шоссе
Рогачевское шоссе
Рублево-Успенское шоссе
Всего лотов: 9 лотов
Всего лотов: 1 лот
Всего лотов: 24 лота
Всего лотов: 1 лот
Всего лотов: 20 лотов
Всего лотов: 8 лотов
Всего лотов: 19 лотов
×
Заявка отправлена