Описание

Вашему вниманию предлагается просторная четырехкомнатная квартира в ЖК бизнес-класса "Олимпийская деревня Новогорск. Квартиры" в природоохранной зоне на берегу реки с прекрасным видом из окон, расположенная всего в 4 км от МКАД по Новокуркинскому шоссе.
В квартире выполнена высококачественная дизайнерская отделка под ключ, сантехника премиальных брендов, встроенная мебель и бытовая техника. Несколько сценариев освещения. Кухонный гарнитур под единой столешницей и со встроенной бытовой техникой, встроенный холодильник. Установлен подогрев пола, кондиционер. В квартире панорамные окна в пол с видом на набережную реки Сходня и лес. Благодаря большим окнам много света и пространства. Квартира единственная на лестничной площадке, с отдельным при квартирным холлом за дверью, благодаря чему, в просторном холле можно хранить личные вещи. коляски и велосипеды. Также на этаже есть просторная кладовая для хранения вещей, используемая двумя собственниками (вторые - квартира из противоположного крыла).
Монолитный дом авторской европейской архитектуры, 8 этажей, 2014 г. постройки. Фасад дома отделан керамогранитом, клинкерной плиткой и витражными конструкциями. Дом оснащен скоростным грузо-пассажирским лифтом KONE. Закрытая территория с круглосуточной охраной, въезд по пропускам, подземный паркинг.
Вход в подъезд и проход к лифту и подземному паркингу без ступенек! Подъезд выполнен с использованием высококачественных отделочных материалов. В холле размещены консьерж и колясочные, предусмотрена зона ожидания с диванами и журнальным столом, есть стол для тенниса.
На каждом этаже есть кладовая для хранения личных вещей (общая с соседями на этаж).

Количество спален: 4

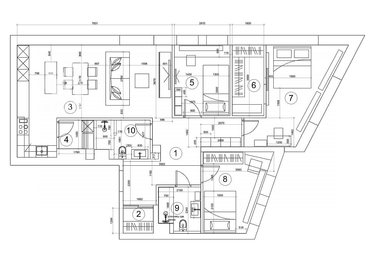
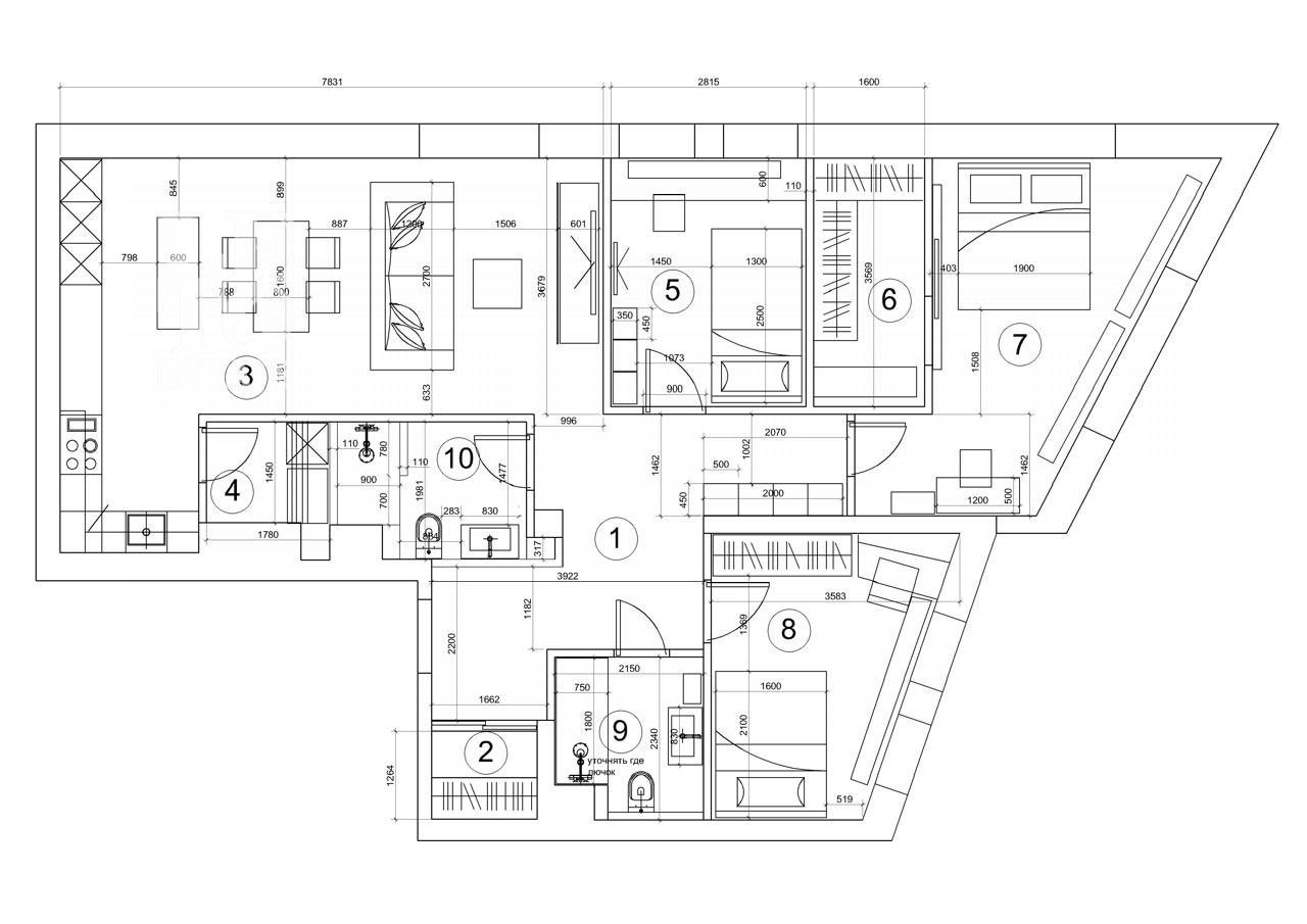
Площадь комнат: 30, 20, 17, 12

Площадь кухни: 20

Санузел: 2

Жилая площадь: 79

Этаж: 2

Тип дома: Монолитный

Лифт: Да

Готовность: Готов полностью

Высота потолков: 3.1

Под ключ: Да

Лифт в доме: Да

Есть вопросы по объекту? Звоните

Планировка

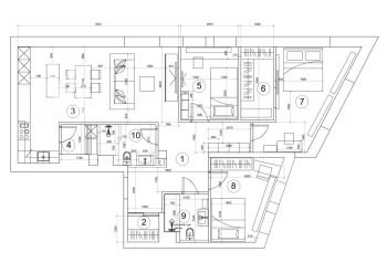
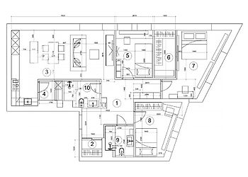
Планировка квартиры: входной холл, гардеробная, совмещенный санузел, просторная кухня-столовая-гостиная, кладовая хозяйственная комната из кухни, совмещенный санузел, детская спальня, мастер спальня с собственной гардеробной и панорамными окнами, гостевая спальня с панорамными окнами.

Описание поселка

Жилой комплекс бизнес-класса «Олимпийская деревня Новогорск. Квартиры» расположенный в городе Химки, всего в 4 км от Москвы по Новокуркинскому шоссе.

Этот жилой комплекс представляется удивительным, с уникальной инфраструктурой и обширными возможностями для активного образа жизни. Месторасположение на берегу реки в природном парке добавляет ему особого очарования и предоставляет обитателям возможность наслаждаться окружающей природой.



В комплексе построена вся внутренняя инфраструктура, выполнено концептуальное зонирование открытых площадок и зон отдыха, удобное для жителей разных интересов и возрастов: разнообразные детские и спортивные площадки, благоустроенная двухуровневая набережная общей длиной около двух километров, беговые и прогулочные дорожки, отрытый подогреваемый бассейн, собственный выход на гольф-поле.

На территории комплекса выполнено ландшафтное озеленение. Создана безбарьерная среда: пандусы, съезды, увеличенные дверные проемы общественных зон. Предусмотрены подземный паркинг и открытая гостевая парковка. Удобно расположены магазин «Еда.Маркет», супермаркет "Верный", детский сад «Binny», а также два кафе, две языковые школы, салон красоты, маникюрный салон, ПВЗ WB. В непосредственной близости находится фитнес клуб «Republika» с бассейном.

Территория ЖК огорожена и находится под круглосуточным наблюдением, въезд осуществляется через контрольно-пропускной пункт. В шаговой доступности вся спортивно-образовательная инфраструктура микрорайона Новогорск.

Новогорск отличает благоприятная экология и привлекательный природный ландшафт: природный парк «Долина реки Сходни» (248 га), Машкинские холмы, лесные массивы, ручьи и родники. Нередко эти места называют подмосковной Швейцарией.

Основной акцент сделан на спортивное развитие: на территории жилого комплекса Олимпийская деревня Новогорск, вслед за Центром гимнастики Ирины Винер-Усмановой, построены и работают такие именные школы мастерства, как Академия бокса Александра Лебзяка, Школа Трех Искусств Алексея Кортнева, Центр фехтования Ильгара Мамедова, работают Академическая гимназия с углубленным изучением английского языка, современный детский сад и другие объекты социальной и бытовой инфраструктуры. В ближайшем окружении для жителей Олимпийской деревни, доступна вся развитая инфраструктура города Химки и района Куркино (школы, детские сады, медицинские учреждения, рестораны и бары, салоны красоты и многое другое).

Доехать до комплекса от МКАД можно по 5 шоссе: Куркинскому, Новокуркинскому, Ленинградскому, Машкинскому и по новой скоростной трассе М-11 через Международное шоссе. В нескольких километрах от Новогорска находятся станции метро (Планерная, Беломорская и Речной вокзал), а также станция МЦД «Химки» с остановкой скоростного пригородного электропоезда «Ласточка» (15 минут от Ленинградского вокзала).

Читать далее

Инфраструктура

На территории поселка:

Детский сад
Школа
Супермаркет
Ресторан
Медцентр
Фитнесцентр
Бассейн
Салон красоты
Детские площадки
Гольф поле
Спортивная площадка

Лот: 127364475

46000000

604900

513300

Записаться на просмотр
Предложите свою цену
В сравнение В избранное Скачать

111 м2

4 спальни

Под ключ

1 линия от воды

Куркинское шоссе

4 км от МКАД

в ипотеку

Ваш персональный менеджер

Коваленко Иван
Специалист по работе
с загородной недвижимостью

+7 (499) 110-46-13
Перезвонить мне

Похожие предложения

Коваленко Иван
Специалист по работе
с загородной недвижимостью

Помогу подобрать Вам квартиру быстро и по привлекательной цене

Расположение поселка

Выбор поселка по шоссе

Дмитровское шоссе
Новорижское шоссе
Горьковское шоссе
Путилковское шоссе
Рогачевское шоссе
Рублево-Успенское шоссе
Всего лотов: 9 лотов
Всего лотов: 1 лот
Всего лотов: 24 лота
Всего лотов: 1 лот
Всего лотов: 20 лотов
Всего лотов: 8 лотов
Всего лотов: 19 лотов
×
Заявка отправлена