Для корректной работы сайта выключите VPN

Описание

Вашему вниманию представляется новый одноэтажный ЭКО ДОМ из клеёного бруса со «вторым светом» площадью 165 м2 на земельном участке размером 11 соток в престижном поселке Никульское, расположенный в 20 км от МКАД по Осташковскому шоссе.

ЭКО ДОМ из клеёного бруса «под финишную отделку»:
первый этаж - 140 м2, антресоль - 17 м2, терраса - 49 м2, навес под машину – 30 м2.

Технология строительства:
- ленточный фундамент с монолитной плитой;
- наружные несущие стены из клеёного профилированного бруса (260х200 мм);
- перегородки: деревянный каркас (стойки с шагом 600 мм и между ними расположен утеплитель, звуко и пароизоляция). Внешняя и внутренняя обшивка с имитацией бруса, во влажных помещениях отделка влагостойким ГВЛ;
- высокоэнергоэффективные двухкамерные стеклопакеты;
- скатная крыша из деревянных наслоенных стропил с обрешёткой̆, между стропилами утеплитель, металлочерепица;
- Проектировщик и строитель компания АПС ДСК (с 2009 года на рынке загородного строительства).

Инженерия:
Системы инженерно-технического обеспечения объекта смонтированы в полном объеме согласно проектной документации. Все инженерные системы (электроснабжение, освещение, вентиляция, водоснабжение и канализация) находятся в работоспособном состоянии и готовы к эксплуатации». В доме установлено 2 котла (газовый и электрический), приточно-вытяжная система, теплый пол (кроме мастер-спальни), внутренние и внешние конвекторы в каждой комнате и др.;

Коммуникации: Электричество: 19 кВт (центральное); газ: магистральный; Канализация (септик), Водоснабжение (скважина).

Участок:
- Это прямоугольный участок в 11 соток с дренажной системой;
- Находится в удалении от проезжей дороги и граничит с лесом.
- Соседи только с 2 сторон;
- На участке находятся сосны;
- Благоустроенный участок (газон, дорожки)
- Перед домом залита бетонная подушка и сделан навес с возможностью размещения 5 машин.
- 6 (шести) метровые ворота, калитка и забор (установка в марте)

Представляем вам готовое решение для загородной жизни премиум-класса. Просторный одноэтажный дом с эффектным «вторым светом» и большой террасой в 49 м², который расположен на ухоженном участке 11 соток, граничащем с лесом. Дом построен компанией с 15-летним стажем из теплого клеёного бруса. Полностью смонтирована инженерия: два котла, теплые полы, вентиляция, магистральный газ и электричество 15 кВт. На дом в наличии все проекты «под ключ». Участок имеет удобный подъезд с навесом и возможностью разместит до 5 машин. Соседи только с двух сторон — максимум тишины и приватности.

Количество спален: 4

Санузел: 2

Тип дома: Клееный брус

Готовность: Под отделку

Категория земли: Земли сельхоз. назначения, ЛПХ

Охраняемая территория: Да

Есть вопросы по объекту? Звоните

Коммуникации

Газ: Да

Канализация: Септик

Водопровод: скважина

Электричество, кВт: 15

Планировка

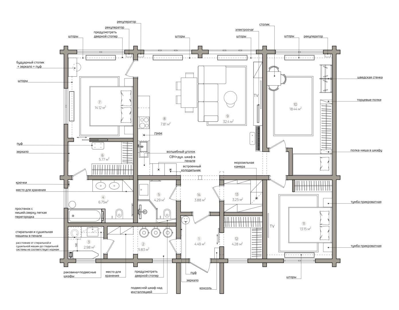
Первый этаж: крыльцо, прихожая, котельная, постирочная, санузел, кухня-гостиная-столовая, мастер-спальня с санузлом, 2 спальни, кладовая, гардеробная.

Описание поселка

Никульское — это живописное пригородное поселение в городском округе Мытищи, расположенное всего в 20 километрах от МКАД. Уютно расположившееся среди лесов на берегу Пяловского водохранилища, оно славится своей спокойной атмосферой и развитой коттеджной застройкой.
Основные преимущества расположения:
Водная гладь: Поселение находится в непосредственной близости от системы канала имени Москвы, включая Пяловское, Пироговское и Клязьминское водохранилища. Это открывает широкие возможности для прогулок на яхтах и катерах (имеется оборудованная стоянка) и отдыха на оборудованном пляже.
Транспортная доступность: Удобный выезд на Осташковское шоссе, что обеспечивает быструю связь со столицей.
Соседи и традиции: Никульское граничит со знаменитым селом Жостово — родиной русского народного промысла (жостовская роспись), а также с престижным коттеджным поселком «Пяловский».
Инфраструктура поселка продумана для комфортной жизни круглый год: асфальтированные дороги, местные магазины, современная детская площадка. Особого внимания заслуживает прогулочная зона в лесу и уникальный памятник-мемориал подводной лодке К-19, придающий этому месту особую историческую значимость.

Читать далее

Инфраструктура

На территории поселка:

Супермаркет
Прогулочная набережная
Яхт клуб
Детские площадки
Спортивная площадка

Лот: 129219675

35900000

501800

420200

Записаться на просмотр
Предложите свою цену
В сравнение В избранное Скачать

165 м2

11 соток

4 спальни

Без отделки

Осташковское шоссе

20 км от МКАД

в ипотеку

Ваш персональный менеджер

Сагадиев Роман
Специалист по работе
с загородной недвижимостью

7 (499) 110-62-94
Перезвонить мне

Похожие предложения

Сагадиев Роман
Специалист по работе
с загородной недвижимостью

Помогу подобрать Вам дом быстро и по привлекательной цене

Расположение поселка

Выбор поселка по шоссе

Дмитровское шоссе
Новорижское шоссе
Горьковское шоссе
Путилковское шоссе
Рогачевское шоссе
Рублево-Успенское шоссе
Всего лотов: 9 лотов
Всего лотов: 1 лот
Всего лотов: 24 лота
Всего лотов: 1 лот
Всего лотов: 20 лотов
Всего лотов: 8 лотов
Всего лотов: 19 лотов
×
Заявка отправлена