Для корректной работы сайта выключите VPN

Описание

Предлагаем Вашему вниманию новый современный дом под отделку площадью 616 кв.м, расположенный в охраняемом коттеджном поселке «Коттон Вэй» в 24 км по Рублево-Успенскому шоссе.
Характеристики дома: конструктив дома — монолит/кирпич; фундамент — УШП; фасадная отделка — натуральный камень.
В доме мультифункциональное, панорамное остекление с заполнением аргоном, на уличных террасах напольное покрытие из керамогранита, предусмотрено фасадное освещение.
Установлена котельная с индивидуальной корректировкой температуры в каждом помещении дома сенсорными панелями, дистанционное управление котельным оборудованием (система ZONT), центральная система вентиляции и кондиционирования, система очистки воды (BWT).
Высота потолков на первом и втором этаже - 3,6 м
Второй свет в зоне гостиной - 7,5 м
Разработан дизайн-проект внутренней отделки дома, есть возможность выполнить отделку под ключ.
Земельный участок правильной формы площадью 13 соток, хорошо освещен.
На участке реликтовые сосны.
В стоимость дома входит благоустройство участка и ограждение.

Количество спален: 4

Санузел: совмещенный

Тип дома: кирпичный

Готовность: Под отделку

Категория земли: Земли нас. пунктов, ИЖС

Сауна: Да

Есть вопросы по объекту? Звоните

Коммуникации

Газ: Да

Канализация: центральная

Водопровод: центральный

Планировка

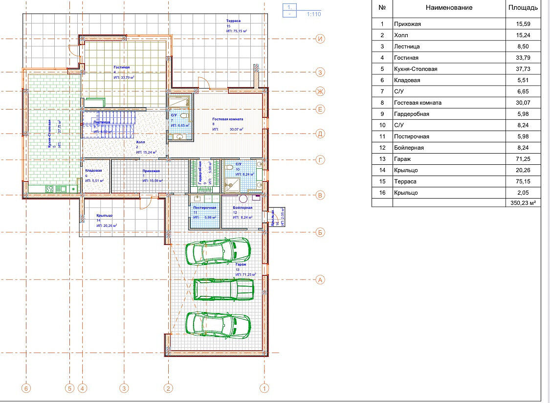
Первый этаж: гостиная с выходом на террасу, кухня-столовая, кладовая, санузел, гостевая комната, санузел, гардеробная, прихожая, постирочная, бойлерная.
Второй этаж: мастер-спальня, ванная, гардеробная, спальня, санузел, спальня, санузел, гардеробная, постирочная, кладовая.

Описание поселка

Коттеджный поселок "Никологорский (Коттон Вэй)" расположен В 24 км от МКАД по Рублево-Успенскому шоссе, в самом сердце Николиной Горы, на территории заказника "Верхняя Москва-река". На площади 100 га реликтового леса расположились 250 домовладений с безупречной архитектурой, достойным соседством и необходимой инфраструктурой.
Внутри поселка представлены объекты спортивного досуга, включая бассейн, тренажерный зал, футбольное поле и теннисный корт, баня и детские площадки. Для удобства жителей работает автомойка с кафе.
В шаговой доступности расположен известный на Рублевке семейный клуб Николина гора с фитнес-клубом, включая бассейны, джакузи, солярий, бани, массажный кабинет, детским клубом, салоном красоты, рестораном и пивным баром.
В 5-10 минутах езды от поселка находятся Ломоносовская школа №5 и Международная английская школа.
Удобное расположение поселка "Никологорский (Коттон Вэй)" позволяет добраться до Москвы на личном автомобиле не более чем за 20-25 минут. Можно воспользоваться Рублево-Успенским, Ильинским и Новорижским шоссе. Есть возможность выезда на скоростную платную дорогу.

Читать далее

Инфраструктура

На территории поселка:

Фитнесцентр
Бассейн
Автомойка
Детские площадки
Теннисный корт
Футбольное поле

Лот: 128947775

259900000

3474600

2932000

Записаться на просмотр
Предложите свою цену
В сравнение В избранное Скачать

616 м2

13 соток

4 спальни

Без отделки

Рублёво-Успенское шоссе

24 км от МКАД

в ипотеку

Ваш персональный менеджер

Васильева Анжелика
Специалист по работе
с загородной недвижимостью

+7 (499) 110-60-98
Перезвонить мне

Похожие предложения

Васильева Анжелика
Специалист по работе
с загородной недвижимостью

Помогу подобрать Вам дом быстро и по привлекательной цене

Расположение поселка

Выбор поселка по шоссе

Дмитровское шоссе
Новорижское шоссе
Горьковское шоссе
Путилковское шоссе
Рогачевское шоссе
Рублево-Успенское шоссе
Всего лотов: 9 лотов
Всего лотов: 1 лот
Всего лотов: 24 лота
Всего лотов: 1 лот
Всего лотов: 20 лотов
Всего лотов: 8 лотов
Всего лотов: 19 лотов
×
Заявка отправлена